North Lane, Haverigg, Millom
CO

North Lane, Haverigg, Millom

By Corrie and Co Ltd

£ 395,000

Reviews

3 out of 5 stars

Corrie and Co Ltd says ..

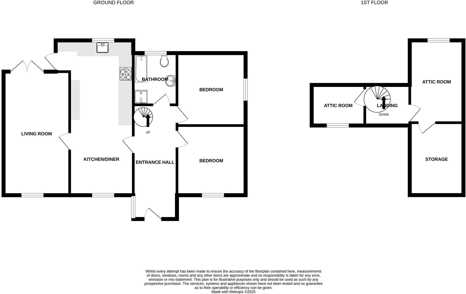
Situated on the peaceful outskirts of the charming seaside village of Haverigg, this attractive detached bungalow offers spacious and versatile accommodation. The property boasts a welcoming and generously sized lounge, a bright kitchen/diner, a modern family bathroom, and two comfortable ground...

Property Oracle says ..

This detached bungalow in Haverigg presents a blend of modern living and rural charm. The property features a well-maintained interior, a large garden with outbuildings, and modern amenities such as solar panels. While the price is on the higher end for the area, the overall package of location, condition, and land makes it an attractive opportunity. The proximity to local schools and transportation adds to the property’s appeal, making it suitable for families and individuals seeking a peaceful yet convenient lifestyle. The inclusion of a garage and additional parking space is a significant advantage, and the garden offers ample space for outdoor activities and potential landscaping projects.

Therefore, we give this property 7 / 10. *Disclaimer: This is our option and does constitute a recommendation or financial advice. Do your own research. *

Price
6
Condition
8
Location
7
Land
9
Bedrooms
2
Bathrooms
1

The heatmap indicates the level of crime in the area. The color of the heatmap indicates the crime severity and recency.

Metrics Year-on-Year

Average area value
436,667.00 £
Increased by 9.99 %
from 397,024.00 £
Average area rental value
1,625.00 £/mo
Increased by 11.23 %
from 1,461.00 £/mo
Est rental Yield
4.47 %
Increased by 1.13 %
from 4.42 %
Crime Rate
11.00 %
Unchanged by 0.00 %
from 11.00 %

Agent Activity

  • Corrie and Co Ltd created the listing.

Nearby Schools

NameTypeOfstedDistance
Haverigg Primary SchoolCommunity SchoolGood0.75 KM
Black Combe Junior SchoolCommunity SchoolGood2.27 KM
Parkview Nursery SchoolLocal Authority Nursery SchoolGood2.91 KM
Millom SchoolCommunity SchoolRequires improvement3.37 KM
Millom Surestart Children'S CentreChildren's Centre3.40 KM

Images

DSC04083.JPG DSC04082.JPG DSC04094.JPG DSC04096.JPG DSC04070.JPG DSC04066.JPG DSC04058.JPG DSC04064.JPG DSC04072.JPG DSC04061.JPG DSC04051.JPG DSC04041.JPG DSC04085.JPG DSC04086.JPG DSC04073.JPG DSC04075.JPG DSC04077.JPG DSC04078.JPG DSC04080.JPG DSC04091.JPG DSC04092.JPG DSC04089.JPG DSC04090.JPG DSC04099.JPG DSC04098.JPG DSC04055.JPG DSC04057.JPG DSC04032.JPG DSC04044.JPG DSC04045.JPG DSC04050.JPG DSC04053.JPG DSC04039.JPG

Nearby Streets

NameAverage PriceAverage SqftDistance
Green Street £ 000.00 KM
St Luke's Road £ 430,00000.00 KM
Waingate Bridge Cottages £ 390,00000.00 KM

Nearby Transport

NameNLCTLCDistance
Millom1997MLM3.10 KM
Silecroft2000SIC5.10 KM
Green Road1996GNR7.55 KM

Nearby Listings

AddressPriceTypeScoreDistance
North Lane, Haverigg, Millom £ 395,000BUY7 / 100.00 KM
North Lane, Haverigg, HAVERIGG £ 125,000BUYUnknown0.24 KM
Bank Head, Haverigg Millom £ 160,000BUY7 / 100.28 KM
Richmond Gardens, HAVERIGG £ 345,000BUY7 / 100.31 KM
Caton Street, Haverigg, Millom £ 150,000BUY6 / 100.32 KM

Nearby Properties

AddressPriceDistance
1 Green Street £ 150,0000.11 KM
3 Green Street £ 168,0000.11 KM
6 Castle Terrace £ 100,0000.18 KM
7 Castle Terrace £ 88,0000.18 KM
5 Castle Terrace £ 84,0000.18 KM