VI
Oak Ridge, West End, Woking, Surrey, GU24
By Vickery
£ 275,000
Reviews
3 out of 5 stars
Vickery says ..
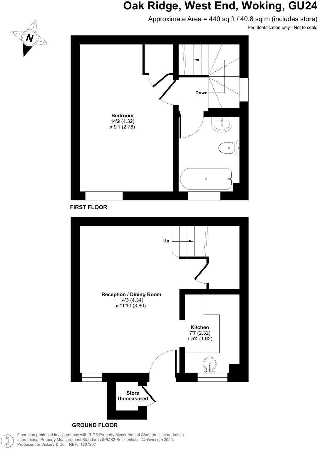
***PRIVATE GARDEN & WITHIN CLOSE PROXIMITY OF GORDON’S SCHOOL*** Vickery offer a well presented end terrace home, in a cul-de-sac located in the centre of West End Village approximately 540m from Gordon's School. The property comprises of a double bedroom, a living/dining area, kit...
Property Oracle says ..
Therefore, we give this property 6 / 10. *Disclaimer: This is our option and does constitute a recommendation or financial advice. Do your own research. *
- Price
- 3
- Condition
- 7
- Location
- 7
- Land
- 7
- Bedrooms
- 1
- Bathrooms
- 1
- Sqft (est)
- 337.23
The heatmap indicates the level of crime in the area. The color of the heatmap indicates the crime severity and recency.
Metrics Year-on-Year
- Average area value
- 644,188.00 £Increased by 3.54 %
- Est sale value
- 142,985.52 £Decreased by 26.64 %
- Average area rental value
- 2,466.00 £/moDecreased by 21.84 %
- Est letting value
- 337.23 £/moDecreased by 50.00 %
- Est rental Yield
- 4.59 %Decreased by 24.63 %
- Crime Rate
- 18.00 %Unchanged by 0.00 %
from 622,146.00 £
from 194,918.94 £
from 3,155.00 £/mo
from 674.46 £/mo
from 6.09 %
from 18.00 %
Agent Activity
Vickery created the listing.
Nearby Schools
| Name | Type | Ofsted | Distance |
|---|---|---|---|
| Gordon'S School | Academy Converter | Outstanding | 0.53 KM |
| Holy Trinity Cofe Primary School | Academy Converter | 1.14 KM | |
| Bisley Cofe Primary School | Voluntary Aided School | Good | 1.94 KM |
| Valley End Cofe Infant School | Voluntary Controlled School | Outstanding | 3.11 KM |
| Knaphill School | Academy Converter | 3.42 KM |
Images
Nearby Streets
| Name | Average Price | Average Sqft | Distance |
|---|---|---|---|
| Sarsen Court | £ 625,000 | 0 | 0.00 KM |
| Burnt Pollard Lane | £ 1,100,000 | 0 | 0.00 KM |
| Queens Place | £ 0 | 0 | 0.00 KM |
| Sundew Close | £ 1,000,000 | 0 | 0.00 KM |
| Strawberry Fields | £ 925,000 | 0 | 0.00 KM |
Nearby Transport
| Name | NLC | TLC | Distance |
|---|---|---|---|
| Brookwood | 5687 | BKO | 4.07 KM |
| Bagshot | 5681 | BAG | 5.62 KM |
| Sunningdale | 5671 | SNG | 6.00 KM |
| Longcross | 5674 | LNG | 7.52 KM |
| Ascot (Berks) | 5666 | ACT | 8.22 KM |
Nearby Listings
| Address | Price | Type | Score | Distance |
|---|---|---|---|---|
| Oak Ridge, West End, Woking, Surrey, GU24 | £ 275,000 | BUY | 6 / 10 | 0.00 KM |
| Oak Ridge, West End, Woking, GU24 | £ 375,000 | BUY | 7 / 10 | 0.01 KM |
| Oak Ridge, West End, Woking, Surrey Heath, GU24 | £ 475,000 | BUY | 6 / 10 | 0.09 KM |
| Prunus Close, West End, Woking, Surrey, GU24 | £ 725,000 | BUY | 6 / 10 | 0.15 KM |
| Rosewood Way, West End, Woking, Surrey, GU24 | £ 875,000 | BUY | Unknown | 0.15 KM |
Nearby Properties
| Address | Price | Distance |
|---|---|---|
| 21 Oak Ridge | £ 255,000 | 0.06 KM |
| 25 Oak Ridge | £ 142,500 | 0.06 KM |
| 39 Oak Ridge | £ 235,000 | 0.06 KM |
| 4 Oak Ridge | £ 250,000 | 0.06 KM |
| 50 Oak Ridge | £ 178,000 | 0.06 KM |