Edward Grove, Portchester
By Nesbitt & Sons Estate Agents
£ 350,000
Reviews
3 out of 5 stars
Nesbitt & Sons Estate Agents says ..
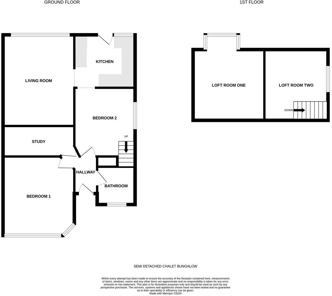
***NO FORWARD CHAIN *** This charming semi-detached chalet bunglow is located on the ever popular Portchester hill slopes and benefits from views towards Portsmouth Harbour. The versatile internal accommodation comprises; entrance hall, two bedrooms, modern fitted kitchen, mode...
Property Oracle says ..
This property is located in Edward Grove, Portchester, a suburb of Fareham in Hampshire. The area benefits from nearby schools such as The Victory Primary School and Castle Primary School, both rated as ‘Good’ by Ofsted. Portchester train station is also within walking distance, providing convenient access to other towns and cities. While the property itself is a 2-bedroom house with a garden, the provided images show it could benefit from some modernisation. The kitchen appears recently updated, but other areas show signs of wear and tear. The list price of £350,000 is slightly below the average price for the area (£368,824), however, given the need for potential renovations, and lack of information regarding the property’s square footage, it’s difficult to definitively assess the value for money. More information is needed to provide a comprehensive evaluation of the property’s price.
Therefore, we give this property 7 / 10. *Disclaimer: This is our option and does constitute a recommendation or financial advice. Do your own research. *
- Price
- 7
- Condition
- 6
- Location
- 8
- Land
- 7
- Bedrooms
- 2
- Bathrooms
- 1
The heatmap indicates the level of crime in the area. The color of the heatmap indicates the crime severity and recency.
Metrics Year-on-Year
- Average area value
- 300,250.00 £Decreased by 28.30 %
- Average area rental value
- 1,750.00 £/moIncreased by 9.38 %
- Est rental Yield
- 6.99 %Increased by 52.29 %
- Crime Rate
- 29.00 %Unchanged by 0.00 %
Agent Activity
Nesbitt & Sons Estate Agents created the listing.
Nearby Schools
| Name | Type | Ofsted | Distance |
|---|---|---|---|
| Castle View Academy | Academy Converter | 0.63 KM | |
| The Victory Primary School | Academy Sponsor Led | Good | 0.63 KM |
| Castle Primary School | Community School | Good | 1.23 KM |
| Northern Infant School | Community School | Good | 1.54 KM |
| Northern Junior School | Community School | Good | 1.54 KM |
Images
Nearby Streets
| Name | Average Price | Average Sqft | Distance |
|---|---|---|---|
| Leith Avenue | £ 150,000 | 0 | 0.00 KM |
| Southwick Avenue | £ 352,498 | 0 | 0.00 KM |
| Ralph Road | £ 315,000 | 0 | 0.00 KM |
| Littlefield Road | £ 300,000 | 0 | 0.00 KM |
| Westfield Road | £ 0 | 0 | 0.00 KM |
Nearby Transport
| Name | NLC | TLC | Distance |
|---|---|---|---|
| Portchester | 5928 | PTC | 0.91 KM |
| Cosham | 5896 | CSA | 5.63 KM |
| Portsmouth Harbour | 5540 | PMH | 6.28 KM |
| Portsmouth And Southsea | 5537 | PMS | 6.68 KM |
| Hilsea | 5539 | HLS | 6.99 KM |
Nearby Listings
| Address | Price | Type | Score | Distance |
|---|---|---|---|---|
| Edward Grove, Portchester | £ 350,000 | BUY | 7 / 10 | 0.00 KM |
| Seaview Avenue, Portchester, | £ 375,000 | BUY | 7 / 10 | 0.10 KM |
| Edward Grove, Fareham | £ 475,000 | BUY | 8 / 10 | 0.11 KM |
| Shelley Avenue, Poets Corner | £ 250,000 | BUY | 6 / 10 | 0.12 KM |
| Seaview Avenue, Portchester, | £ 375,000 | BUY | 7 / 10 | 0.12 KM |
Nearby Properties
| Address | Price | Distance |
|---|---|---|
| 15 Edward Grove | £ 407,000 | 0.04 KM |
| 29 Edward Grove | £ 350,000 | 0.04 KM |
| 21 Edward Grove | £ 416,000 | 0.04 KM |
| 14 Edward Grove | £ 252,500 | 0.04 KM |
| 13 Edward Grove | £ 250,000 | 0.04 KM |