Church Street, Orrell, Wigan
By Addisons Estate and Letting Agent
£ 170,000
Reviews
3 out of 5 stars
Addisons Estate and Letting Agent says ..
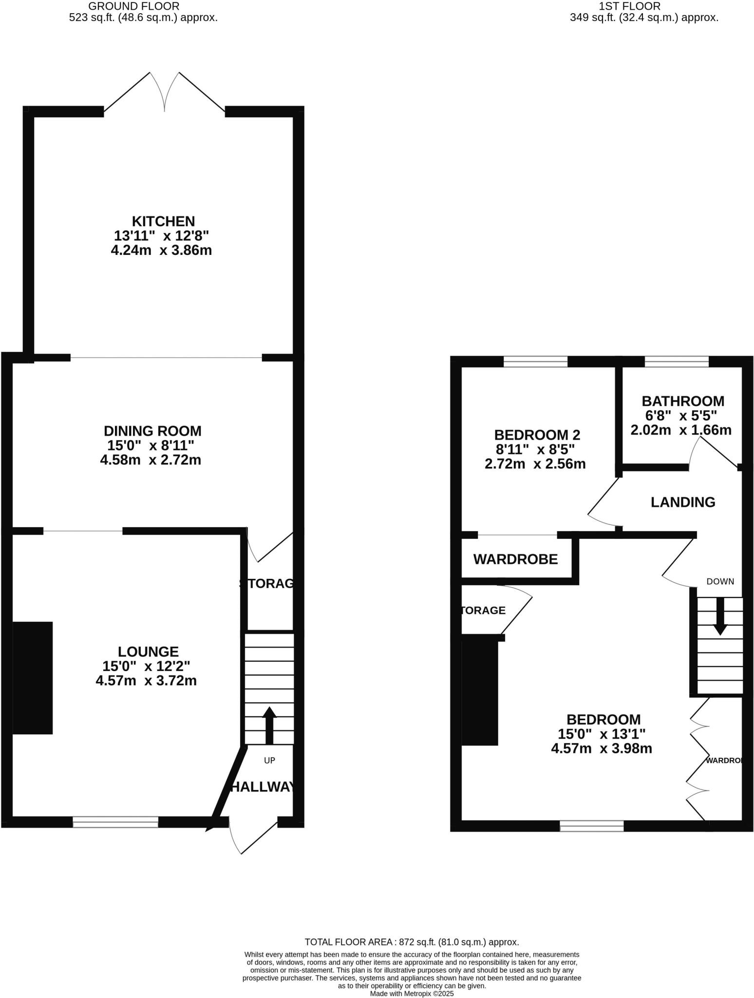
Step inside this attractive garden fronted mid terraced property and you will be wonderfully surprised by the space of its open plan ground floor layout. An entrance hallway takes you into a generous lounge which flows seamlessly into the dining room which in turn creates a wonderfully sociable ...
Property Oracle says ..
This two-bedroom terraced house in Orrell, Wigan is listed at £170,000. The property benefits from a convenient location, close to local schools and transport links. Images show the property to be in good condition, with a modern kitchen and bathroom. There is a paved rear garden. While the average house price in the area is significantly higher (£268,805), this property is smaller (799 sqft compared to the average 1140 sqft) and the price per sqft is below average. Comparable properties on Church Street have sold for between £80,000 and £158,000, suggesting the asking price may be at the higher end of the range but not unreasonable considering the apparent condition and location.
Therefore, we give this property 7 / 10. *Disclaimer: This is our option and does constitute a recommendation or financial advice. Do your own research. *
- Price
- 7
- Condition
- 8
- Location
- 7
- Land
- 6
- Bedrooms
- 2
- Bathrooms
- 1
- Sqft (est)
- 799.14
- Lot (est)
- 872.00
The heatmap indicates the level of crime in the area. The color of the heatmap indicates the crime severity and recency.
Metrics Year-on-Year
- Average area value
- 350,000.00 £Increased by 42.15 %
- Est sale value
- 228,554.04 £Increased by 32.41 %
- Average area rental value
- 888.00 £/moDecreased by 9.66 %
- Est letting value
- 0.00 £/mo
- Est rental Yield
- 3.04 %Decreased by 36.53 %
- Crime Rate
- 7.00 %Unchanged by 0.00 %
Agent Activity
Addisons Estate and Letting Agent marked this listing as sold.
Addisons Estate and Letting Agent created the listing.
Nearby Schools
| Name | Type | Ofsted | Distance |
|---|---|---|---|
| Orrell Holgate Academy | Academy Converter | Good | 0.25 KM |
| St James' Catholic Primary School Orrell | Voluntary Aided School | Good | 0.56 KM |
| Orrell Newfold Community Primary School | Community School | Outstanding | 0.71 KM |
| Up Holland High School | Community School | Good | 0.95 KM |
| Winstanley College | Further Education | Good | 1.38 KM |
Images
Nearby Streets
| Name | Average Price | Average Sqft | Distance |
|---|---|---|---|
| Church Drive | £ 0 | 0 | 0.00 KM |
| Blackridge Close | £ 290,000 | 0 | 0.00 KM |
| Bryony Close | £ 395,000 | 0 | 0.00 KM |
| Meadow Gardens | £ 0 | 0 | 0.00 KM |
| Foxwood Close | £ 400,000 | 0 | 0.00 KM |
Nearby Transport
| Name | NLC | TLC | Distance |
|---|---|---|---|
| Orrell | 2259 | ORR | 0.39 KM |
| Upholland | 2364 | UPL | 3.37 KM |
| Gathurst | 2397 | GST | 3.50 KM |
| Pemberton | 2403 | PEM | 4.54 KM |
| Appley Bridge | 2396 | APB | 5.17 KM |
Nearby Listings
| Address | Price | Type | Score | Distance |
|---|---|---|---|---|
| Church Street, Orrell, Wigan | £ 170,000 | BUY | 7 / 10 | 0.00 KM |
| Church Street, Orrell, WN5 8TG | £ 140,000 | BUY | 6 / 10 | 0.02 KM |
| Church Drive, Wigan | £ 280,000 | BUY | 6 / 10 | 0.10 KM |
| Church Drive, Wigan, WN5 | £ 370,000 | BUY | Unknown | 0.10 KM |
| Church Drive, WN5 8ST | £ 249,995 | BUY | Unknown | 0.10 KM |
Nearby Properties
| Address | Price | Distance |
|---|---|---|
| 13 Church Street | £ 125,000 | 0.00 KM |
| 9 Church Street | £ 105,000 | 0.00 KM |
| 53 Church Street | £ 134,000 | 0.00 KM |
| 14 Church Street | £ 85,000 | 0.00 KM |
| 21 Church Street | £ 74,750 | 0.00 KM |