Chase Buchanan says ..
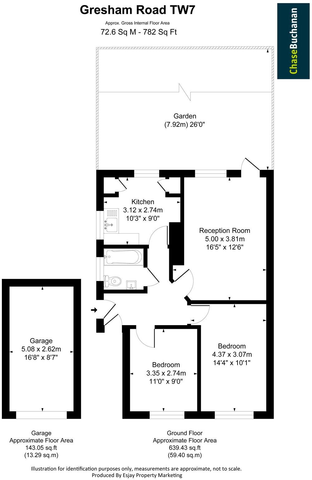
Chase Buchanan is delighted to offer to the market this ground floor, two double bedroom maisonette offering generous accommodation, private garden, garage and a short walk to either Osterley Tube station or Hounslow East tube station. The property does require modernisation but for your first ti...
Property Oracle says ..
This two-bedroom property located on Gresham Road in Hounslow, Greater London presents a mixed bag of opportunities and challenges. The property is situated conveniently close to several highly-rated schools, including Oaklands School and Spring Grove Primary School, both boasting ‘Outstanding’ Ofsted ratings. The proximity to Hounslow town centre and transport links provides excellent access to amenities and commutes. The surrounding areas, including nearby streets, exhibit a varied range of property values. While there are some high priced homes in the area, there is also a range of more affordable options. However, the property’s condition needs addressing before it can reach its full potential. The internal photos reveal outdated finishes and fixtures in the kitchen and bathroom, indicating a need for a considerable renovation. This two-bedroom property comes with a small garden and an attached garage and provides a modest amount of outdoor space. Although a plus, the area isn’t extensive.
The lack of accurate square footage information on comparable properties nearby limits the ability to fully assess value, however, based on the given price and observed condition, the property presents a viable option for a buyer willing to undertake modernisation works, and who values location and schools. The current state of the property requires a significant financial investment for renovations and refurbishment; buyers will need to factor this into their offer price.
The property shows promise due to its location, but the condition is a significant drawback. The price point seems acceptable for the area, but the cost of modernization should be carefully considered, and potential buyers need to account for these factors when making a decision.
Therefore, we give this property 5 / 10. *Disclaimer: This is our option and does constitute a recommendation or financial advice. Do your own research. *
- Price
- 6
- Condition
- 4
- Location
- 7
- Land
- 3
- Bedrooms
- 2
- Bathrooms
- 1
- Sqft (est)
- 782.00
The heatmap indicates the level of crime in the area. The color of the heatmap indicates the crime severity and recency.
Metrics Year-on-Year
- Average area value
- 396,244.00 £Decreased by 4.32 %
- Est sale value
- 426,190.00 £Increased by 7.71 %
- Average area rental value
- 1,961.00 £/moDecreased by 0.25 %
- Est letting value
- 1,564.00 £/moUnchanged by 0.00 %
- Est rental Yield
- 5.94 %Increased by 4.21 %
- Crime Rate
- 3.00 %Unchanged by 0.00 %
Agent Activity
Chase Buchanan created the listing.
Nearby Schools
| Name | Type | Ofsted | Distance |
|---|---|---|---|
| Great Oaks Charitable Trust T/A Great Oaks College | Special Post 16 Institution | 0.30 KM | |
| Oaklands School | Community Special School | Outstanding | 0.31 KM |
| Spring Grove Primary School | Community School | Outstanding | 0.71 KM |
| Alexandra Primary School | Community School | Good | 0.76 KM |
| Kingsley Academy | Academy Sponsor Led | Good | 0.80 KM |
Images
Nearby Streets
| Name | Average Price | Average Sqft | Distance |
|---|---|---|---|
| The Close | £ 0 | 0 | 0.00 KM |
| Saddlers Place | £ 0 | 0 | 0.00 KM |
| Thornbury Road | £ 516,667 | 0 | 0.00 KM |
| Fair Street | £ 0 | 0 | 0.00 KM |
| Matisse Road | £ 325,000 | 0 | 0.00 KM |
Nearby Transport
| Name | NLC | TLC | Distance |
|---|---|---|---|
| Hounslow | 5563 | HOU | 1.85 KM |
| Isleworth | 5592 | ISL | 1.93 KM |
| Whitton | 5611 | WTN | 3.02 KM |
| Syon Lane | 5609 | SYL | 3.30 KM |
| Twickenham | 5574 | TWI | 3.95 KM |
Nearby Listings
| Address | Price | Type | Score | Distance |
|---|---|---|---|---|
| Gresham Road, Hounslow | £ 375,000 | BUY | 5 / 10 | 0.00 KM |
| Spring Grove Road, Hounslow, Greater London, TW3 | £ 600,000 | BUY | 6 / 10 | 0.06 KM |
| Kingsley Avenue, Hounslow | £ 649,950 | BUY | Unknown | 0.08 KM |
| Spring Grove Road, Hounslow | £ 625,000 | BUY | Unknown | 0.08 KM |
| Taylor Close, Hounslow | £ 415,000 | BUY | 6 / 10 | 0.09 KM |
Nearby Properties
| Address | Price | Distance |
|---|---|---|
| 4 Taylor Close | £ 89,000 | 0.07 KM |
| 1 Taylor Close | £ 91,500 | 0.07 KM |
| 10 Taylor Close | £ 400,000 | 0.07 KM |
| 9 Taylor Close | £ 89,000 | 0.07 KM |
| 5 Taylor Close | £ 220,000 | 0.07 KM |