Watermint Quay, London N16
By Felicity J Lord
£ 425,000
Reviews
2 out of 5 stars
Felicity J Lord says ..
Nestled on the top floor, this exquisite apartment presents a unique and versatile layout, thoughtfully transformed from a two-bedroom to a spacious one-bedroom sanctuary
Property Oracle says ..
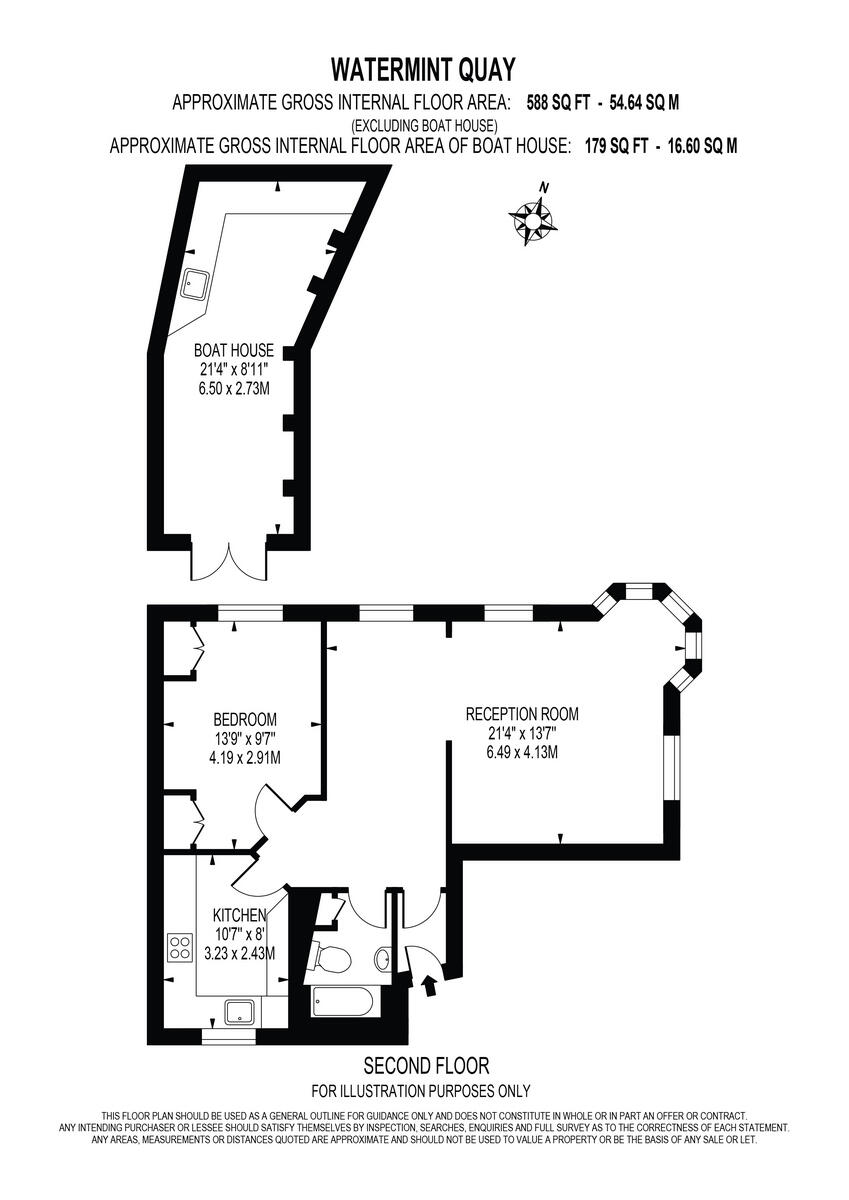
This one bedroom apartment is situated on the banks of the Lee Navigation in Springfield, Hackney. The property benefits from having a number of outstanding primary schools within a 1km radius. Transport links are also good with a number of London Overground stations within a 2km radius. The apartment itself is presented well, although the decor is dated and could benefit from modernisation. The apartment has a spacious living area with views over the canal. The kitchen is well equipped and the bathroom is clean and tidy. Overall this is a well-located property that would suit a single person or couple. However, the price per sqft is higher than the average for the area.
Therefore, we give this property 5 / 10. *Disclaimer: This is our option and does constitute a recommendation or financial advice. Do your own research. *
- Price
- 6
- Condition
- 7
- Location
- 9
- Land
- 1
- Bedrooms
- 1
- Bathrooms
- 1
- Sqft (est)
- 588.00
The heatmap indicates the level of crime in the area. The color of the heatmap indicates the crime severity and recency.
Metrics Year-on-Year
- Average area value
- 471,552.00 £Decreased by 8.85 %
- Est sale value
- 409,248.00 £Decreased by 18.60 %
- Average area rental value
- 2,088.00 £/moIncreased by 1.66 %
- Est letting value
- 1,764.00 £/moUnchanged by 0.00 %
- Est rental Yield
- 5.31 %Increased by 11.55 %
- Crime Rate
- 2.00 %Unchanged by 0.00 %
Agent Activity
Felicity J Lord created the listing.
Nearby Schools
| Name | Type | Ofsted | Distance |
|---|---|---|---|
| Springfield Community Primary School | Community School | Outstanding | 0.56 KM |
| Talmud Torah Machzikei Hadass School | Other Independent School | Inadequate | 0.67 KM |
| Tayyibah Girls' School | Other Independent School | Inadequate | 0.86 KM |
| Gladesmore Community School | Community School | Outstanding | 0.86 KM |
| Bobov Primary Boys School | Other Independent School | Inadequate | 0.91 KM |
Images
Nearby Streets
| Name | Average Price | Average Sqft | Distance |
|---|---|---|---|
| Olinda Road | £ 841,665 | 0 | 0.00 KM |
| Halberd Mews | £ 0 | 0 | 0.00 KM |
| Fairview Road | £ 0 | 0 | 0.00 KM |
| Barry Avenue | £ 0 | 0 | 0.00 KM |
| Platinum Mews | £ 700,000 | 0 | 0.00 KM |
Nearby Transport
| Name | NLC | TLC | Distance |
|---|---|---|---|
| South Tottenham | 7404 | STO | 1.45 KM |
| Tottenham Hale | 6951 | TOM | 1.48 KM |
| Clapton | 6926 | CPT | 1.53 KM |
| Stoke Newington | 6934 | SKW | 1.78 KM |
| Stamford Hill | 6968 | SMH | 1.83 KM |
Nearby Listings
| Address | Price | Type | Score | Distance |
|---|---|---|---|---|
| Watermint Quay, London N16 | £ 425,000 | BUY | 5 / 10 | 0.00 KM |
| Craven Walk, London, N16 | £ 400,000 | BUY | 4 / 10 | 0.01 KM |
| Saw Mill Way, London N16 | £ 400,000 | BUY | Unknown | 0.19 KM |
| Saw Mill Way, London, N16 | £ 290,000 | BUY | 5 / 10 | 0.24 KM |
| Saw Mill Way, London, N16 | £ 380,000 | BUY | 6 / 10 | 0.31 KM |
Nearby Properties
| Address | Price | Distance |
|---|---|---|
| 9 Maple Close | £ 225,000 | 0.30 KM |
| 51 Maple Close | £ 161,500 | 0.30 KM |
| 46 Maple Close | £ 347,057 | 0.30 KM |
| 4 Maple Close | £ 174,000 | 0.30 KM |
| 47 Maple Close | £ 132,000 | 0.30 KM |