Pearsons says ..
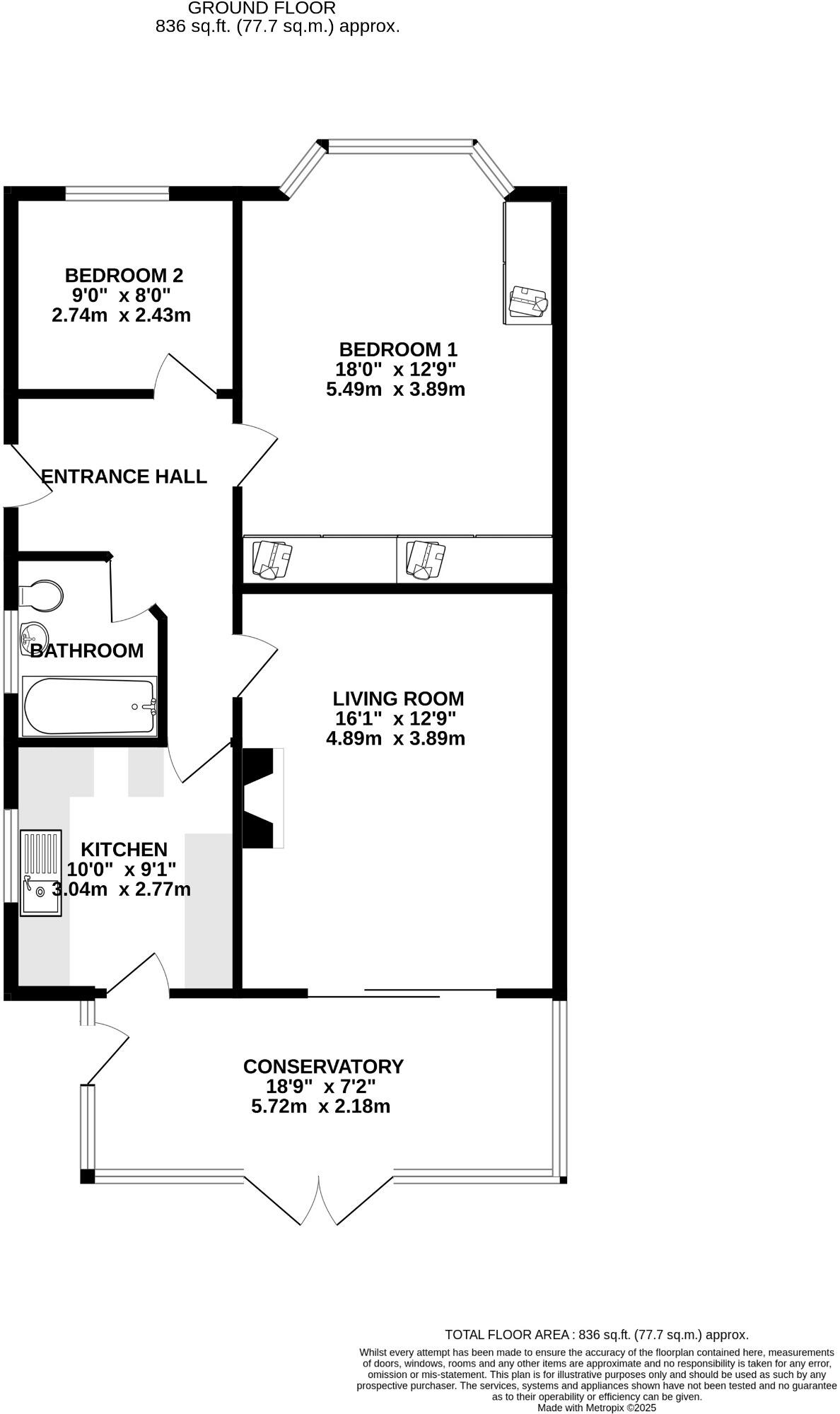
NO FORWARD CHAIN. A two bedroom detached bungalow located within a popular residential area close to Fareham town centre and within walking distance of Harrison School. The property's accommodation briefly comprises; entrance hall, living room, double glazed conservatory and kitchen. There are tw...
Property Oracle says ..
This is a detached bungalow in Fareham East, Hampshire. The property has two bedrooms and one bathroom, with a total square footage of 836.36 sqft. It features a garden and is located near schools and transportation. While the property is in reasonable condition, it could benefit from modernisation. The asking price of £365,000 appears fair given the location and size of the property.
Therefore, we give this property 6 / 10. *Disclaimer: This is our option and does constitute a recommendation or financial advice. Do your own research. *
- Price
- 7
- Condition
- 5
- Location
- 7
- Land
- 7
- Bedrooms
- 2
- Bathrooms
- 1
- Sqft (est)
- 836.36
The heatmap indicates the level of crime in the area. The color of the heatmap indicates the crime severity and recency.
Metrics Year-on-Year
- Average area value
- 381,429.00 £Increased by 14.83 %
- Est sale value
- 372,180.20 £Increased by 39.06 %
- Average area rental value
- 1,375.00 £/moIncreased by 14.30 %
- Est letting value
- 836.36 £/moUnchanged by 0.00 %
- Est rental Yield
- 4.33 %Decreased by 0.46 %
- Crime Rate
- 3.00 %Unchanged by 0.00 %
Agent Activity
Pearsons created the listing.
Nearby Schools
| Name | Type | Ofsted | Distance |
|---|---|---|---|
| Harrison Primary School | Community School | Outstanding | 0.38 KM |
| Uplands Primary School | Community School | Good | 0.84 KM |
| Kingsgate School | Other Independent Special School | Good | 1.02 KM |
| Boundary Oak School | Other Independent School | 1.44 KM | |
| Redlands Primary School | Community School | Outstanding | 1.59 KM |
Images
Nearby Streets
| Name | Average Price | Average Sqft | Distance |
|---|---|---|---|
| Tanglewood | £ 750,000 | 0 | 0.00 KM |
| Trinity Street | £ 0 | 0 | 0.00 KM |
| Palmerston Avenue | £ 418,333 | 0 | 0.00 KM |
| Moresby Court | £ 142,250 | 0 | 0.00 KM |
| Tennyson Gardens | £ 0 | 0 | 0.00 KM |
Nearby Transport
| Name | NLC | TLC | Distance |
|---|---|---|---|
| Fareham | 5900 | FRM | 1.24 KM |
| Portchester | 5928 | PTC | 6.60 KM |
| Swanwick | 5920 | SNW | 9.35 KM |
Nearby Listings
| Address | Price | Type | Score | Distance |
|---|---|---|---|---|
| UPLANDS CRESCENT, FAREHAM | £ 365,000 | BUY | 6 / 10 | 0.00 KM |
| Uplands Crescent, Fareham | £ 340,000 | BUY | 6 / 10 | 0.04 KM |
| Uplands Crescent, Fareham, Hampshire, PO16 | £ 360,000 | BUY | 7 / 10 | 0.08 KM |
| Park Lane, Fareham, Hampshire, PO16 | £ 600,000 | BUY | 7 / 10 | 0.14 KM |
| COGHLAN CLOSE, FAREHAM | £ 435,000 | BUY | 6 / 10 | 0.15 KM |
Nearby Properties
| Address | Price | Distance |
|---|---|---|
| 58 Uplands Crescent | £ 395,000 | 0.04 KM |
| 56 Uplands Crescent | £ 400,000 | 0.04 KM |
| 53 Uplands Crescent | £ 301,000 | 0.04 KM |
| 55 Uplands Crescent | £ 235,000 | 0.04 KM |
| 43 Uplands Crescent | £ 316,000 | 0.04 KM |