Mill Lane, Heworth, York
By Ashtons Estate Agents
£ 375,000
Reviews
2 out of 5 stars
Ashtons Estate Agents says ..
- Investment Opportunity - This attractive period property is for sale with an existing tenancy in place which runs until June 2025, generating an income of £29964 per annum. Mill Lane is set to the East of York and is ideally placed for access to the city centre, York St John Universit...
Property Oracle says ..
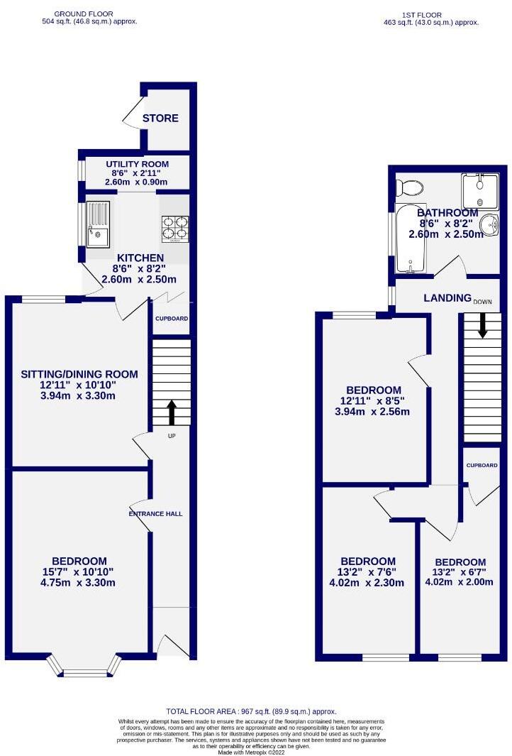
This property is a four-bedroom terraced house located in Heworth, York. The property benefits from being close to local schools such as Tang Hall Primary Academy and Heworth Church of England Primary Academy, both rated as good by Ofsted. Transport links are also convenient with York train station approximately 3km away. The property itself appears to be in reasonable condition, though some modernisation may be desirable. The kitchen and bathroom appear functional but dated. The property includes a small yard. Compared to other properties in the area, the price seems slightly below average, considering the size and location. However, the lack of plot size information could affect the overall value.
Therefore, we give this property 5 / 10. *Disclaimer: This is our option and does constitute a recommendation or financial advice. Do your own research. *
- Price
- 7
- Condition
- 6
- Location
- 7
- Land
- 3
- Bedrooms
- 4
- Bathrooms
- 1
- Sqft (est)
- 967.68
The heatmap indicates the level of crime in the area. The color of the heatmap indicates the crime severity and recency.
Metrics Year-on-Year
- Average area value
- 494,993.00 £Increased by 52.44 %
- Est sale value
- 485,775.36 £Increased by 168.45 %
- Average area rental value
- 1,198.00 £/moDecreased by 2.44 %
- Est letting value
- 967.68 £/mo
- Est rental Yield
- 2.90 %Decreased by 36.12 %
- Crime Rate
- 5.00 %Unchanged by 0.00 %
Agent Activity
Ashtons Estate Agents created the listing.
Nearby Schools
| Name | Type | Ofsted | Distance |
|---|---|---|---|
| The Avenues Children'S Centre | Children's Centre | 0.54 KM | |
| Tang Hall Primary Academy | Academy Converter | Good | 0.60 KM |
| Heworth Church Of England Primary Academy | Academy Converter | Good | 0.74 KM |
| Park Grove Primary Academy | Academy Converter | 0.95 KM | |
| St Wilfrid'S Catholic Primary School - A Catholic Voluntary Academy | Academy Converter | 1.18 KM |
Images
Nearby Streets
| Name | Average Price | Average Sqft | Distance |
|---|---|---|---|
| Layerthorpe | £ 200,000 | 0 | 0.00 KM |
| Croft Gardens | £ 0 | 0 | 0.00 KM |
| Heworth Road | £ 0 | 0 | 0.00 KM |
| Eboracum Way | £ 0 | 0 | 0.00 KM |
| Saint Wulstan Close | £ 0 | 0 | 0.00 KM |
Nearby Transport
| Name | NLC | TLC | Distance |
|---|---|---|---|
| York | 8263 | YRK | 3.01 KM |
| Poppleton | 8254 | POP | 9.09 KM |
Nearby Listings
| Address | Price | Type | Score | Distance |
|---|---|---|---|---|
| Mill Lane, Heworth, York | £ 375,000 | BUY | 5 / 10 | 0.00 KM |
| Mill Lane, York, North Yorkshire, YO31 | £ 585,000 | BUY | 6 / 10 | 0.04 KM |
| Mill Lane, York | £ 650,000 | BUY | 7 / 10 | 0.05 KM |
| Heworth Mews, York, YO31 7XX | £ 200,000 | BUY | 6 / 10 | 0.09 KM |
| Heworth Mews, Heworth | £ 190,000 | BUY | 6 / 10 | 0.09 KM |
Nearby Properties
| Address | Price | Distance |
|---|---|---|
| 28 Mill Lane | £ 180,000 | 0.06 KM |
| 14 Mill Lane | £ 290,000 | 0.06 KM |
| 16 John Street | £ 485,000 | 0.07 KM |
| 20 John Street | £ 380,000 | 0.07 KM |
| 18 John Street | £ 350,000 | 0.07 KM |