SO
Merryweather Avenue, Bonnington Walk, Lockleaze
By Solo Homes Ltd
£ 121,250
Reviews
4 out of 5 stars
Solo Homes Ltd says ..
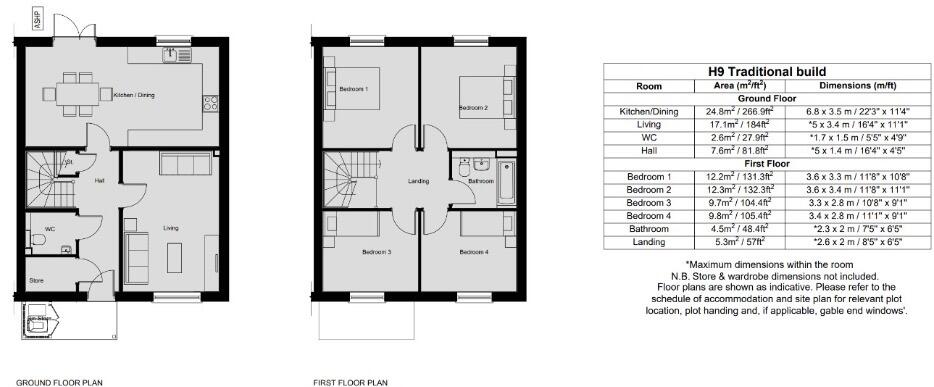
A superb opportunity to purchase a BRAND NEW 4 bedroom property at the eagerly anticipated development of Bonnington Walk, Lockleaze. Available on a shared ownership basis, this is a great way to make your next home purchase more affordable.
Property Oracle says ..
Therefore, we give this property 8 / 10. *Disclaimer: This is our option and does constitute a recommendation or financial advice. Do your own research. *
- Price
- 10
- Condition
- 9
- Location
- 7
- Land
- 6
- Bedrooms
- 4
- Bathrooms
- 1
The heatmap indicates the level of crime in the area. The color of the heatmap indicates the crime severity and recency.
Metrics Year-on-Year
- Average area value
- 308,695.00 £Decreased by 14.98 %
- Average area rental value
- 2,053.00 £/moIncreased by 3.06 %
- Est rental Yield
- 7.98 %Increased by 21.28 %
- Crime Rate
- 8.00 %Unchanged by 0.00 %
from 363,095.00 £
from 1,992.00 £/mo
from 6.58 %
from 8.00 %
Agent Activity
Solo Homes Ltd created the listing.
Nearby Schools
| Name | Type | Ofsted | Distance |
|---|---|---|---|
| Stoke Park Primary School | Academy Converter | 0.39 KM | |
| Trinity Academy | Free Schools | 0.40 KM | |
| Filton Avenue Nursery School And Children'S Centre | Children's Centre | 1.08 KM | |
| Wallscourt Farm Academy | Academy Sponsor Led | Good | 1.11 KM |
| Filton Avenue Primary School | Academy Converter | Requires improvement | 1.16 KM |
Images
Nearby Streets
| Name | Average Price | Average Sqft | Distance |
|---|---|---|---|
| Gainsborough Square | £ 0 | 0 | 0.00 KM |
| Flaxman Close | £ 0 | 0 | 0.00 KM |
| More Street | £ 0 | 0 | 0.00 KM |
| Concorde Way | £ 0 | 0 | 0.00 KM |
| Lawn Close | £ 0 | 0 | 0.00 KM |
Nearby Transport
| Name | NLC | TLC | Distance |
|---|---|---|---|
| Filton Abbey Wood | 3235 | FIT | 1.56 KM |
| Stapleton Road | 3250 | SRD | 2.63 KM |
| Bristol Parkway | 3230 | BPW | 3.51 KM |
| Lawrence Hill | 3225 | LWH | 3.67 KM |
| Montpelier | 3203 | MTP | 3.71 KM |
Nearby Listings
| Address | Price | Type | Score | Distance |
|---|---|---|---|---|
| Merryweather Avenue, Bonnington Walk, Lockleaze | £ 121,250 | BUY | 8 / 10 | 0.00 KM |
| Branwhite Close, Bristol, Somerset, BS7 | £ 325,000 | BUY | 5 / 10 | 0.16 KM |
| Bonnington Walk, Bristol, BS7 | £ 340,000 | BUY | 6 / 10 | 0.19 KM |
| Bonnington Walk, Bristol, BS7 | £ 325,000 | BUY | 7 / 10 | 0.19 KM |
| HMO INVESTMENT | £63K PA | £ 550,000 | BUY | Unknown | 0.20 KM |
Nearby Properties
| Address | Price | Distance |
|---|---|---|
| 89 Bonnington Walk | £ 142,000 | 0.14 KM |
| 1 Branwhite Close | £ 138,000 | 0.17 KM |
| 35 Crome Road | £ 312,850 | 0.17 KM |
| 19 Crome Road | £ 245,000 | 0.17 KM |
| 49 Constable Road | £ 250,000 | 0.18 KM |