Incredible 3,800 square feet Henbury home with a private central courtyard
By Storeys
£ 1,500,000
Reviews
3 out of 5 stars
Storeys says ..
Set on a private 2.26 acre plot with 5 double bedrooms, mature gardens and lovely rural views
Property Oracle says ..
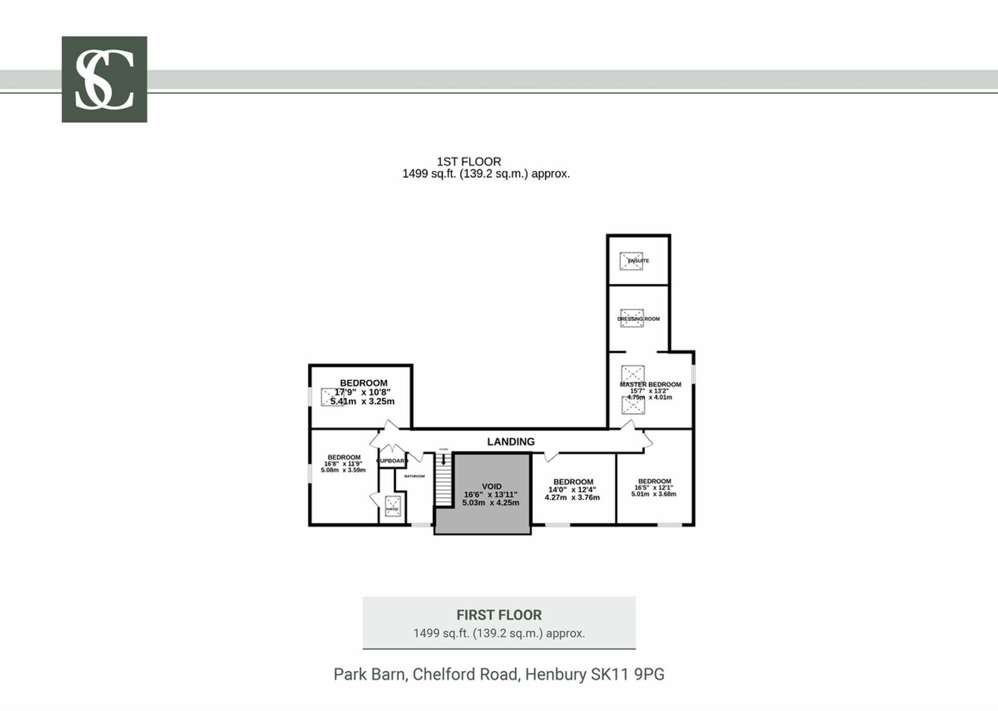
This stunning barn conversion in Henbury, Cheshire, presents a compelling opportunity for discerning buyers seeking a luxurious and spacious family home in a semi-rural setting. The property is beautifully presented, showcasing high-quality fixtures, fittings, and tasteful design elements. The open-plan living spaces are both spacious and inviting, seamlessly blending modern amenities with character features such as exposed beams. The inclusion of five bedrooms and three bathrooms further caters to the needs of a growing family. The large garden and private courtyard offer ample space for relaxation and entertaining, creating a tranquil retreat. The property’s proximity to excellent schools and various transport links in nearby towns enhances its accessibility and value. While the listed price is substantial, it appears to be in line with properties of similar scale and quality in the local area, making it worthy of strong consideration. Overall, this is an exceptional property offering a remarkable blend of rural tranquility and modern luxury.
Therefore, we give this property 7 / 10. *Disclaimer: This is our option and does constitute a recommendation or financial advice. Do your own research. *
- Price
- 7
- Condition
- 9
- Location
- 7
- Land
- 8
- Bedrooms
- 5
- Bathrooms
- 3
- Sqft (est)
- 840.66
The heatmap indicates the level of crime in the area. The color of the heatmap indicates the crime severity and recency.
Metrics Year-on-Year
- Average area value
- 751,347.00 £Increased by 38.02 %
- Est sale value
- 418,648.68 £Increased by 35.33 %
- Average area rental value
- 1,608.00 £/moIncreased by 29.47 %
- Est letting value
- 840.66 £/mo
- Est rental Yield
- 2.57 %Decreased by 6.20 %
- Crime Rate
- 0.00 %
Agent Activity
Storeys created the listing.
Nearby Schools
| Name | Type | Ofsted | Distance |
|---|---|---|---|
| Whirley Primary School | Academy Converter | Good | 2.25 KM |
| Eden School | Other Independent Special School | Good | 2.37 KM |
| The King'S School In Macclesfield | Other Independent School | 3.45 KM | |
| Broken Cross Primary Academy And Nursery | Academy Sponsor Led | Good | 3.56 KM |
| Broken Cross Children'S Centre | Children's Centre | 3.58 KM |
Images
Nearby Streets
| Name | Average Price | Average Sqft | Distance |
|---|---|---|---|
| Williams Way | £ 450,000 | 0 | 0.00 KM |
Nearby Transport
| Name | NLC | TLC | Distance |
|---|---|---|---|
| Prestbury | 2875 | PRB | 6.43 KM |
| Alderley Edge | 2760 | ALD | 6.92 KM |
| Macclesfield | 2871 | MAC | 7.82 KM |
| Wilmslow | 2774 | WML | 8.35 KM |
| Adlington (Cheshire) | 2939 | ADC | 9.34 KM |
Nearby Listings
| Address | Price | Type | Score | Distance |
|---|---|---|---|---|
| Incredible 3,800 square feet Henbury home with a private central courtyard | £ 1,500,000 | BUY | 7 / 10 | 0.00 KM |
| Home Farm Barns, School Lane, Henbury | £ 599,995 | BUY | 7 / 10 | 0.79 KM |
| School Lane, Henbury, SK11 | £ 599,995 | BUY | 6 / 10 | 0.80 KM |
| School Lane, Henbury | £ 1,195,000 | BUY | 8 / 10 | 0.96 KM |
| Andertons Lane, Henbury, Macclesfield | £ 1,100,000 | BUY | Unknown | 1.13 KM |
Nearby Properties
| Address | Price | Distance |
|---|---|---|
| Old Chapter | £ 500,000 | 0.51 KM |
| Broome Cottage | £ 852,500 | 0.51 KM |
| The Mount | £ 1,050,000 | 1.12 KM |
| Far Hills | £ 580,000 | 1.12 KM |
| 37 Hightree Drive | £ 484,000 | 1.30 KM |