STATION ROAD, HORSHAM, WEST SUSSEX, RH13 5EU
By Courtney Green
£ 275,000
Reviews
3 out of 5 stars
Courtney Green says ..
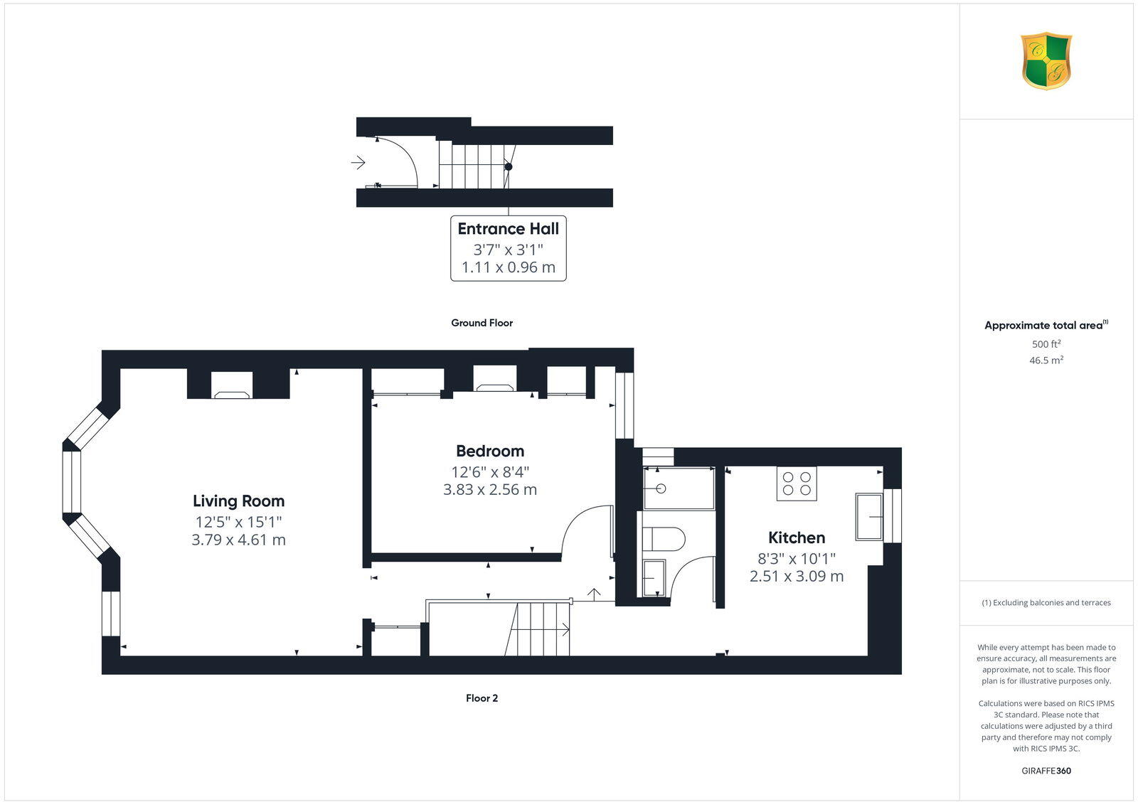
A beautifully refurbished Victorian maisonette with its own garden, located just a few minutes walk from Horsham train station and town. Large double bedroom, bright and spacious living room, modern kitchen, modern shower suite, parking. NO CHAIN
Property Oracle says ..
This maisonette is located on Station Road in Horsham, West Sussex, a town with good transport links via the nearby Horsham train station providing access to London and other parts of the UK. The property benefits from being close to several schools, including well-regarded primary schools like Kingslea Primary School. The images show a property that has been recently renovated to a high standard, with a modern kitchen and bathroom. The property also benefits from a private rear garden, which is a desirable feature.
Given the average price per sqft in the area is £431 and this property is 500.52 sqft, one might expect a price closer to £215,726. However, the list price of £275,000 suggests a premium, potentially reflecting the recent renovations and desirable location. While the average house price in the area is significantly higher (£447,117), this figure is likely skewed by larger properties. Comparable properties on Station Road range from £175,000 to £280,000 for maisonettes, supporting the idea that the list price is at the higher end of the market for this type of property in this location. The lack of plot size data makes a precise land valuation impossible.
Therefore, we give this property 7 / 10. *Disclaimer: This is our option and does constitute a recommendation or financial advice. Do your own research. *
- Price
- 6
- Condition
- 9
- Location
- 8
- Land
- 7
- Bedrooms
- 1
- Bathrooms
- 1
- Sqft (est)
- 500.52
The heatmap indicates the level of crime in the area. The color of the heatmap indicates the crime severity and recency.
Metrics Year-on-Year
- Average area value
- 508,948.00 £Increased by 6.99 %
- Est sale value
- 325,838.52 £Increased by 48.63 %
- Average area rental value
- 1,944.00 £/moIncreased by 29.95 %
- Est letting value
- 1,001.04 £/moIncreased by 100.00 %
- Est rental Yield
- 4.58 %Increased by 21.49 %
- Crime Rate
- 11.00 %Unchanged by 0.00 %
Agent Activity
Courtney Green created the listing.
Nearby Schools
| Name | Type | Ofsted | Distance |
|---|---|---|---|
| Horsham Nursery School | Local Authority Nursery School | Good | 0.57 KM |
| Horsham Children And Family Centre | Children's Centre | 0.57 KM | |
| Bohunt Horsham | Free Schools | 0.63 KM | |
| Kingslea Primary School | Community School | Good | 0.66 KM |
| The College Of Richard Collyer In Horsham | Further Education | Outstanding | 0.99 KM |
Images
Nearby Streets
| Name | Average Price | Average Sqft | Distance |
|---|---|---|---|
| B2195 | £ 0 | 0 | 0.00 KM |
| The Poplars | £ 235,000 | 0 | 0.00 KM |
| Mulbery Estate | £ 0 | 0 | 0.00 KM |
| Waterfield Close | £ 0 | 0 | 0.00 KM |
| Moonstone Mews | £ 375,000 | 0 | 0.00 KM |
Nearby Transport
| Name | NLC | TLC | Distance |
|---|---|---|---|
| Horsham | 5309 | HRH | 0.30 KM |
| Littlehaven | 5498 | LVN | 1.72 KM |
| Warnham | 5316 | WNH | 3.22 KM |
| Christs Hospital | 5319 | CHH | 5.49 KM |
| Faygate | 5493 | FGT | 6.75 KM |
Nearby Listings
| Address | Price | Type | Score | Distance |
|---|---|---|---|---|
| STATION ROAD, HORSHAM, WEST SUSSEX, RH13 5EU | £ 275,000 | BUY | 7 / 10 | 0.00 KM |
| Station Road, Horsham | £ 280,000 | BUY | 6 / 10 | 0.00 KM |
| Station Road, Horsham | £ 185,000 | BUY | 6 / 10 | 0.01 KM |
| Station Road, Horsham, West Sussex, RH13 5EX | £ 395,000 | BUY | 6 / 10 | 0.05 KM |
| Station Road, Horsham, RH13 | £ 575,000 | BUY | 7 / 10 | 0.06 KM |
Nearby Properties
| Address | Price | Distance |
|---|---|---|
| 60 Station Road | £ 306,000 | 0.01 KM |
| 90 Station Road | £ 300,000 | 0.01 KM |
| 70a Station Road | £ 166,000 | 0.01 KM |
| 82 Station Road | £ 605,000 | 0.01 KM |
| 78 Station Road | £ 575,000 | 0.01 KM |