Waterview says ..
Panther Quay is an exclusive, private mooring in a beautiful and convenient location on the River Thames.
Property Oracle says ..
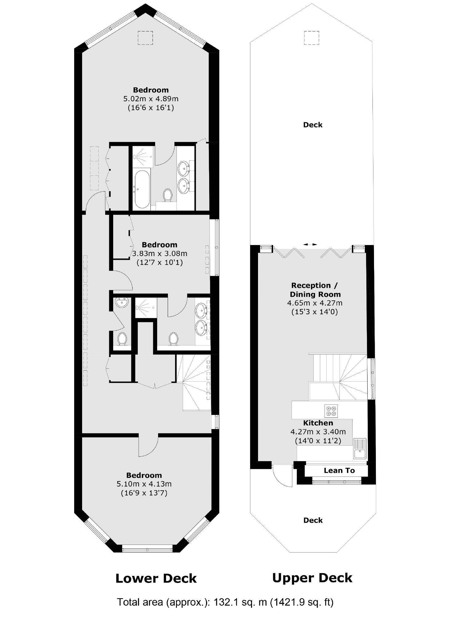
This is a modern houseboat located in the desirable Hampton Wick area of London. The property offers 3 bedrooms and 2 bathrooms within 1,421.91 sqft of living space. The interior appears to be in good condition, with a modern kitchen and bathrooms. While it lacks a traditional garden, it features a deck area. The location is convenient, with proximity to the River Thames, Kingston town centre, and good transport links. The asking price of £475,000 seems reasonable for this type of property and its location.
Therefore, we give this property 6 / 10. *Disclaimer: This is our option and does constitute a recommendation or financial advice. Do your own research. *
- Price
- 7
- Condition
- 8
- Location
- 7
- Land
- 3
- Bedrooms
- 3
- Bathrooms
- 2
- Sqft (est)
- 1,421.91
The heatmap indicates the level of crime in the area. The color of the heatmap indicates the crime severity and recency.
Metrics Year-on-Year
- Average area value
- 1,624,990.00 £Increased by 110.09 %
- Est sale value
- 1,261,234.17 £Decreased by 13.46 %
- Average area rental value
- 3,226.00 £/moIncreased by 2.77 %
- Est letting value
- 1,421.91 £/moDecreased by 75.00 %
- Est rental Yield
- 2.38 %Decreased by 51.13 %
- Crime Rate
- 8.00 %Unchanged by 0.00 %
Agent Activity
Waterview created the listing.
Nearby Schools
| Name | Type | Ofsted | Distance |
|---|---|---|---|
| Kingston University | Higher Education Institutions | Good | 0.66 KM |
| St John The Baptist Church Of England Junior School | Voluntary Aided School | Good | 0.66 KM |
| South Thames Colleges Group | Further Education | Good | 0.75 KM |
| Hampton Wick Infant And Nursery School | Community School | Outstanding | 0.77 KM |
| Bedelsford School | Academy Special Converter | Outstanding | 1.11 KM |
Images
Nearby Streets
| Name | Average Price | Average Sqft | Distance |
|---|---|---|---|
| Old Bakery Mews | £ 0 | 0 | 0.00 KM |
| Becketts Wharf | £ 0 | 0 | 0.00 KM |
| Steadfast Road | £ 400,000 | 0 | 0.00 KM |
| Charter Quay | £ 677,273 | 0 | 0.00 KM |
| A308 | £ 0 | 0 | 0.00 KM |
Nearby Transport
| Name | NLC | TLC | Distance |
|---|---|---|---|
| Hampton Wick | 5589 | HMW | 0.47 KM |
| Kingston | 5565 | KNG | 0.93 KM |
| Surbiton | 5571 | SUR | 2.21 KM |
| Norbiton | 5568 | NBT | 2.82 KM |
| Teddington | 5572 | TED | 2.94 KM |
Nearby Listings
| Address | Price | Type | Score | Distance |
|---|---|---|---|---|
| Old Bridge Street, Hampton Wick | £ 475,000 | BUY | 6 / 10 | 0.00 KM |
| Panther Quay, Kingston Upon Thames, KT1 | £ 475,000 | BUY | Unknown | 0.03 KM |
| Marina Place, Hampton Wick | £ 375,000 | BUY | 6 / 10 | 0.04 KM |
| Marina Place, Kingston Upon Thames, KT1 | £ 795,000 | BUY | 8 / 10 | 0.06 KM |
| Marina Place, Hampton Wick, KT1 | £ 450,000 | BUY | Unknown | 0.06 KM |
Nearby Properties
| Address | Price | Distance |
|---|---|---|
| 19 Old Bridge Street | £ 480,000 | 0.02 KM |
| 10 Marina Place | £ 420,000 | 0.06 KM |
| 36 Marina Place | £ 395,000 | 0.06 KM |
| 2 Marina Place | £ 342,000 | 0.06 KM |
| 19 Marina Place | £ 375,000 | 0.06 KM |