Hall Lane, Tharston
TW

Hall Lane, Tharston

By TW Gaze

£ 332,000

Reviews

3 out of 5 stars

TW Gaze says ..

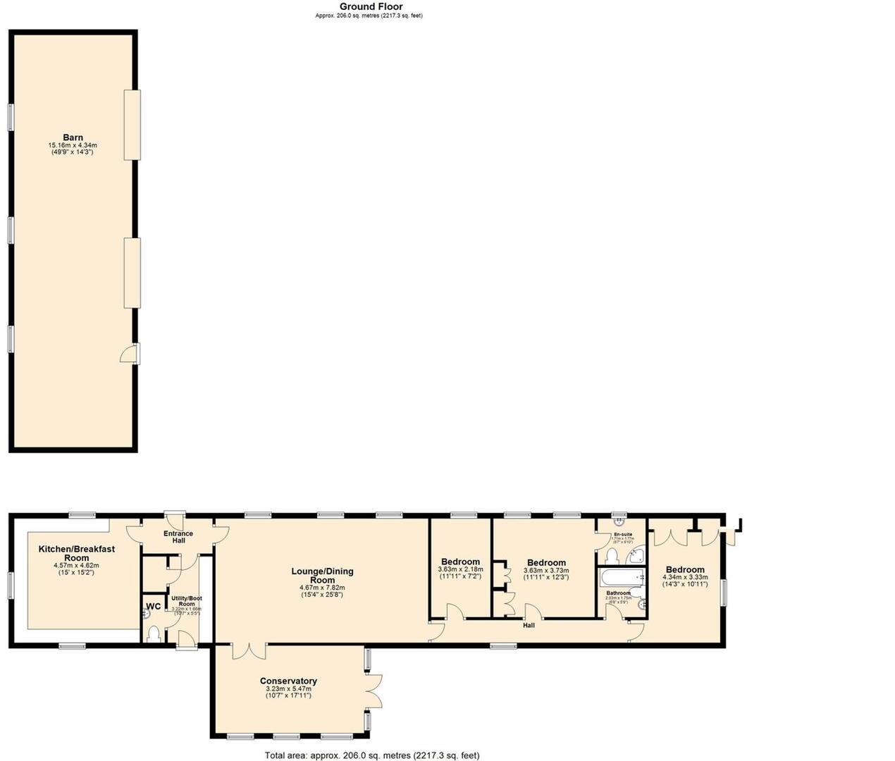
A three bedroom character barn conversion with second barn currently used as double garage and storage all set in a tranquil rural setting.

Property Oracle says ..

This charming barn conversion on Hall Lane in Tharston offers a blend of traditional character and modern living. The property features three bedrooms and three bathrooms, making it suitable for families or couples. The interior showcases exposed beams and a traditional kitchen, while the bathrooms have been updated with modern fixtures. The property also benefits from a garden, a gravel driveway, and a separate outbuilding with solar panels. Located in the peaceful locality of Forncett, South Norfolk, the property is within easy reach of local amenities and schools, as well as the city of Norwich. While the property is generally in good condition, some areas may benefit from minor updates to fully modernize the space. Overall, this barn conversion presents a unique opportunity to own a characterful home in a desirable rural location.

Therefore, we give this property 7 / 10. *Disclaimer: This is our option and does constitute a recommendation or financial advice. Do your own research. *

Price
6
Condition
7
Location
7
Land
8
Bedrooms
3
Bathrooms
3

The heatmap indicates the level of crime in the area. The color of the heatmap indicates the crime severity and recency.

Metrics Year-on-Year

Average area value
262,833.00 £
Decreased by 38.15 %
from 424,924.00 £
Average area rental value
1,350.00 £/mo
Increased by 3.85 %
from 1,300.00 £/mo
Est rental Yield
6.16 %
Increased by 67.85 %
from 3.67 %
Crime Rate
0.00 %
from 0.00 %

Agent Activity

  • TW Gaze created the listing.

Nearby Schools

NameTypeOfstedDistance
St Mary'S Church Of England Junior AcademyAcademy ConverterGood1.30 KM
Long Stratton High SchoolAcademy Sponsor LedGood1.44 KM
Long Stratton Area Children'S CentreChildren's Centre1.71 KM
Manor Field Infant And Nursery SchoolAcademy ConverterGood1.72 KM
Preston Church Of England Voluntary Controlled Primary SchoolVoluntary Controlled SchoolGood2.81 KM

Images

IMG_E3336.JPG IMG_E3337.JPG IMG_E3340.JPG IMG_E3359.JPG IMG_E3360.JPG IMG_E3361.JPG The Gables - Plan for Brochure.JPG IMG_E3345.JPG IMG_E3344.JPG IMG_E3349.JPG DJI_0827.JPG IMG_E3346.JPG IMG_E3348.JPG IMG_E3343.JPG DJI_0832.JPG IMG_E3335.JPG IMG_E3338.JPG IMG_E3339.JPG IMG_E3362.JPG IMG_E3358.JPG IMG_E3334.JPG IMG_E3354.JPG IMG_E3355.JPG IMG_E3356.JPG IMG_E3352.JPG DJI_0834.JPG

Nearby Streets

NameAverage PriceAverage SqftDistance
Chequers Close £ 000.00 KM

Nearby Listings

AddressPriceTypeScoreDistance
Hall Lane, Tharston £ 332,000BUY7 / 100.00 KM
Hall Lane, Tharston £ 475,000BUY7 / 100.08 KM
Hall Road, Tharston, Norfolk, NR15 £ 1,150,000BUY7 / 100.33 KM
Highfields, Tharston £ 290,000BUY7 / 101.04 KM
The Street, Tharston, Norfolk £ 925,000BUY7 / 101.06 KM

Nearby Properties

AddressPriceDistance
Wheeler Barn £ 750,0000.20 KM
Ivy Farm £ 440,0001.01 KM
Highview House £ 510,0001.01 KM
Read Barn £ 385,0001.01 KM
Walnut Barn £ 645,0001.01 KM