PH
Anthonys Avenue, Lilliput, Poole, BH14 8JH
By Philippa Sole
£ 1,000,000
Reviews
3 out of 5 stars
Philippa Sole says ..
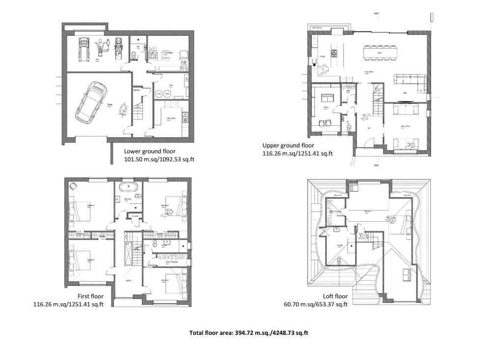
LILLIPUT RENOVATION or NEW BUILD OPPORTUNITY, in a Prime COASTAL PLOT with approved plans for a 4,248 SQ FT HOME, or renovate the existing THREE-BEDROOM HOUSE. Just 1.5 MILES from SANDBANKS BEACH and close to PARKSTONE STATION (LONDON WATERLOO in ~2 HOURS). SOUGHT-AFTER LOCATION with huge potent...
Property Oracle says ..
Therefore, we give this property 7 / 10. *Disclaimer: This is our option and does constitute a recommendation or financial advice. Do your own research. *
- Price
- 5
- Condition
- 9
- Location
- 8
- Land
- 7
- Bedrooms
- 5
- Bathrooms
- 4
- Sqft (est)
- 924.40
The heatmap indicates the level of crime in the area. The color of the heatmap indicates the crime severity and recency.
Metrics Year-on-Year
- Average area value
- 740,495.00 £Increased by 7.69 %
- Est sale value
- 541,698.40 £Increased by 4.09 %
- Average area rental value
- 2,050.00 £/moIncreased by 8.75 %
- Est letting value
- 924.40 £/moUnchanged by 0.00 %
- Est rental Yield
- 3.32 %Increased by 0.91 %
- Crime Rate
- 2.00 %Unchanged by 0.00 %
from 687,622.00 £
from 520,437.20 £
from 1,885.00 £/mo
from 924.40 £/mo
from 3.29 %
from 2.00 %
Agent Activity
Philippa Sole created the listing.
Nearby Schools
| Name | Type | Ofsted | Distance |
|---|---|---|---|
| Lilliput Church Of England Infant School | Academy Converter | 0.17 KM | |
| Bournemouth Collegiate Preparatory School | Other Independent School | 1.10 KM | |
| Baden-Powell And St Peter'S Church Of England Junior School | Academy Converter | Good | 1.64 KM |
| Courthill Infant School | Academy Converter | Good | 1.74 KM |
| Ted Webster Children Centre | Children's Centre | 2.36 KM |
Images
Nearby Streets
| Name | Average Price | Average Sqft | Distance |
|---|---|---|---|
| Fairway Road | £ 0 | 0 | 0.00 KM |
| Blake Hill Crescent | £ 1,500,000 | 0 | 0.00 KM |
| Dorset Lake Avenue | £ 0 | 0 | 0.00 KM |
| The Capstans | £ 950,000 | 0 | 0.00 KM |
| Fairview Park | £ 375,000 | 0 | 0.00 KM |
Nearby Transport
| Name | NLC | TLC | Distance |
|---|---|---|---|
| Parkstone (Dorset) | 5882 | PKS | 1.69 KM |
| Branksome | 5875 | BSM | 2.85 KM |
| Poole | 5883 | POO | 4.96 KM |
| Bournemouth | 5876 | BMH | 8.49 KM |
| Hamworthy | 5940 | HAM | 9.00 KM |
Nearby Listings
| Address | Price | Type | Score | Distance |
|---|---|---|---|---|
| Anthonys Avenue, Lilliput, Poole, BH14 8JH | £ 1,000,000 | BUY | 7 / 10 | 0.00 KM |
| Anthonys Avenue, Lilliput, BH14 | £ 875,000 | BUY | 6 / 10 | 0.08 KM |
| Greenwood Avenue, Lilliput | £ 1,395,000 | BUY | 7 / 10 | 0.15 KM |
| Greenwood Avenue, Lilliput | £ 1,500,000 | BUY | Unknown | 0.15 KM |
| Greenwood Avenue, Lilliput | £ 1,750,000 | BUY | 8 / 10 | 0.15 KM |
Nearby Properties
| Address | Price | Distance |
|---|---|---|
| 22 Greenwood Avenue | £ 1,750,000 | 0.15 KM |
| 7 Greenwood Avenue | £ 1,155,000 | 0.15 KM |
| 4 Greenwood Avenue | £ 899,950 | 0.15 KM |
| 18 Greenwood Avenue | £ 1,000,000 | 0.15 KM |
| 11 Greenwood Avenue | £ 900,000 | 0.15 KM |