Whitesands Road, Lymm WA13 9LJ
By Banner & Co
£ 345,000
Reviews
3 out of 5 stars
Banner & Co says ..
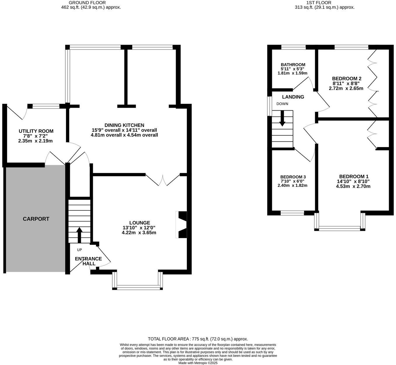
A traditional, three bed semi-detached house. In need of some modernisation and with great potential to extend (STPP). Having the benefit of off-road parking and a fully enclosed rear garden, early viewings are strongly recommended to appreciate all that this property has to offer....
Property Oracle says ..
Lymm is a highly sought-after village in Cheshire, known for its excellent schools, village atmosphere, and convenient access to transport links to major cities such as Manchester. The property’s location on Whitesands Road places it within easy reach of local amenities and green spaces. The proximity to several well-regarded primary schools, such as Cherry Tree Primary School (rated Outstanding by Ofsted), is a significant advantage for families. Train stations such as Birchwood are within a reasonable commuting distance.
The property appears to be in generally good condition, although some aspects of the interior decor and kitchen may appear dated to some buyers. The property benefits from a well-maintained garden and a shed, adding to its appeal. The overall impression is of a comfortable family home that is well-presented but could benefit from some modernisation to enhance its value.
The property has a garden, though its size is not specified. The presence of a garden is a positive attribute, particularly in a desirable area like Lymm.
Considering the average price per square foot in the area (£337) and the property’s size (775 sqft), a rough estimate of its value would be around £260,875. However, the list price of £345,000 is significantly higher. This discrepancy could be attributed to several factors, including the highly desirable location, the presence of a garden, and the potential for future capital appreciation in Lymm. The higher list price could also reflect the competitive nature of the Lymm property market. Further analysis of comparable properties in the immediate vicinity would help to determine if the list price is justifiable.
Therefore, we give this property 7 / 10. *Disclaimer: This is our option and does constitute a recommendation or financial advice. Do your own research. *
- Price
- 6
- Condition
- 7
- Location
- 9
- Land
- 7
- Bedrooms
- 3
- Bathrooms
- 1
- Sqft (est)
- 775.00
The heatmap indicates the level of crime in the area. The color of the heatmap indicates the crime severity and recency.
Metrics Year-on-Year
- Average area value
- 415,495.00 £Increased by 10.96 %
- Est sale value
- 396,800.00 £Increased by 57.06 %
- Average area rental value
- 1,617.00 £/moIncreased by 34.75 %
- Est letting value
- 775.00 £/moUnchanged by 0.00 %
- Est rental Yield
- 4.67 %Increased by 21.30 %
- Crime Rate
- 13.00 %Unchanged by 0.00 %
Agent Activity
Banner & Co created the listing.
Nearby Schools
| Name | Type | Ofsted | Distance |
|---|---|---|---|
| Statham Primary School | Academy Converter | 0.54 KM | |
| Cherry Tree Primary School | Community School | Outstanding | 0.83 KM |
| Lymm Children'S Centre | Children's Centre Linked Site | 1.18 KM | |
| Bright Futures | Other Independent Special School | Outstanding | 1.55 KM |
| Ravenbank Primary School | Academy Converter | 2.47 KM |
Images
Nearby Streets
| Name | Average Price | Average Sqft | Distance |
|---|---|---|---|
| The Poplars | £ 0 | 0 | 0.00 KM |
| Meadow View | £ 250,000 | 0 | 0.00 KM |
| Booth's Hill Road | £ 0 | 0 | 0.00 KM |
| Wayside Close | £ 750,000 | 0 | 0.00 KM |
| Beech Grove | £ 350,000 | 0 | 0.00 KM |
Nearby Transport
| Name | NLC | TLC | Distance |
|---|---|---|---|
| Birchwood | 2304 | BWD | 4.84 KM |
| Glazebrook | 2301 | GLZ | 6.04 KM |
| Padgate | 2387 | PDG | 7.55 KM |
| Irlam | 2817 | IRL | 8.53 KM |
Nearby Listings
| Address | Price | Type | Score | Distance |
|---|---|---|---|---|
| Whitesands Road, Lymm, WA13 9LJ | £ 325,000 | BUY | Unknown | 0.00 KM |
| Whitesands Road, Lymm, WA13 9LJ | £ 375,000 | BUY | 7 / 10 | 0.00 KM |
| Whitesands Road, Lymm WA13 9LJ | £ 345,000 | BUY | 7 / 10 | 0.00 KM |
| Whitesands Road, Lymm, Cheshire, WA13 | £ 340,000 | BUY | 7 / 10 | 0.01 KM |
| Whitesands Road, Lymm, WA13 9LF | £ 370,000 | BUY | 7 / 10 | 0.05 KM |
Nearby Properties
| Address | Price | Distance |
|---|---|---|
| 63 Whitesands Road | £ 211,000 | 0.01 KM |
| 25 Whitesands Road | £ 123,750 | 0.01 KM |
| 27 Whitesands Road | £ 200,000 | 0.01 KM |
| 65 Whitesands Road | £ 250,000 | 0.01 KM |
| 37 Whitesands Road | £ 280,000 | 0.01 KM |