igomove says ..
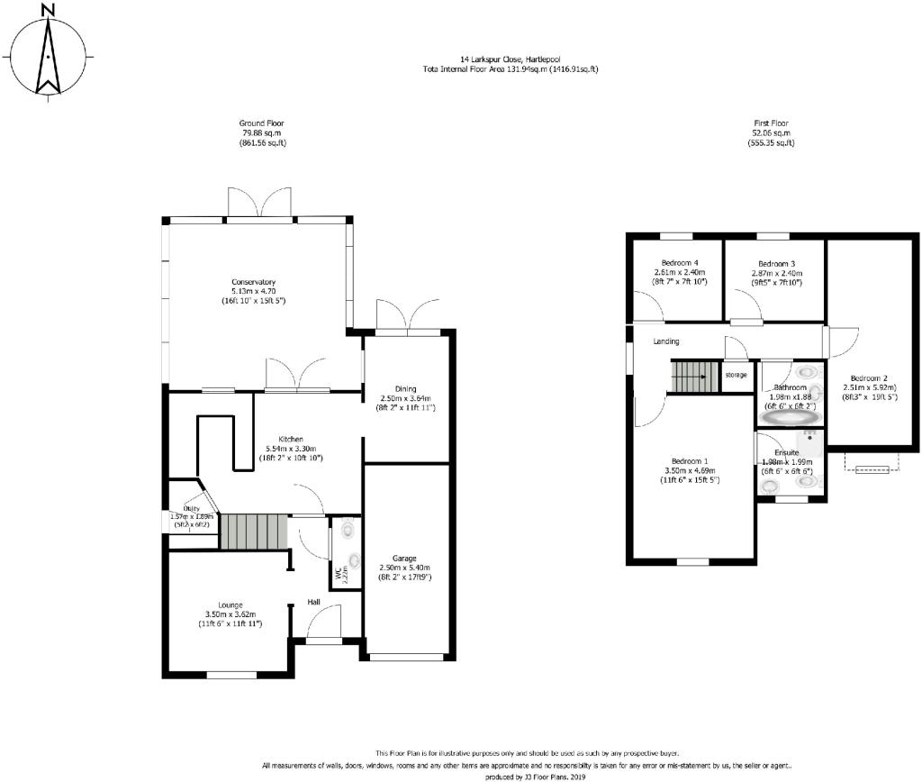
Igomove take great pleasure in offering to the market this superb four bedroomed detached house situated in a popular area, it provides several key desirable attributes including; four well proportioned bedrooms (master with en suite facilities), excellent family bathroom, lovely lounge, excellen...
Property Oracle says ..
This is a four-bedroom detached house on Larkspur Close in Hartlepool. The property appears to be well-maintained and in good condition, with modern interior features. It benefits from a garden with a patio area. The location offers proximity to schools and transportation links. The price is reasonable, but slightly higher than recent sales of similar properties in the area. The property includes a garage, ensuite bathroom, and utility room, adding to its appeal for families.
Therefore, we give this property 7 / 10. *Disclaimer: This is our option and does constitute a recommendation or financial advice. Do your own research. *
- Price
- 7
- Condition
- 8
- Location
- 7
- Land
- 6
- Bedrooms
- 4
- Bathrooms
- 2
The heatmap indicates the level of crime in the area. The color of the heatmap indicates the crime severity and recency.
Metrics Year-on-Year
- Average area value
- 926,998.00 £Increased by 247.85 %
- Average area rental value
- 1,034.00 £/moIncreased by 10.47 %
- Est rental Yield
- 1.34 %Decreased by 68.17 %
- Crime Rate
- 1.00 %Unchanged by 0.00 %
Agent Activity
igomove created the listing.
Nearby Schools
| Name | Type | Ofsted | Distance |
|---|---|---|---|
| Clavering Primary School | Community School | Good | 0.89 KM |
| Throston Primary School And Children'S Centre | Children's Centre Linked Site | 0.98 KM | |
| Throston Primary School | Community School | Good | 0.98 KM |
| Barnard Grove Primary School | Academy Converter | 1.24 KM | |
| Springwell School | Community Special School | Outstanding | 1.27 KM |
Images
Nearby Streets
| Name | Average Price | Average Sqft | Distance |
|---|---|---|---|
| Meadowsweet Road | £ 500,000 | 0 | 0.00 KM |
| Honeysuckle Close | £ 305,000 | 0 | 0.00 KM |
| Waterlily Court | £ 0 | 0 | 0.00 KM |
| Hart Road | £ 125,000 | 0 | 0.00 KM |
| Baker Close | £ 0 | 0 | 0.00 KM |
Nearby Transport
| Name | NLC | TLC | Distance |
|---|---|---|---|
| Hartlepool | 8009 | HPL | 4.50 KM |
| Seaton Carew | 8007 | SEC | 7.02 KM |
Nearby Listings
| Address | Price | Type | Score | Distance |
|---|---|---|---|---|
| Larkspur Close, Hartlepool | £ 285,000 | BUY | 7 / 10 | 0.00 KM |
| Snowdrop Road, Bishop Cuthbert, Hartlepool | £ 110,000 | BUY | 6 / 10 | 0.04 KM |
| Snowdrop Road, Bishop Cuthbert, Hartlepool | £ 250,000 | BUY | 7 / 10 | 0.07 KM |
| Larkspur Close, Hartlepool | £ 210,000 | BUY | Unknown | 0.09 KM |
| Snowdrop Road, Hartlepool | £ 330,000 | BUY | 7 / 10 | 0.10 KM |
Nearby Properties
| Address | Price | Distance |
|---|---|---|
| 5 Larkspur Close | £ 180,000 | 0.09 KM |
| 2 Larkspur Close | £ 147,450 | 0.09 KM |
| 3 Larkspur Close | £ 218,000 | 0.09 KM |
| 12 Larkspur Close | £ 178,000 | 0.09 KM |
| 14 Larkspur Close | £ 195,000 | 0.09 KM |