Hunters says ..
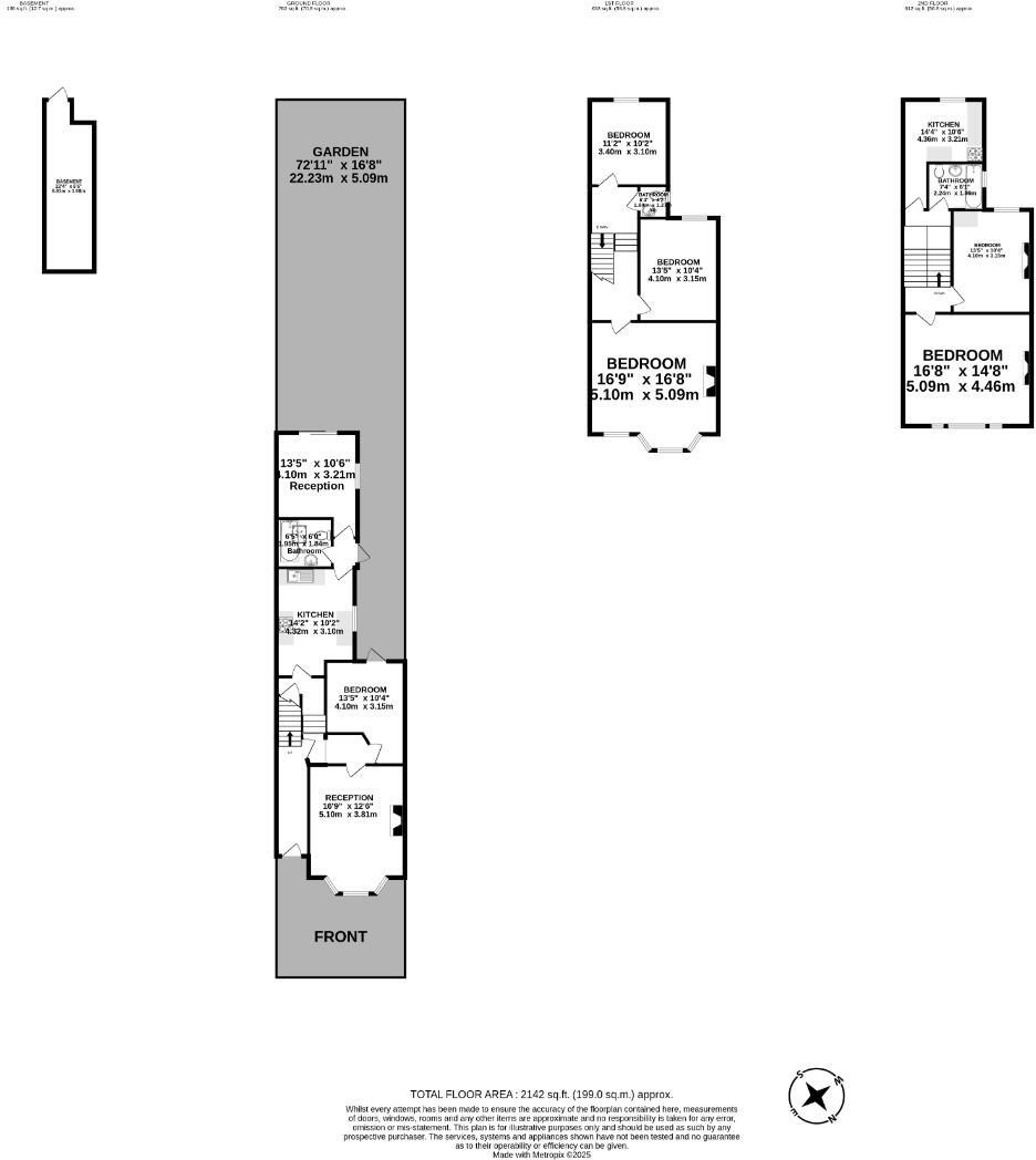
Rarely available and coming to the market for the first time in over 40 years, this elegant five/six-bedroom Victorian home is perfectly positioned on a peaceful, tree-lined street. Offering timeless character and generous proportions throughout, it boasts 2,140 sq. ft. (199 sqm) of internal spac...
Property Oracle says ..
Therefore, we give this property 6 / 10. *Disclaimer: This is our option and does constitute a recommendation or financial advice. Do your own research. *
- Price
- 5
- Condition
- 5
- Location
- 8
- Land
- 7
- Bedrooms
- 6
- Bathrooms
- 2
- Sqft (est)
- 2,142.02
The heatmap indicates the level of crime in the area. The color of the heatmap indicates the crime severity and recency.
Metrics Year-on-Year
- Average area value
- 920,000.00 £Increased by 33.45 %
- Est sale value
- 1,949,238.20 £Increased by 8.98 %
- Average area rental value
- 2,550.00 £/moIncreased by 2.12 %
- Est letting value
- 4,284.04 £/moDecreased by 33.33 %
- Est rental Yield
- 3.33 %Decreased by 23.45 %
- Crime Rate
- 5.00 %Unchanged by 0.00 %
from 689,400.00 £
from 1,788,586.70 £
from 2,497.00 £/mo
from 6,426.06 £/mo
from 4.35 %
from 5.00 %
Agent Activity
Hunters created the listing.
Nearby Schools
| Name | Type | Ofsted | Distance |
|---|---|---|---|
| Betty Layward Primary School | Community School | Good | 0.28 KM |
| Stoke Newington School And Sixth Form | Community School | Good | 0.28 KM |
| Grasmere Primary School | Community School | Good | 0.39 KM |
| The Factory Children'S Centre | Children's Centre | 0.62 KM | |
| Highbury Quadrant Primary School | Community School | Good | 0.64 KM |
Images
Nearby Streets
| Name | Average Price | Average Sqft | Distance |
|---|---|---|---|
| Green Lanes | £ 0 | 0 | 0.00 KM |
| Collins Road | £ 425,000 | 0 | 0.00 KM |
| Park View | £ 0 | 0 | 0.00 KM |
| Riversdale Road | £ 887,857 | 0 | 0.00 KM |
| Balfour Road | £ 0 | 0 | 0.00 KM |
Nearby Transport
| Name | NLC | TLC | Distance |
|---|---|---|---|
| Canonbury | 1441 | CNN | 1.06 KM |
| Dalston Kingsland | 1429 | DLK | 1.54 KM |
| Dalston Junction | 1443 | DLJ | 1.73 KM |
| Stoke Newington | 6934 | SKW | 1.81 KM |
| Essex Road | 6004 | EXR | 2.05 KM |
Nearby Listings
| Address | Price | Type | Score | Distance |
|---|---|---|---|---|
| Clissold Crescent, London, N16 | £ 2,000,000 | BUY | 6 / 10 | 0.00 KM |
| Clissold Crescent, Stoke Newington, Hackney | £ 625,000 | BUY | 6 / 10 | 0.00 KM |
| Clissold Crescent, Stoke Newington | £ 950,000 | BUY | 7 / 10 | 0.01 KM |
| Clissold Crescent, Stoke Newington, Hackney | £ 450,000 | BUY | 6 / 10 | 0.01 KM |
| Clissold Crescent, Stoke Newington | £ 1,200,000 | BUY | 7 / 10 | 0.01 KM |
Nearby Properties
| Address | Price | Distance |
|---|---|---|
| 22 Clissold Crescent | £ 430,000 | 0.01 KM |
| 34 Clissold Crescent | £ 575,000 | 0.01 KM |
| 55 Clissold Crescent | £ 520,000 | 0.06 KM |
| 47 Clissold Crescent | £ 1,675,000 | 0.06 KM |
| 35 Clissold Crescent | £ 213,200 | 0.06 KM |