Royal Fox says ..
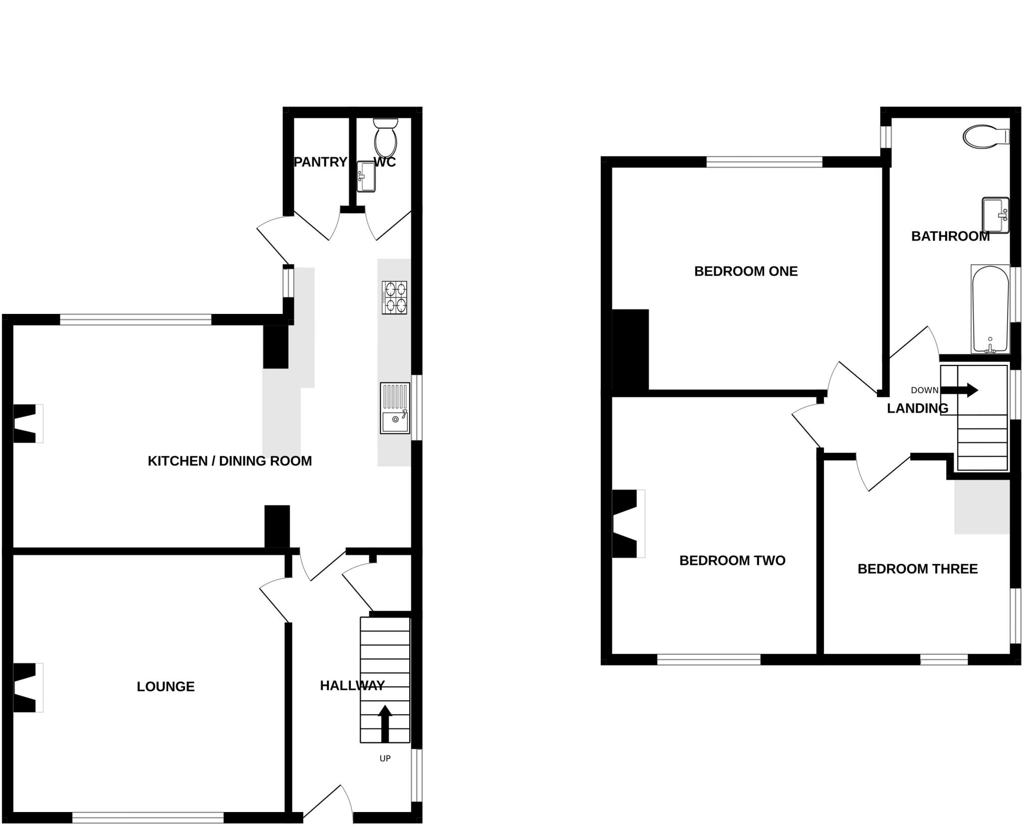
ATTRACTIVE END MEWS - WELL PROPORTIONED ACCOMMODATION - 3 GENEROUS BEDROOMS - IDEAL FAMILY PURCHASE! ... Royal Fox Estates are delighted to offer this well presented & spacious end property (built circa 1913) offering plenty of room for young & growing families alike. Located in a prime spot ...
Property Oracle says ..
Therefore, we give this property 6 / 10. *Disclaimer: This is our option and does constitute a recommendation or financial advice. Do your own research. *
- Price
- 4
- Condition
- 7
- Location
- 7
- Land
- 7
- Bedrooms
- 3
- Bathrooms
- 1
- Sqft (est)
- 369.00
The heatmap indicates the level of crime in the area. The color of the heatmap indicates the crime severity and recency.
Metrics Year-on-Year
- Average area value
- 258,571.00 £Decreased by 18.16 %
- Est sale value
- 121,032.00 £Increased by 11.95 %
- Average area rental value
- 1,230.00 £/moIncreased by 21.30 %
- Est letting value
- 369.00 £/mo
- Est rental Yield
- 5.71 %Increased by 48.31 %
- Crime Rate
- 15.00 %Unchanged by 0.00 %
from 315,930.00 £
from 108,117.00 £
from 1,014.00 £/mo
from 0.00 £/mo
from 3.85 %
from 15.00 %
Agent Activity
Royal Fox created the listing.
Nearby Schools
| Name | Type | Ofsted | Distance |
|---|---|---|---|
| Rosebank School | Community Special School | Good | 1.06 KM |
| Barnton And Weaverham Children'S Centre | Children's Centre | 1.06 KM | |
| Barnton Community Nursery And Primary School | Academy Converter | Good | 1.31 KM |
| Winnington Park Community Primary And Nursery School | Community School | Good | 2.17 KM |
| The Grange School | Other Independent School | 2.56 KM |
Images
Nearby Streets
| Name | Average Price | Average Sqft | Distance |
|---|---|---|---|
| Goodwood Close | £ 0 | 0 | 0.00 KM |
| The Mews | £ 150,000 | 0 | 0.00 KM |
| Leach Drive | £ 150,000 | 0 | 0.00 KM |
| Whitby Drive | £ 242,500 | 0 | 0.00 KM |
| Hazelwood Road | £ 0 | 0 | 0.00 KM |
Nearby Transport
| Name | NLC | TLC | Distance |
|---|---|---|---|
| Greenbank | 2325 | GBK | 2.40 KM |
| Hartford (Cheshire) | 2230 | HTF | 3.53 KM |
| Northwich | 2326 | NWI | 5.15 KM |
| Acton Bridge (Cheshire) | 2287 | ACB | 6.74 KM |
| Cuddington | 2305 | CUD | 7.20 KM |
Nearby Listings
| Address | Price | Type | Score | Distance |
|---|---|---|---|---|
| Broadway, Barnton | £ 225,000 | BUY | 6 / 10 | 0.00 KM |
| Mond Street, Barnton CW8 4LA | £ 245,000 | BUY | 7 / 10 | 0.07 KM |
| Nursery Road, Barnton, CW8 | £ 200,000 | BUY | Unknown | 0.09 KM |
| Nursery Road, Barnton, | £ 135,000 | BUY | 5 / 10 | 0.13 KM |
| Nursery Road, Barnton, Northwich | £ 230,000 | BUY | 6 / 10 | 0.14 KM |
Nearby Properties
| Address | Price | Distance |
|---|---|---|
| 47 Broadway | £ 45,500 | 0.01 KM |
| 38 Broadway | £ 235,000 | 0.01 KM |
| 37 Broadway | £ 103,500 | 0.01 KM |
| 26 Broadway | £ 130,000 | 0.01 KM |
| 34 Broadway | £ 146,000 | 0.01 KM |