Wickham Close, Church Crookham, Fleet, Hampshire, GU52
By Vickery
£ 650,000
Reviews
2 out of 5 stars
Vickery says ..
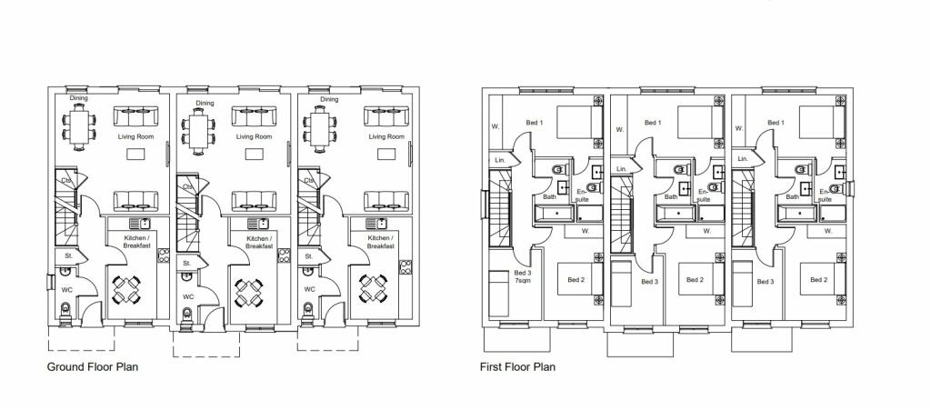
***Planning Permission Granted*** Vickery are proud to present a development opportunity with full planning consent. Planning consent has been granted to erect a terrace of three, three bedroom houses in the rear garden of the existing house. Full details are available on H...
Property Oracle says ..
This property in Wickham Close, Church Crookham, presents a development opportunity rather than a move-in-ready home. The listing highlights planning permission for three three-bedroom houses to be built on the existing property’s rear garden. The current dwelling is a two-bedroom property, showing its age through outdated interiors and fixtures. The interior photographs reveal a need for extensive modernisation and potential renovations. The kitchen, living room and bedrooms all require updating and modernizing. However, the property does boast a sizeable garden which has been given planning permission to build on. The location is a plus point given its proximity to Fleet, offering excellent transport links. Nearby schools are highly rated, making it a desirable location for families. The absence of square footage data for both the house and land hinders a comprehensive assessment of the value per square foot, hence it difficult to determine whether the £650,000 price tag is above or below average for this type of development opportunity.
Therefore, we give this property 5 / 10. *Disclaimer: This is our option and does constitute a recommendation or financial advice. Do your own research. *
- Price
- 6
- Condition
- 4
- Location
- 7
- Land
- 6
- Bedrooms
- 2
- Bathrooms
- 0
The heatmap indicates the level of crime in the area. The color of the heatmap indicates the crime severity and recency.
Metrics Year-on-Year
- Average area value
- 399,167.00 £Increased by 7.59 %
- Average area rental value
- 1,292.00 £/moIncreased by 3.03 %
- Est rental Yield
- 3.88 %Decreased by 4.43 %
- Crime Rate
- 38.00 %Unchanged by 0.00 %
Agent Activity
Vickery marked this listing as sold.
Vickery created the listing.
Nearby Schools
| Name | Type | Ofsted | Distance |
|---|---|---|---|
| Court Moor School | Community School | Good | 0.54 KM |
| Crookham Church Of England Aided Infant School | Voluntary Aided School | Good | 0.68 KM |
| Heatherside Infant School | Community School | Outstanding | 1.29 KM |
| Heatherside Junior School | Community School | Outstanding | 1.29 KM |
| All Saints Church Of England Aided Junior School | Voluntary Aided School | Good | 1.38 KM |
Images
Nearby Streets
| Name | Average Price | Average Sqft | Distance |
|---|---|---|---|
| Rustic Glen | £ 280,000 | 0 | 0.00 KM |
| Woodland Rise | £ 176,665 | 0 | 0.00 KM |
| Rowan Dale | £ 0 | 0 | 0.00 KM |
| Sylvan Way | £ 115,000 | 0 | 0.00 KM |
| Green Glades | £ 204,983 | 0 | 0.00 KM |
Nearby Transport
| Name | NLC | TLC | Distance |
|---|---|---|---|
| Fleet | 5522 | FLE | 3.27 KM |
| Winchfield | 5528 | WNF | 6.91 KM |
| Farnham | 5545 | FNH | 8.57 KM |
| Bentley (Hampshire) | 5624 | BTY | 9.74 KM |
| Aldershot | 5623 | AHT | 9.92 KM |
Nearby Listings
| Address | Price | Type | Score | Distance |
|---|---|---|---|---|
| Wickham Close, Church Crookham, Fleet, Hampshire, GU52 | £ 650,000 | BUY | 6 / 10 | 0.00 KM |
| Fleet, Hampshire, GU52 | £ 115,000 | BUY | Unknown | 0.05 KM |
| Fleet, Hampshire, GU52 | £ 130,000 | BUY | Unknown | 0.05 KM |
| Wickham Place, Church Crookham, Fleet, Hart, GU52 | £ 210,000 | BUY | 5 / 10 | 0.09 KM |
| Wickham Place, Church Crookham, Fleet, GU52 | £ 350,000 | BUY | Unknown | 0.14 KM |
Nearby Properties
| Address | Price | Distance |
|---|---|---|
| 32 Wickham Road | £ 224,950 | 0.03 KM |
| 66 Wickham Road | £ 295,000 | 0.03 KM |
| 26 Wickham Road | £ 383,000 | 0.03 KM |
| 68 Wickham Road | £ 76,000 | 0.03 KM |
| 46 Wickham Road | £ 280,500 | 0.03 KM |