Fox & Sons says ..
AUCTION SALE 03 February 2026 - > Detached four bedroom chalet bungalow > Requiring modernisation - offering various potentials> On good size plot with front & rear access
Property Oracle says ..
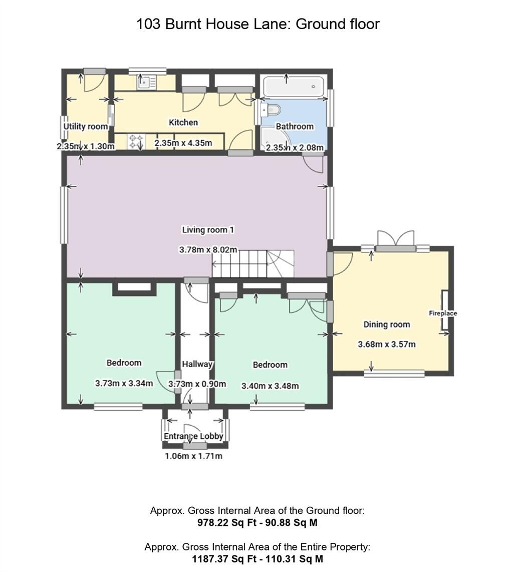
This is a detached bungalow in Stubbington, Fareham, requiring renovation. The property offers four bedrooms and is located near local schools and amenities. While the interior is dated and the garden needs attention, the asking price of £300,000 presents an opportunity for buyers willing to invest in improvements. The property includes a garden and a garage, though both are in need of maintenance.
Therefore, we give this property 5 / 10. *Disclaimer: This is our option and does constitute a recommendation or financial advice. Do your own research. *
- Price
- 8
- Condition
- 3
- Location
- 6
- Land
- 5
- Bedrooms
- 4
- Bathrooms
- 0
The heatmap indicates the level of crime in the area. The color of the heatmap indicates the crime severity and recency.
Metrics Year-on-Year
- Average area value
- 416,667.00 £Decreased by 3.65 %
- Average area rental value
- 1,125.00 £/moDecreased by 20.66 %
- Est rental Yield
- 3.24 %Decreased by 17.56 %
- Crime Rate
- 5.00 %Unchanged by 0.00 %
Agent Activity
Fox & Sons created the listing.
Nearby Schools
| Name | Type | Ofsted | Distance |
|---|---|---|---|
| Meoncross School | Other Independent School | 0.34 KM | |
| Crofton School | Foundation School | Good | 1.32 KM |
| Baycroft School | Community Special School | Good | 1.38 KM |
| Crofton Anne Dale Infant School | Community School | Outstanding | 1.39 KM |
| Crofton Anne Dale Junior School | Community School | Good | 1.39 KM |
Images
Nearby Streets
| Name | Average Price | Average Sqft | Distance |
|---|---|---|---|
| The Poplars | £ 0 | 0 | 0.00 KM |
| Hither Bull Hill | £ 0 | 0 | 0.00 KM |
| Scott Close | £ 0 | 0 | 0.00 KM |
| Crofton View | £ 750,000 | 0 | 0.00 KM |
| Grange Close | £ 731,667 | 0 | 0.00 KM |
Nearby Transport
| Name | NLC | TLC | Distance |
|---|---|---|---|
| Fareham | 5900 | FRM | 3.09 KM |
| Swanwick | 5920 | SNW | 7.71 KM |
| Portchester | 5928 | PTC | 9.77 KM |
Nearby Listings
| Address | Price | Type | Score | Distance |
|---|---|---|---|---|
| Burnt House Lane, FAREHAM | £ 300,000 | BUY | 5 / 10 | 0.00 KM |
| Burnt House Lane, FAREHAM | £ 350,000 | BUY | 6 / 10 | 0.00 KM |
| Burnt House Lane, FAREHAM | £ 400,000 | BUY | 6 / 10 | 0.00 KM |
| Mays Lane, Stubbington | £ 435,000 | BUY | 7 / 10 | 0.11 KM |
| Mays Lane, Stubbington, PO14 | £ 575,000 | BUY | 6 / 10 | 0.16 KM |
Nearby Properties
| Address | Price | Distance |
|---|---|---|
| 102 Burnt House Lane | £ 295,000 | 0.00 KM |
| 90 Burnt House Lane | £ 505,000 | 0.00 KM |
| 98 Burnt House Lane | £ 350,000 | 0.00 KM |
| 106 Burnt House Lane | £ 380,000 | 0.00 KM |
| 105 Burnt House Lane | £ 365,000 | 0.00 KM |