Arnold & Phillips says ..
Arnold and Phillips are pleased to offer for sale this modern three-bedroom detached residence, located in a pleasant spot within walking distance of Ormskirk town centre.
Property Oracle says ..
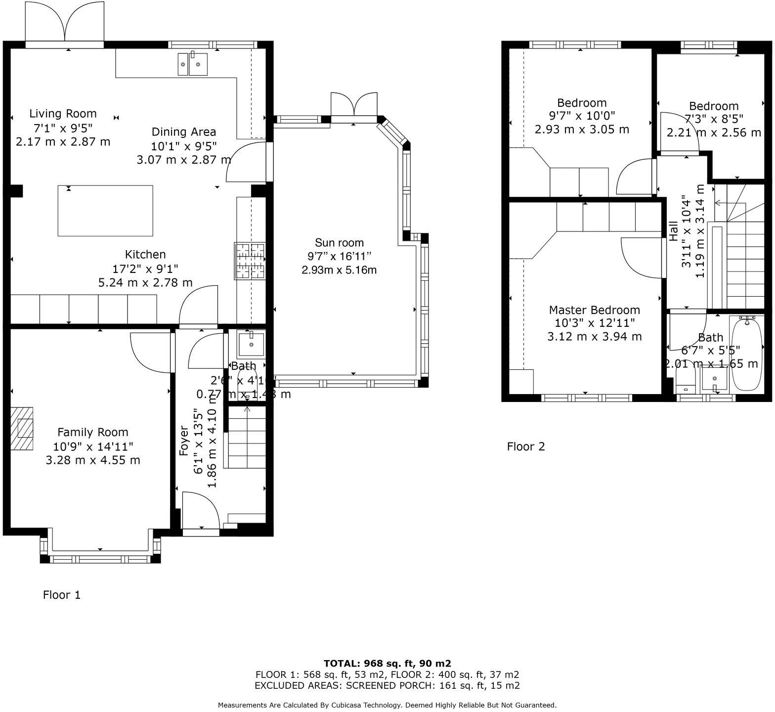
This property is a 3 bedroom detached house located in Oak Green, Ormskirk. The property is in excellent condition and has recently undergone a full refurbishment. The kitchen and bathrooms have been completely modernised to a high standard. There is a good sized garden to the rear of the property. The property is well located for access to local amenities and transport links. Ormskirk train station is within walking distance, providing convenient access to Liverpool and Manchester. There are several highly-rated primary and secondary schools within a short distance of the property. The asking price of £299,995 is slightly higher than the average price for a property of this size in the area, however, given the excellent condition and recent refurbishment, it is considered to be a reasonable price.
Therefore, we give this property 7 / 10. *Disclaimer: This is our option and does constitute a recommendation or financial advice. Do your own research. *
- Price
- 7
- Condition
- 9
- Location
- 8
- Land
- 7
- Bedrooms
- 3
- Bathrooms
- 1
- Sqft (est)
- 1,072.18
- Lot (est)
- 968.00
The heatmap indicates the level of crime in the area. The color of the heatmap indicates the crime severity and recency.
Metrics Year-on-Year
- Average area value
- 172,617.00 £Decreased by 13.74 %
- Est sale value
- 159,754.82 £Decreased by 18.58 %
- Average area rental value
- 835.00 £/moIncreased by 18.61 %
- Est letting value
- 0.00 £/mo
- Est rental Yield
- 5.80 %Increased by 37.44 %
- Crime Rate
- 13.00 %Unchanged by 0.00 %
Agent Activity
Arnold & Phillips created the listing.
Nearby Schools
| Name | Type | Ofsted | Distance |
|---|---|---|---|
| The Acorns School | Pupil Referral Unit | Good | 0.32 KM |
| Ormskirk Church Of England Primary School | Voluntary Controlled School | Good | 0.52 KM |
| Edge Hill University | Higher Education Institutions | 0.87 KM | |
| Turning Point Academy | Other Independent School | Good | 0.93 KM |
| Moorgate Nursery School & Children'S Centre | Children's Centre | 1.06 KM |
Images
Nearby Streets
| Name | Average Price | Average Sqft | Distance |
|---|---|---|---|
| Oak Green | £ 0 | 0 | 0.00 KM |
| Abbotsford | £ 125,000 | 0 | 0.00 KM |
| Atkinson Road | £ 0 | 0 | 0.00 KM |
| Leyland Way | £ 0 | 0 | 0.00 KM |
| Chapel Mews | £ 66,500 | 0 | 0.00 KM |
Nearby Transport
| Name | NLC | TLC | Distance |
|---|---|---|---|
| Ormskirk | 2281 | OMS | 0.50 KM |
| Aughton Park | 2215 | AUG | 2.35 KM |
| Town Green | 2283 | TWN | 3.95 KM |
| New Lane | 2358 | NLN | 5.16 KM |
| Burscough Junction | 2280 | BCJ | 5.38 KM |
Nearby Listings
| Address | Price | Type | Score | Distance |
|---|---|---|---|---|
| Oak Green, Ormskirk, L39 | £ 299,995 | BUY | 7 / 10 | 0.00 KM |
| Oak Green, Ormskirk | £ 299,995 | BUY | 7 / 10 | 0.04 KM |
| Stone Yard Close, Ormskirk, L39 | £ 450,000 | BUY | 7 / 10 | 0.10 KM |
| Wigan Road, Ormskirk, L39 2AP | £ 200,000 | BUY | 7 / 10 | 0.12 KM |
| Wigan Road, Ormskirk | £ 285,000 | BUY | 4 / 10 | 0.12 KM |
Nearby Properties
| Address | Price | Distance |
|---|---|---|
| 15 School House Green | £ 167,000 | 0.06 KM |
| 7 School House Green | £ 236,500 | 0.06 KM |
| 9 School House Green | £ 155,500 | 0.06 KM |
| 3 Willow Green | £ 154,000 | 0.07 KM |
| 5 Willow Green | £ 243,000 | 0.07 KM |