Portsmouth Road, Woking, GU23 6HB
CO

Portsmouth Road, Woking, GU23 6HB

By Countryside

£ 745,000

Reviews

2 out of 5 stars

Countryside says ..

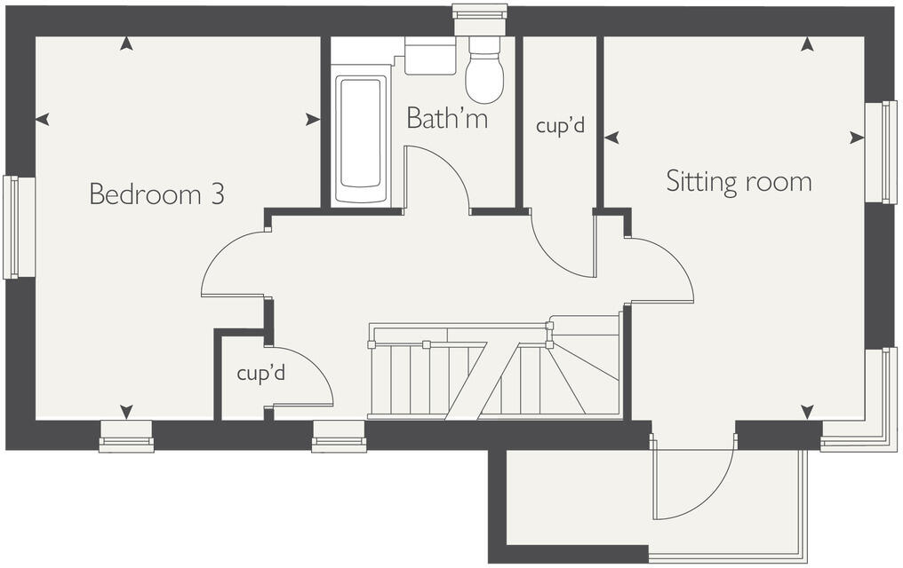
CUSTOM BUILD HOME Featured home! Home 129- The Sapphire- A fantastic 3 bedroom detached home. The welcoming hallway leads you through to the spacious open-plan kitchen/sitting/ dining area with bi-fold doors to the rear garden. Alternatively, you can choose to separate your kitchen fr...

Property Oracle says ..

The property is located in Woking, Surrey, and is close to several amenities such as schools, transportation links, and shops. The surrounding area shows a mix of property types and prices, with some properties significantly more expensive than the subject property. The property itself appears to be newly built or in excellent condition based on the provided images. The images showcase a modern interior with high-quality finishes. However, the plot size is 0.00 sqft, indicating a lack of outdoor space. Given the average price per sqft in the area is £229 and the list price of £745,000 for 325 sqft, the price per sqft is significantly higher than the average. This could be justified by the modern condition and desirable location, but it is considerably above the average price per sqft for the area. More information on the property and local market would be needed to make a definitive statement on the price.

Therefore, we give this property 5 / 10. *Disclaimer: This is our option and does constitute a recommendation or financial advice. Do your own research. *

Price
4
Condition
10
Location
8
Land
1
Bedrooms
3
Bathrooms
0
Sqft (est)
325.00

The heatmap indicates the level of crime in the area. The color of the heatmap indicates the crime severity and recency.

Metrics Year-on-Year

Average area value
757,475.00 £
Decreased by 11.96 %
from 860,390.00 £
Est sale value
317,200.00 £
Increased by 66.84 %
from 190,125.00 £
Average area rental value
2,675.00 £/mo
Increased by 11.74 %
from 2,394.00 £/mo
Est letting value
975.00 £/mo
Increased by 200.00 %
from 325.00 £/mo
Est rental Yield
4.24 %
Increased by 26.95 %
from 3.34 %
Crime Rate
29.00 %
Unchanged by 0.00 %
from 29.00 %

Agent Activity

  • Countryside created the listing.

Nearby Schools

NameTypeOfstedDistance
Send Cofe Primary SchoolVoluntary Aided SchoolGood1.65 KM
Ripley Court SchoolOther Independent School2.52 KM
Clandon Cofe Aided Primary SchoolVoluntary Aided SchoolRequires improvement3.23 KM
Hoe Bridge SchoolOther Independent School4.03 KM
Pyrford Church Of England Primary SchoolAcademy Converter4.47 KM

Images

DS08816 [CH] The Sapphire 3B-1 Plot-130 WEB 01 - Ramson - Kitchen-Dining_Housetype_Plot_-_Hero_860x573 02 - Ramson - Sitting Room_Housetype_Plot_-_Hero_860x573 04 - Ramson - Bedroom 1_Housetype_Plot_-_Hero_860x573 06 - Lutwidge - Bathroom_Housetype_Plot_-_Hero_860x573 Tyndall_Bedroom_Housetype_Plot_-_Hero_860x573 Ashmere - Letchworth (10)

Nearby Streets

NameAverage PriceAverage SqftDistance
Portsmouth Road £ 000.00 KM
Chestnut Close £ 000.00 KM
Oldlands Drive £ 975,00000.00 KM
Oldlands Drive £ 1,450,00000.00 KM
Hawthorn Road £ 000.00 KM

Nearby Transport

NameNLCTLCDistance
Clandon5555CLA2.42 KM
West Byfleet5684WBY6.07 KM
Woking5685WOK6.50 KM
Byfleet And New Haw5689BFN7.85 KM
London Road (Guildford)5632LRD7.92 KM

Nearby Listings

AddressPriceTypeScoreDistance
Portsmouth Road, Woking, GU23 6HB £ 745,000BUY5 / 100.00 KM
Portsmouth Road, Woking, GU23 6HB £ 585,000BUY5 / 100.00 KM
Portsmouth Road, Woking, GU23 6HB £ 740,000BUY6 / 100.00 KM
Portsmouth Road, Woking, GU23 6HB £ 499,950BUY6 / 100.00 KM
Portsmouth Road, Woking, GU23 6HB £ 865,000BUYUnknown0.00 KM

Nearby Properties

AddressPriceDistance
9 Chestnut Close £ 440,0000.07 KM
10 Chestnut Close £ 112,0000.07 KM
44 Maple Road £ 272,0000.08 KM
46 Maple Road £ 422,5000.08 KM
57 Maple Road £ 335,0000.08 KM