Tyler Street, Greenwich, London, SE10
By Winkworth
£ 750,000
Reviews
3 out of 5 stars
Winkworth says ..
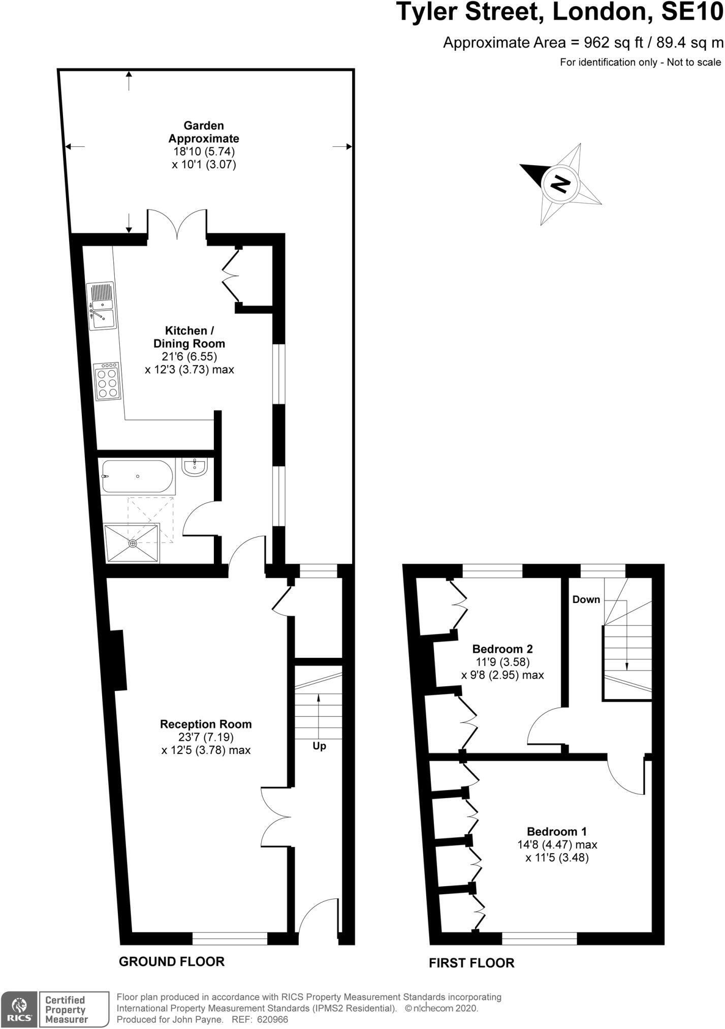
A delightful two-bedroom Victorian mid-terraced home, measuring circa 962 sq ft, perfectly positioned on a pretty and quiet road in East Greenwich—just moments from the Royal Park and within easy reach of Maze Hill rail and the vibrant town centre. Offered in lovely condition and chain free...
Property Oracle says ..
This is a well-presented two-bedroom terraced house in a sought-after location in Greenwich. The property is in good condition and benefits from a courtyard garden. The location is ideal for families, with several good schools nearby, and commuters, with easy access to transportation links. The price is reasonable for the area and the size of the property.
Therefore, we give this property 7 / 10. *Disclaimer: This is our option and does constitute a recommendation or financial advice. Do your own research. *
- Price
- 7
- Condition
- 8
- Location
- 7
- Land
- 6
- Bedrooms
- 2
- Bathrooms
- 1
- Sqft (est)
- 962.00
The heatmap indicates the level of crime in the area. The color of the heatmap indicates the crime severity and recency.
Metrics Year-on-Year
- Average area value
- 557,097.00 £Increased by 12.74 %
- Est sale value
- 677,248.00 £Increased by 22.65 %
- Average area rental value
- 2,359.00 £/moIncreased by 2.83 %
- Est letting value
- 1,924.00 £/moUnchanged by 0.00 %
- Est rental Yield
- 5.08 %Decreased by 8.80 %
- Crime Rate
- 19.00 %Unchanged by 0.00 %
Agent Activity
Winkworth created the listing.
Nearby Schools
| Name | Type | Ofsted | Distance |
|---|---|---|---|
| St Joseph'S Catholic Primary School | Voluntary Aided School | Good | 0.20 KM |
| Robert Owen Early Years Centre | Children's Centre | 0.24 KM | |
| Robert Owen Nursery School | Local Authority Nursery School | Outstanding | 0.33 KM |
| Christ Church Church Of England Primary School | Voluntary Aided School | Good | 0.36 KM |
| The John Roan School | Academy Sponsor Led | 0.77 KM |
Images
Nearby Streets
| Name | Average Price | Average Sqft | Distance |
|---|---|---|---|
| Woodland Walk | £ 0 | 0 | 0.00 KM |
| Frobisher Street | £ 0 | 0 | 0.00 KM |
| Restell Close | £ 0 | 0 | 0.00 KM |
| Christchurch Way | £ 0 | 0 | 0.00 KM |
| Tom Smith Close | £ 0 | 0 | 0.00 KM |
Nearby Transport
| Name | NLC | TLC | Distance |
|---|---|---|---|
| Maze Hill | 5149 | MZH | 0.47 KM |
| Westcombe Park | 5151 | WCB | 1.33 KM |
| Blackheath | 5095 | BKH | 2.15 KM |
| Greenwich | 5146 | GNW | 2.31 KM |
| Charlton | 5144 | CTN | 2.75 KM |
Nearby Listings
| Address | Price | Type | Score | Distance |
|---|---|---|---|---|
| Tyler Street, Greenwich, London, SE10 | £ 750,000 | BUY | 7 / 10 | 0.00 KM |
| Tyler Street, London, SE10 | £ 700,000 | BUY | 5 / 10 | 0.02 KM |
| Colomb Street, Greenwich | £ 425,000 | BUY | 6 / 10 | 0.05 KM |
| Colomb Street, London | £ 700,000 | BUY | 7 / 10 | 0.08 KM |
| Colomb Street, Greenwich, London, SE10 | £ 700,000 | BUY | Unknown | 0.08 KM |
Nearby Properties
| Address | Price | Distance |
|---|---|---|
| 24 Tyler Street | £ 160,000 | 0.01 KM |
| 20 Tyler Street | £ 660,000 | 0.01 KM |
| 17 Tyler Street | £ 615,000 | 0.01 KM |
| 21 Tyler Street | £ 710,000 | 0.01 KM |
| 4 Tyler Street | £ 725,000 | 0.01 KM |