LE
Hillfray Drive, Coventry, West Midlands
By Leaders Sales
£ 160,000
Reviews
3 out of 5 stars
Leaders Sales says ..
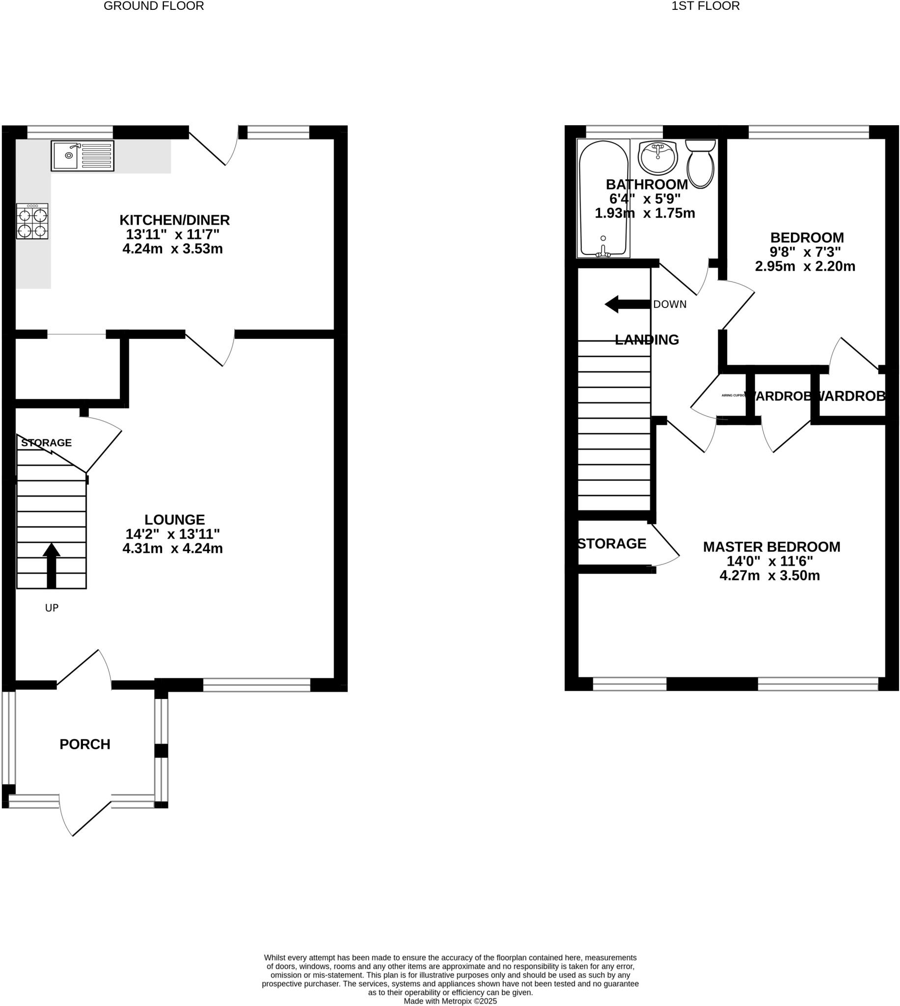
Located in a quiet and popular residential area of Whitley, this well-maintained two-bedroom end of terrace house offers an excellent opportunity for first-time buyers, small families, or investors looking for a property in a highly convenient location. The home comprises a spacious an...
Property Oracle says ..
Therefore, we give this property 6 / 10. *Disclaimer: This is our option and does constitute a recommendation or financial advice. Do your own research. *
- Price
- 8
- Condition
- 3
- Location
- 7
- Land
- 6
- Bedrooms
- 2
- Bathrooms
- 1
- Sqft (est)
- 624.95
The heatmap indicates the level of crime in the area. The color of the heatmap indicates the crime severity and recency.
Metrics Year-on-Year
- Average area value
- 282,667.00 £Increased by 8.96 %
- Est sale value
- 271,228.30 £Increased by 60.74 %
- Average area rental value
- 1,250.00 £/moIncreased by 13.74 %
- Est letting value
- 624.95 £/moUnchanged by 0.00 %
- Est rental Yield
- 5.31 %Increased by 4.53 %
- Crime Rate
- 12.00 %Unchanged by 0.00 %
from 259,423.00 £
from 168,736.50 £
from 1,099.00 £/mo
from 624.95 £/mo
from 5.08 %
from 12.00 %
Agent Activity
Leaders Sales marked this listing as sold.
Leaders Sales created the listing.
Nearby Schools
| Name | Type | Ofsted | Distance |
|---|---|---|---|
| Tiverton School | Community Special School | Good | 0.44 KM |
| Whitley Abbey Primary School | Community School | Good | 0.55 KM |
| Baginton Fields School | Community Special School | Good | 0.60 KM |
| Whitley Academy | Academy Converter | 0.66 KM | |
| St Anne'S Catholic Primary School | Voluntary Aided School | Good | 1.16 KM |
Images
Nearby Streets
| Name | Average Price | Average Sqft | Distance |
|---|---|---|---|
| Harlequin Court | £ 130,475 | 0 | 0.00 KM |
| Quinn Close | £ 0 | 0 | 0.00 KM |
| Abbey Way | £ 0 | 0 | 0.00 KM |
| Joe O'Brien Close | £ 150,000 | 0 | 0.00 KM |
| Kenelm Court | £ 107,500 | 0 | 0.00 KM |
Nearby Transport
| Name | NLC | TLC | Distance |
|---|---|---|---|
| Coventry | 1030 | COV | 4.04 KM |
| Coventry Arena | 7416 | CAA | 7.24 KM |
| Canley | 1129 | CNL | 7.54 KM |
Nearby Listings
| Address | Price | Type | Score | Distance |
|---|---|---|---|---|
| Hillfray Drive, Coventry, West Midlands | £ 160,000 | BUY | 6 / 10 | 0.00 KM |
| 87 Ashington Grove, Coventry, West Midlands, CV3 4DD | £ 280,000 | BUY | 6 / 10 | 0.11 KM |
| Ashington Grove, Whitley, CV3 | £ 260,000 | BUY | 7 / 10 | 0.17 KM |
| Ashington Grove, Coventry | £ 250,000 | BUY | 6 / 10 | 0.21 KM |
| Rutherglen Avenue, Whitley, Coventry, West Midlands | £ 260,000 | BUY | Unknown | 0.22 KM |
Nearby Properties
| Address | Price | Distance |
|---|---|---|
| 33 Hillfray Drive | £ 135,000 | 0.00 KM |
| 5 Hillfray Drive | £ 117,000 | 0.00 KM |
| 2 Hillfray Drive | £ 97,500 | 0.00 KM |
| 53 Hillfray Drive | £ 140,000 | 0.00 KM |
| 7 Hillfray Drive | £ 130,000 | 0.00 KM |