Wigton Gate, Alwoodley, Leeds
By Stoneacre Properties
£ 895,000
Stoneacre Properties says ..
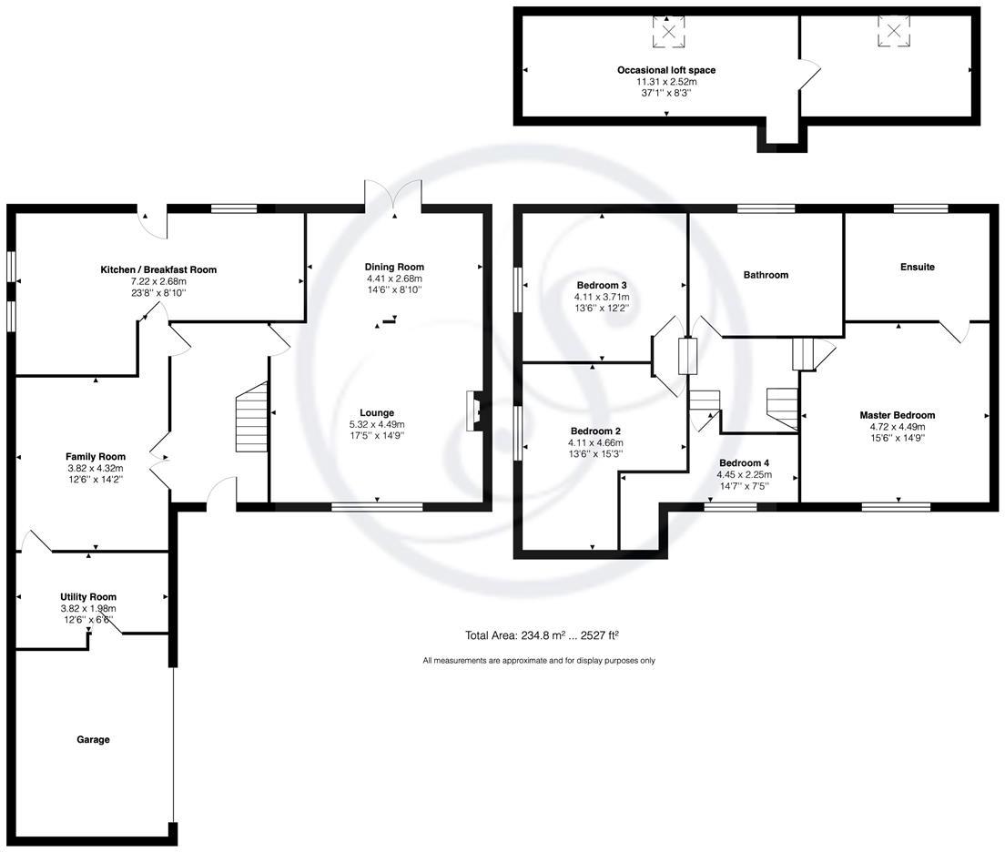
*** THREE BEDROOM LINK DETACHED HOUSE *** LOCATED IN A GATED DEVELOPMENT IN ALWOODLEY *** Stoneacre Properties are pleased to be able to offer for sale this stone built, link detached property which would make a fantastic family home. The house is located in an exclusive gated development just off Wigton Lane which is one of the most sought after addresses in Alwoodley. The area has fantastic amenities including an M & S Food and is located a short distance from exquisite rolling countryside in nearby Eccup and the widely renowned Harewood estate. Accommodation briefly comprises of entrance hall, kitchen / breakfast room, lounge / diner, family room and utility. On the first floor there is a master bedroom with en-suite, two further bedrooms, house bathroom and then stairs to two attic rooms. The property benefits from a double garage along with front and rear gardens. Please call to organise a viewing.<br /><br />This attractive detached property provides an exciting opportunity for the new owner to really put their stamp on their new home. The house offers just over 2,500 sqft of living accommodation along with mature secluded gardens and double garage.<br /><br /><b>.</b> - The stone built home has a central hallway with double doors leading to the family room. There is then a generous kitchen breakfast room with fitted kitchen with lots of cupboard space, utility room and large reception room with feature fire and double doors leading out to the garden.<br /><br /><b>..</b> - Stairs lead up to the first floor with a good sized master bedroom and ensuite, another two bedrooms and house bathroom. There is a stair case which leads to two generous attic rooms both fitted with velux windows.<br /><br /><b>...</b> - Alwoodley is an incredibly popular North Leeds suburb ideal for families, it has great access to Leeds City Centre and Harrogate. There are fantastic local amenities on your door step along with great restaurants and bars in other popular neighbouring suburbs.<br /><br /><b>....</b> - The area benefits from a number of fantastic schools - including the Leeds Grammar School - along with sporting facilities including the popular golf courses at Alwoodley and Sandmoor, and the David Lloyd Leisure Centre.<br /><br />
- Bedrooms
- 3
- Bathrooms
- 3
The heatmap indicates the level of crime in the area. The color of the heatmap indicates the crime severity and recency.
Metrics Year-on-Year
- Average area value
- 489,764.00 £Increased by 13.96 %
- Average area rental value
- 1,313.00 £/moDecreased by 4.72 %
- Est rental Yield
- 3.22 %Decreased by 16.36 %
- Crime Rate
- 19.00 %Unchanged by 0.00 %
Agent Activity
Stoneacre Properties created the listing.
Nearby Schools
| Name | Type | Ofsted | Distance |
|---|---|---|---|
| The Grammar School At Leeds | Other Independent School | 0.84 KM | |
| Highfield Primary School | Community School | Outstanding | 1.19 KM |
| Wigton Moor Primary School | Community School | Outstanding | 1.29 KM |
| Primley Wood Primary School | Free Schools | Good | 1.94 KM |
| Brodetsky Primary School | Voluntary Aided School | Good | 1.98 KM |
Images
Nearby Streets
| Name | Average Price | Average Sqft | Distance |
|---|---|---|---|
| A61 | £ 650,000 | 0 | 0.00 KM |
| Brookside | £ 375,000 | 0 | 0.00 KM |
| Alwoodley Chase | £ 325,000 | 0 | 0.00 KM |
| Farfield Court | £ 235,441 | 0 | 0.00 KM |
| West Dene | £ 795,000 | 0 | 0.00 KM |
Nearby Transport
| Name | NLC | TLC | Distance |
|---|---|---|---|
| Leeds | 8487 | LDS | 7.78 KM |
| Burley Park | 8500 | BUY | 7.94 KM |
| Headingley | 8498 | HDY | 8.94 KM |
| Weeton | 8509 | WET | 9.07 KM |
Nearby Listings
| Address | Price | Type | Score | Distance |
|---|---|---|---|---|
| Wigton Gate, Alwoodley, Leeds | £ 895,000 | BUY | Unknown | 0.00 KM |
| Keplestone Mews, Alwoodley, Leeds | £ 515,000 | BUY | 7 / 10 | 0.07 KM |
| Keplestone Mews, Alwoodley, Leeds | £ 515,000 | BUY | 7 / 10 | 0.08 KM |
| Harrogate Road, Leeds | £ 1,150,000 | BUY | 8 / 10 | 0.08 KM |
| Alwoodley Gates, Alwoodley, Leeds, LS17 | £ 1,295,000 | BUY | 8 / 10 | 0.14 KM |
Nearby Properties
| Address | Price | Distance |
|---|---|---|
| 4 Wigton Gate | £ 912,500 | 0.02 KM |
| 3 Wigton Gate | £ 930,000 | 0.02 KM |
| 2 Wigton Gate | £ 197,000 | 0.03 KM |
| 6 Keplestone Mews | £ 282,500 | 0.07 KM |
| 2 Keplestone Mews | £ 282,000 | 0.07 KM |