Langford Russell says ..
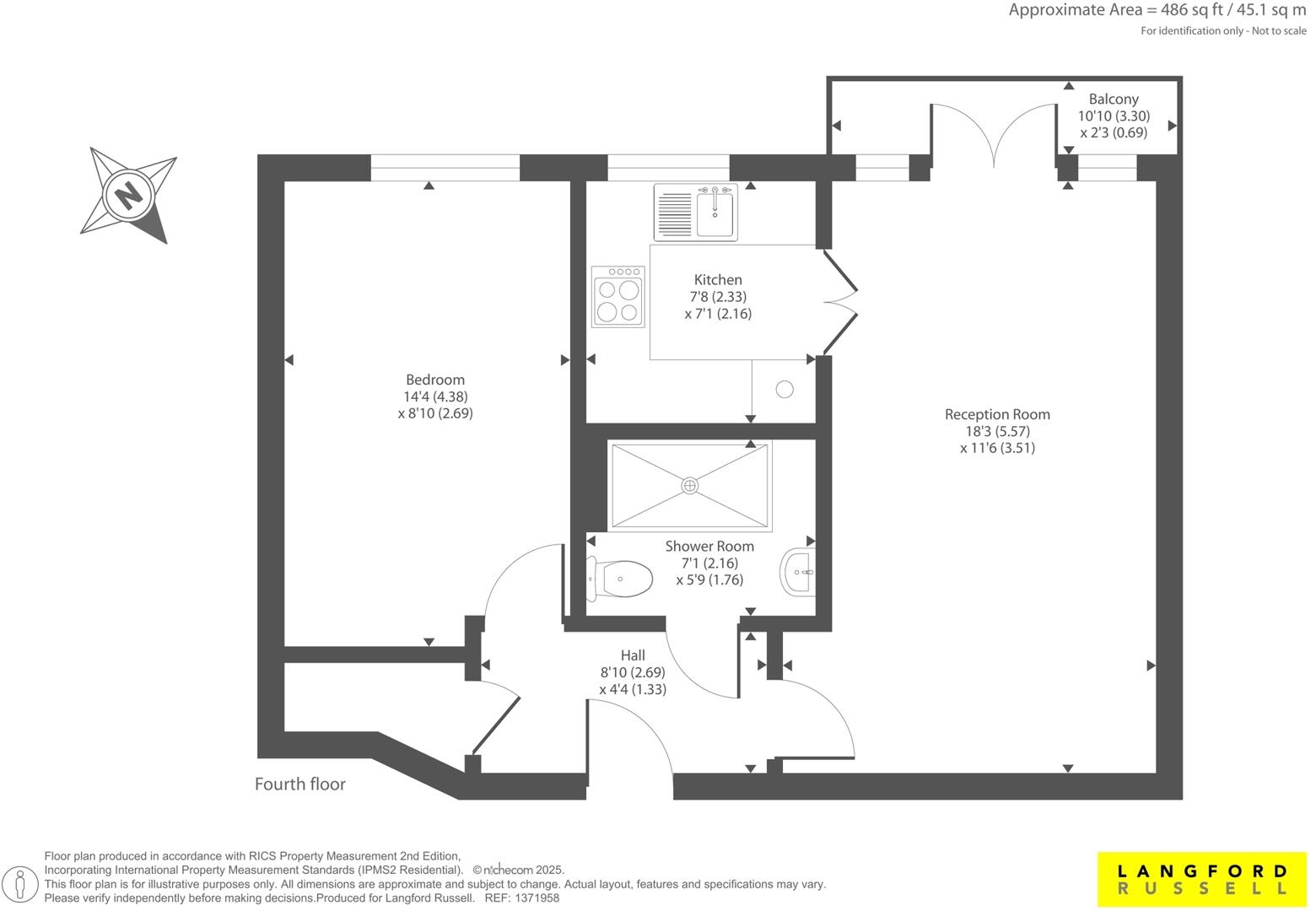
Available for the over 55's is this very well-presented McCarthy and Stone retirement, one double bedroom apartment, situated in the very desirable development Newman Court. This property has lots to offer and comprises, entrance hall with a built-in storage cupboard, a generous sized ...
Property Oracle says ..
This is a one-bedroom apartment in Bromley Town. The property is in a good location, close to transportation, shops, and schools. The apartment is in reasonable condition, but it could benefit from some updating. The property has very little land, with just access to communal gardens. The price is below average for the area, but the property is smaller than average and may need some updating. The property is located close to Bromley North station.
Therefore, we give this property 5 / 10. *Disclaimer: This is our option and does constitute a recommendation or financial advice. Do your own research. *
- Price
- 7
- Condition
- 6
- Location
- 7
- Land
- 3
- Bedrooms
- 1
- Bathrooms
- 1
- Sqft (est)
- 493.00
The heatmap indicates the level of crime in the area. The color of the heatmap indicates the crime severity and recency.
Metrics Year-on-Year
- Average area value
- 591,923.00 £Increased by 11.40 %
- Est sale value
- 296,786.00 £Increased by 7.89 %
- Average area rental value
- 1,705.00 £/moDecreased by 9.16 %
- Est letting value
- 493.00 £/moUnchanged by 0.00 %
- Est rental Yield
- 3.46 %Decreased by 18.40 %
- Crime Rate
- 20.00 %Unchanged by 0.00 %
Agent Activity
Langford Russell created the listing.
Nearby Schools
| Name | Type | Ofsted | Distance |
|---|---|---|---|
| Parish Church Of England Primary School | Academy Converter | 0.87 KM | |
| The Tutorial Foundation | Other Independent Special School | Good | 1.03 KM |
| Ashgrove School Ltd | Other Independent School | Requires improvement | 1.05 KM |
| St Mark'S Church Of England Primary School | Academy Converter | Good | 1.08 KM |
| Valley Primary School | Academy Converter | Good | 1.13 KM |
Images
Nearby Streets
| Name | Average Price | Average Sqft | Distance |
|---|---|---|---|
| Gordon Way | £ 0 | 0 | 0.00 KM |
| White Hart Slip | £ 0 | 0 | 0.00 KM |
| Glebe Knoll | £ 0 | 0 | 0.00 KM |
| Simpsons Road | £ 340,000 | 0 | 0.00 KM |
| Cawston Court | £ 325,000 | 0 | 0.00 KM |
Nearby Transport
| Name | NLC | TLC | Distance |
|---|---|---|---|
| Bromley North | 5096 | BMN | 0.13 KM |
| Sundridge Park | 5155 | SUP | 0.89 KM |
| Bromley South | 5064 | BMS | 0.91 KM |
| Shortlands | 5084 | SRT | 1.58 KM |
| Grove Park | 5139 | GRP | 2.62 KM |
Nearby Listings
| Address | Price | Type | Score | Distance |
|---|---|---|---|---|
| North Street, Bromley | £ 200,000 | BUY | 5 / 10 | 0.00 KM |
| North Street, Bromley, BROMLEY, BR1 | £ 155,000 | BUY | 5 / 10 | 0.01 KM |
| Newman Court, North Street, Bromley | £ 250,000 | BUY | Unknown | 0.05 KM |
| East Street, Bromley | £ 275,000 | BUY | 6 / 10 | 0.11 KM |
| Florence Road, Bromley, BR1 | £ 675,000 | BUY | 7 / 10 | 0.13 KM |
Nearby Properties
| Address | Price | Distance |
|---|---|---|
| 57 Tweedy Road | £ 810,000 | 0.10 KM |
| 8 North Street | £ 455,000 | 0.10 KM |
| 15 North Street | £ 248,500 | 0.10 KM |
| 10 North Street | £ 383,995 | 0.10 KM |
| 5 North Street | £ 239,995 | 0.10 KM |