Gibbs Gillespie says ..
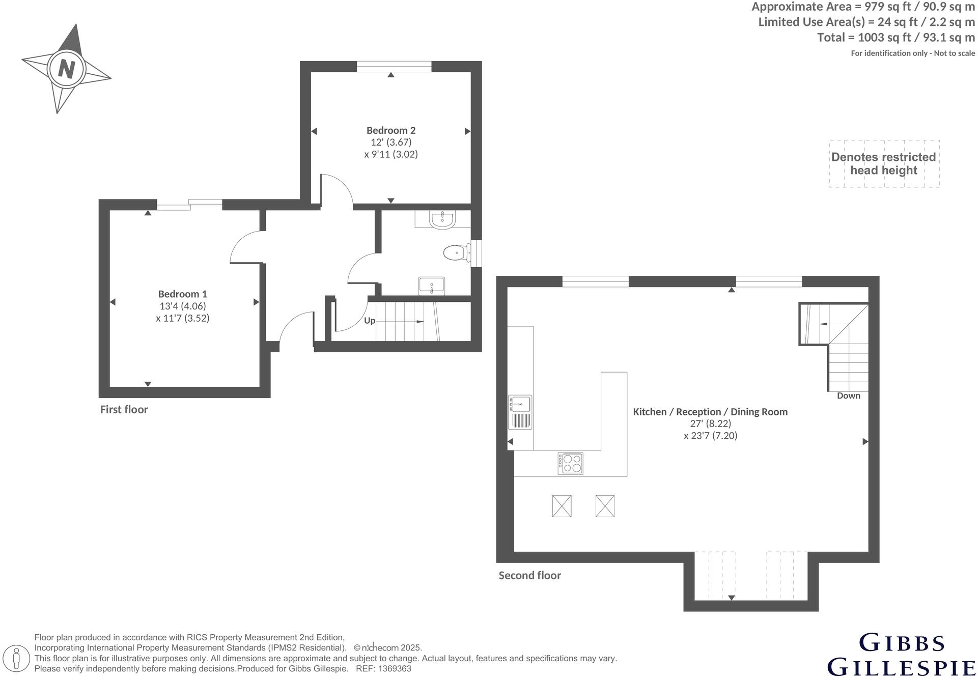
Set within a beautifully restored period property in the heart of the Mill Hill Conservation Area, this brand new two bedroom duplex apartment laid out over two floors, offering 1003 sq ft of thoughtfully designed living space. Located at 46 Avenue Gardens, a boutique development of just four ind...
Property Oracle says ..
This is a two-bedroom duplex apartment located in South Acton, Ealing. The property appears to be in good condition, featuring modern interiors and a recently renovated bathroom. The location offers proximity to schools and transportation, although it’s not a central London location. The asking price is slightly below the average price per square foot for the area. The lack of a garden or private outdoor space may be a drawback for some buyers. Overall, it presents a decent opportunity for those seeking a modern apartment in a well-connected area of West London.
Therefore, we give this property 6 / 10. *Disclaimer: This is our option and does constitute a recommendation or financial advice. Do your own research. *
- Price
- 6
- Condition
- 8
- Location
- 7
- Land
- 3
- Bedrooms
- 2
- Bathrooms
- 1
- Sqft (est)
- 1,003.00
The heatmap indicates the level of crime in the area. The color of the heatmap indicates the crime severity and recency.
Metrics Year-on-Year
- Average area value
- 719,207.00 £Increased by 15.99 %
- Est sale value
- 707,115.00 £Increased by 12.80 %
- Average area rental value
- 2,260.00 £/moIncreased by 12.16 %
- Est letting value
- 2,006.00 £/moUnchanged by 0.00 %
- Est rental Yield
- 3.77 %Decreased by 3.33 %
- Crime Rate
- 3.00 %Unchanged by 0.00 %
Agent Activity
Gibbs Gillespie created the listing.
Nearby Schools
| Name | Type | Ofsted | Distance |
|---|---|---|---|
| South Acton Children'S Centre | Children's Centre | 0.15 KM | |
| South Acton Childrens Centre | Local Authority Nursery School | Good | 0.15 KM |
| Berrymede Junior School | Community School | Good | 0.18 KM |
| Berrymede Infant School | Community School | Good | 0.18 KM |
| John Perryn Children'S Centre | Children's Centre Linked Site | 0.23 KM |
Images
Nearby Streets
| Name | Average Price | Average Sqft | Distance |
|---|---|---|---|
| Park Road North | £ 0 | 0 | 0.00 KM |
| Langford Close | £ 775,000 | 0 | 0.00 KM |
| Hope Gardens | £ 0 | 0 | 0.00 KM |
| Castle Close | £ 625,000 | 0 | 0.00 KM |
| Newport Road | £ 0 | 0 | 0.00 KM |
Nearby Transport
| Name | NLC | TLC | Distance |
|---|---|---|---|
| South Acton | 1452 | SAT | 0.66 KM |
| Gunnersbury | 5588 | GUN | 1.30 KM |
| Acton Central | 1404 | ACC | 1.44 KM |
| Acton Main Line | 3000 | AML | 1.78 KM |
| Kew Bridge | 5593 | KWB | 2.06 KM |
Nearby Listings
| Address | Price | Type | Score | Distance |
|---|---|---|---|---|
| Avenue Gardens, London | £ 695,000 | BUY | 7 / 10 | 0.00 KM |
| Avenue Gardens, London | £ 445,000 | BUY | 6 / 10 | 0.00 KM |
| Avenue Gardens, London | £ 689,950 | BUY | 6 / 10 | 0.00 KM |
| Avenue Gardens, London | £ 345,000 | BUY | 5 / 10 | 0.00 KM |
| Avenue Gardens, London | £ 425,000 | BUY | 6 / 10 | 0.00 KM |
Nearby Properties
| Address | Price | Distance |
|---|---|---|
| 63 Avenue Gardens | £ 520,000 | 0.01 KM |
| 59 Avenue Gardens | £ 1,060,000 | 0.01 KM |
| 24a Avenue Gardens | £ 249,950 | 0.01 KM |
| 25a Avenue Gardens | £ 280,000 | 0.01 KM |
| 36e Avenue Gardens | £ 202,000 | 0.01 KM |