Victoria Road, Formby, Liverpool, L37
By Colette Gunter
£ 1,500,000
Reviews
3 out of 5 stars
Colette Gunter says ..
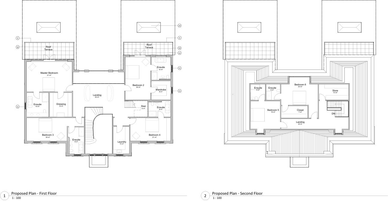
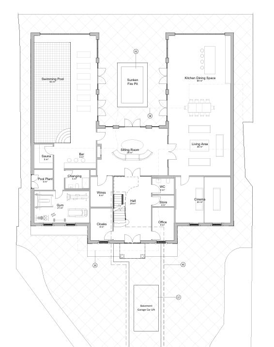
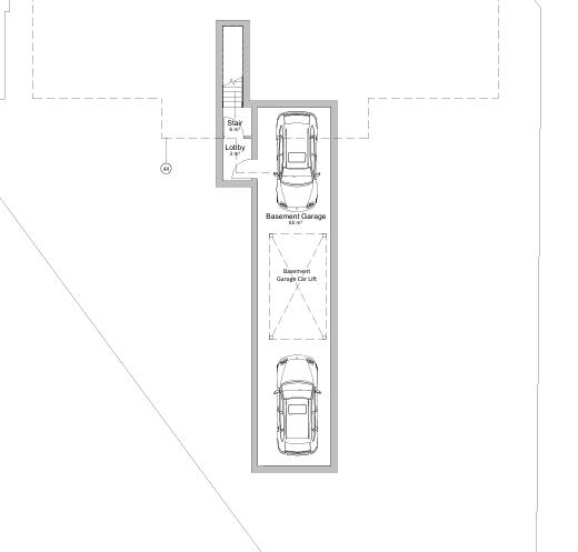
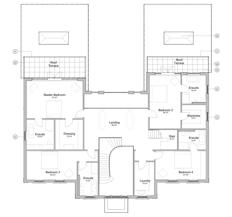
LOCATION LOCATION LOCATION....Colette Gunter Estate Agents are delighted to present this excellent opportunity to acquire a prime FREEHOLD RESIDENTIAL BUILDING PLOT nestled within this serene and highly sought after location off Victoria Road. Full architect plans by NJSR Architects...
Property Oracle says ..
This property presents a unique opportunity in the desirable Formby area. The significant plot of land is a rare feature, providing ample space for a large family or those seeking substantial outdoor space. However, the property requires considerable refurbishment; the images provided show an existing house that appears dated and in need of modernisation. The prospective buyer should factor in significant renovation costs into their overall budget. While the area offers high-quality schooling, convenient transport connections to Liverpool and beyond, and a popular coastal setting, the property’s condition and lack of details on the specifics of the build, such as internal square footage, bathroom and bedroom counts require additional clarification to make a complete evaluation. The £1,500,000 price tag must be viewed in the context of the significant renovation needs. The value ultimately depends on the buyer’s ability and willingness to invest the necessary capital to fully realize the potential of the property’s land and location.
Therefore, we give this property 6 / 10. *Disclaimer: This is our option and does constitute a recommendation or financial advice. Do your own research. *
- Price
- 7
- Condition
- 4
- Location
- 8
- Land
- 7
- Bedrooms
- 0
- Bathrooms
- 0
- Sqft (est)
- 6,458.35
The heatmap indicates the level of crime in the area. The color of the heatmap indicates the crime severity and recency.
Metrics Year-on-Year
- Average area value
- 971,667.00 £Increased by 80.27 %
- Est sale value
- 4,217,302.55 £Increased by 79.89 %
- Average area rental value
- 4,667.00 £/moIncreased by 20.81 %
- Est letting value
- 19,375.05 £/moIncreased by 50.00 %
- Est rental Yield
- 5.76 %Decreased by 33.02 %
- Crime Rate
- 27.00 %Unchanged by 0.00 %
Agent Activity
Colette Gunter created the listing.
Nearby Schools
| Name | Type | Ofsted | Distance |
|---|---|---|---|
| St Jerome'S Catholic Primary School | Voluntary Aided School | Good | 1.19 KM |
| Woodlands Primary School | Community School | Good | 1.38 KM |
| Formby High School | Academy Converter | 1.95 KM | |
| St Luke'S Church Of England Primary School | Voluntary Controlled School | Good | 1.97 KM |
| Range High School | Academy Converter | Requires improvement | 2.43 KM |
Images
Nearby Streets
| Name | Average Price | Average Sqft | Distance |
|---|---|---|---|
| Asparagus Trail | £ 3,200,000 | 0 | 0.00 KM |
| Saint Peter's Close | £ 0 | 0 | 0.00 KM |
| Cornerstone Walk | £ 0 | 0 | 0.00 KM |
| Delph Lane | £ 0 | 0 | 0.00 KM |
| Foxhill Close | £ 270,000 | 0 | 0.00 KM |
Nearby Transport
| Name | NLC | TLC | Distance |
|---|---|---|---|
| Freshfield | 2355 | FRE | 1.43 KM |
| Formby | 2354 | FBY | 2.09 KM |
| Hightown | 2356 | HTO | 5.50 KM |
| Ainsdale | 2350 | ANS | 6.13 KM |
| Hall Road | 2229 | HLR | 8.57 KM |
Nearby Listings
| Address | Price | Type | Score | Distance |
|---|---|---|---|---|
| Victoria Road, Formby, Liverpool, L37 | £ 1,500,000 | BUY | 6 / 10 | 0.00 KM |
| Badgers Rake, Formby, Liverpool, L37 1XU | £ 1,900,000 | BUY | Unknown | 0.12 KM |
| Victoria Road, Formby | £ 1,699,950 | BUY | Unknown | 0.16 KM |
| Victoria Road, Formby, Liverpool, Merseyside, L37 | £ 1,750,000 | BUY | 7 / 10 | 0.27 KM |
| Larkhill Lane, Formby, Liverpool, L37 | £ 1,350,000 | BUY | 8 / 10 | 0.32 KM |
Nearby Properties
| Address | Price | Distance |
|---|---|---|
| 4 Badgers Rake | £ 500,000 | 0.12 KM |
| 3 Badgers Rake | £ 570,000 | 0.12 KM |
| 94 Victoria Road | £ 1,332,198 | 0.27 KM |
| 106a Victoria Road | £ 1,150,000 | 0.27 KM |
| 112 Victoria Road | £ 2,700,000 | 0.27 KM |