Auldgirth, Dumfries, Dumfries and Galloway, DG2
By Your Move
£ 125,000
Reviews
2 out of 5 stars
Your Move says ..
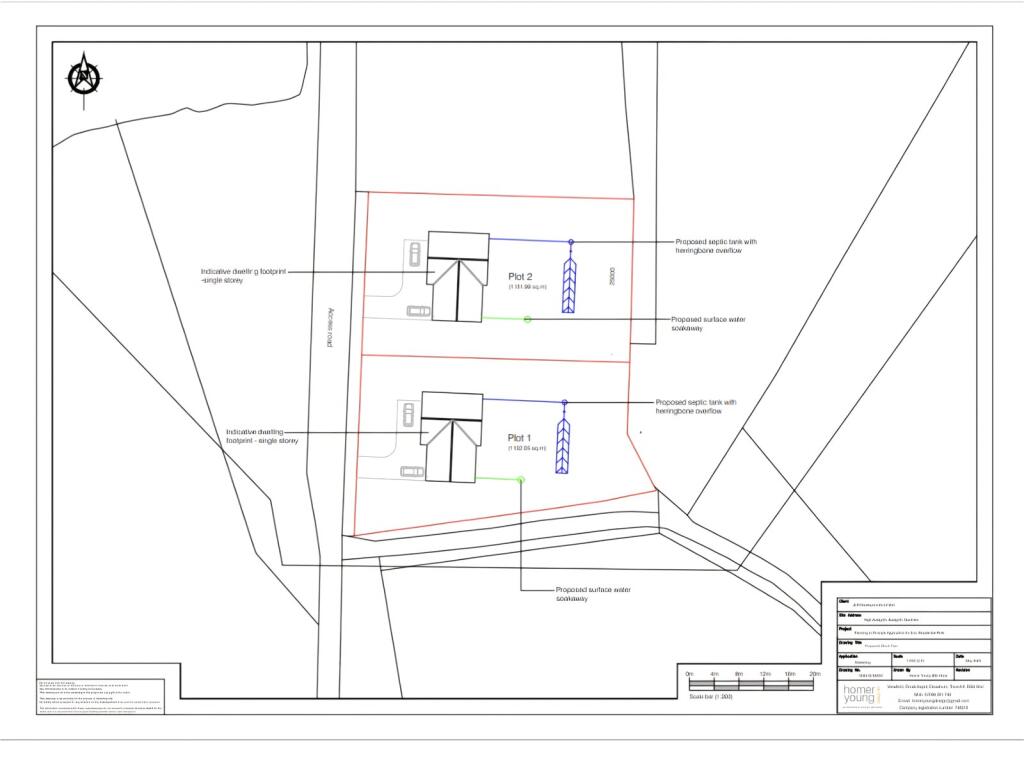
Set within a stunning location you have this fantastic development opportunity. Outline planning recently approved ( Ref- 24/2385/PIP ) for a luxury home, on a premium elevated site. This is a perfect opportunity for a developer looking for a new project or for those looking for their...
Property Oracle says ..
The plot of land is located in Auldgirth, Dumfries and Galloway. The surrounding area is rural and scenic. The land appears to be overgrown and in need of clearing. The plot is a former station yard and appears to have some concrete foundations. The average price in the area is £664,853, and the average price per sqft is £473. The listing price of £125,000 seems reasonable considering it is just land and requires significant work.
Therefore, we give this property 5 / 10. *Disclaimer: This is our option and does constitute a recommendation or financial advice. Do your own research. *
- Price
- 8
- Condition
- 2
- Location
- 6
- Land
- 7
- Bedrooms
- 0
- Bathrooms
- 0
The heatmap indicates the level of crime in the area. The color of the heatmap indicates the crime severity and recency.
Metrics Year-on-Year
- Average area value
- 507,692.00 £Decreased by 14.14 %
- Average area rental value
- 1,925.00 £/moDecreased by 6.28 %
- Est rental Yield
- 4.55 %Increased by 9.11 %
- Crime Rate
- 0.00 %
Agent Activity
Your Move created the listing.
Images
Nearby Streets
| Name | Average Price | Average Sqft | Distance |
|---|---|---|---|
| Old Station Yard | £ 0 | 0 | 0.00 KM |
| Smiths Croft | £ 0 | 0 | 0.00 KM |
| Ballochan Road | £ 130,000 | 0 | 0.00 KM |
| Linn Place | £ 115,000 | 0 | 0.00 KM |
Nearby Listings
| Address | Price | Type | Score | Distance |
|---|---|---|---|---|
| Auldgirth, Dumfries, Dumfries and Galloway, DG2 | £ 125,000 | BUY | 5 / 10 | 0.00 KM |
| Auldgirth, Dumfries, Dumfries and Galloway, DG2 | £ 120,000 | BUY | 5 / 10 | 0.00 KM |
| Auld Brig View, Auldgirth, Dumfries, DG2 | £ 335,000 | BUY | 7 / 10 | 0.45 KM |
| Auld Brig View, Auldgirth, Dumfries, Dumfries and Galloway, DG2 | £ 340,000 | BUY | 6 / 10 | 0.51 KM |
| Former School Site, Auldgirth, DG2 | £ 85,000 | BUY | 4 / 10 | 0.56 KM |