Ham Shades Lane, Whitstable
CH

Ham Shades Lane, Whitstable

By Christopher Hodgson

£ 750,000

Reviews

3 out of 5 stars

Christopher Hodgson says ..

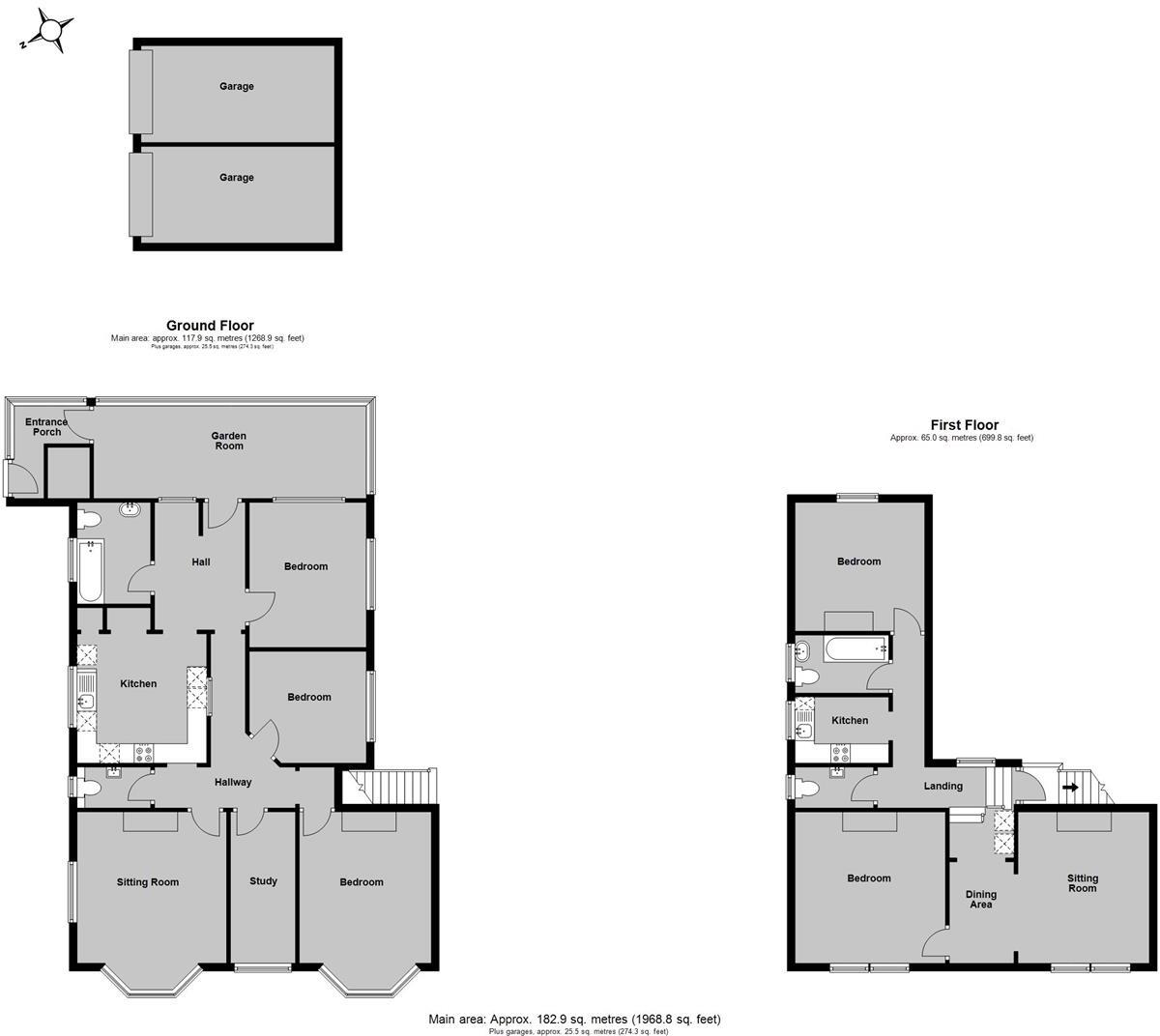
Ideally situated on one of Whitstable's most favoured roads, this substantial period property occupies a generous plot and is conveniently positioned for access to Whitstable's vibrant town centre, Tankerton slopes and seafront and Whitstable mainline station (0.7 miles). The building i...

Property Oracle says ..

This property is a four bedroom, two bathroom detached house located in Chestfield, Canterbury. It is on the market for £750,000. The average price for a property in this area is £510,340, with an average price per square foot of £386. This property is larger than average at 1,968.72 sqft. The property has a garden, which is a desirable feature. The property appears to be in need of some modernisation and updating, however, it does benefit from having a garage. The location is good, with several schools and train stations within a reasonable distance. The asking price seems high considering the condition of the property and the average prices in the area, however it is a detached property and larger than average.

Therefore, we give this property 6 / 10. *Disclaimer: This is our option and does constitute a recommendation or financial advice. Do your own research. *

Price
5
Condition
6
Location
8
Land
7
Bedrooms
4
Bathrooms
2
Sqft (est)
1,968.72

The heatmap indicates the level of crime in the area. The color of the heatmap indicates the crime severity and recency.

Metrics Year-on-Year

Average area value
479,464.00 £
Decreased by 15.58 %
from 567,934.00 £
Est sale value
1,153,669.92 £
Increased by 26.02 %
from 915,454.80 £
Average area rental value
1,150.00 £/mo
Decreased by 19.24 %
from 1,424.00 £/mo
Est letting value
1,968.72 £/mo
Unchanged by 0.00 %
from 1,968.72 £/mo
Est rental Yield
2.88 %
Decreased by 4.32 %
from 3.01 %
Crime Rate
5.00 %
Unchanged by 0.00 %
from 5.00 %

Agent Activity

  • Christopher Hodgson created the listing.

Nearby Schools

NameTypeOfstedDistance
St Mary'S Catholic Primary School, WhitstableAcademy ConverterGood0.97 KM
The Whitstable SchoolAcademy Converter1.02 KM
Swalecliffe Community Primary SchoolFoundation SchoolGood1.51 KM
Swalecliffe Children'S CentreChildren's Centre Linked Site1.60 KM
Westmeads Community Infant SchoolCommunity SchoolOutstanding1.83 KM

Images

Ham Shades Lane, Whitstable Ham Shades Lane, Whitstable Ham Shades Lane, Whitstable Ham Shades Lane, Whitstable Ham Shades Lane, Whitstable Ham Shades Lane, Whitstable Ham Shades Lane, Whitstable Ham Shades Lane, Whitstable Ham Shades Lane, Whitstable Ham Shades Lane, Whitstable Ham Shades Lane, Whitstable Ham Shades Lane, Whitstable Ham Shades Lane, Whitstable Ham Shades Lane, Whitstable Ham Shades Lane, Whitstable Ham Shades Lane, Whitstable Ham Shades Lane, Whitstable Ham Shades Lane, Whitstable

Nearby Streets

NameAverage PriceAverage SqftDistance
Nursery Close £ 000.00 KM
Juniper Close £ 595,00000.00 KM
The Crescent £ 495,00000.00 KM
Invicta Way £ 000.00 KM
Linden Avenue £ 555,00000.00 KM

Nearby Transport

NameNLCTLCDistance
Whitstable5196WHI1.37 KM
Chestfield And Swalecliffe5200CSW2.39 KM
Herne Bay5174HNB8.02 KM
Canterbury West5007CBW8.67 KM
Canterbury East5164CBE9.74 KM

Nearby Listings

AddressPriceTypeScoreDistance
Ham Shades Lane, Whitstable £ 750,000BUY6 / 100.00 KM
Friars Close, Whitstable, CT5 £ 475,000BUY7 / 100.10 KM
Nursery Close, Whitstable £ 385,000BUY6 / 100.14 KM
Ham Shades Lane, Tankerton, Whitstable £ 700,000BUY6 / 100.14 KM
Nursery Close, Tankerton, Whitstable £ 435,000BUYUnknown0.15 KM

Nearby Properties

AddressPriceDistance
20 Ham Shades Lane £ 480,0000.07 KM
18 Ham Shades Lane £ 350,0000.07 KM
11a Ham Shades Lane £ 465,0000.07 KM
16 Ham Shades Lane £ 290,0000.07 KM
10 Ham Shades Lane £ 295,0000.07 KM