Chancellors says ..
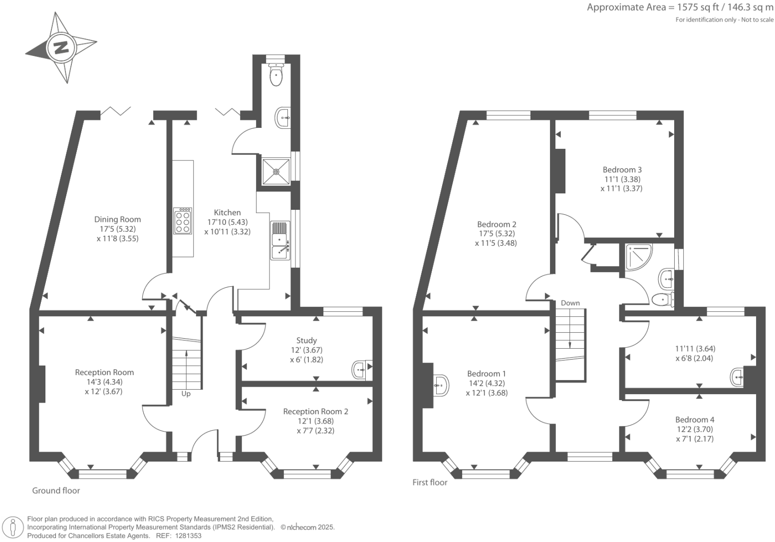
This four-bedroom detached home is ideally positioned in a sought-after central location, offering generous living accommodation and a thoughtfully extended layout. The property features four well-proportioned bedrooms, making it perfect for growing families or those needing extra space.
Property Oracle says ..
Therefore, we give this property 5 / 10. *Disclaimer: This is our option and does constitute a recommendation or financial advice. Do your own research. *
- Price
- 2
- Condition
- 6
- Location
- 7
- Land
- 7
- Bedrooms
- 4
- Bathrooms
- 2
- Sqft (est)
- 1,313.75
The heatmap indicates the level of crime in the area. The color of the heatmap indicates the crime severity and recency.
Metrics Year-on-Year
- Average area value
- 308,571.00 £Increased by 2.94 %
- Est sale value
- 484,773.75 £Decreased by 9.11 %
- Average area rental value
- 1,256.00 £/moDecreased by 11.74 %
- Est letting value
- 1,313.75 £/moUnchanged by 0.00 %
- Est rental Yield
- 4.88 %Decreased by 14.39 %
- Crime Rate
- 12.00 %Unchanged by 0.00 %
from 299,754.00 £
from 533,382.50 £
from 1,423.00 £/mo
from 1,313.75 £/mo
from 5.70 %
from 12.00 %
Agent Activity
Chancellors created the listing.
Nearby Schools
| Name | Type | Ofsted | Distance |
|---|---|---|---|
| Darul Madinah | Other Independent Special School | 0.11 KM | |
| Slough And Eton Church Of England Business And Enterprise College | Academy Converter | Outstanding | 0.47 KM |
| Grove Academy | Free Schools | 0.70 KM | |
| Chalvey Nursery School & Early Years Centre | Local Authority Nursery School | Outstanding | 0.70 KM |
| Littledown School | Academy Special Converter | Good | 1.43 KM |
Images
Nearby Streets
| Name | Average Price | Average Sqft | Distance |
|---|---|---|---|
| Arthur Road | £ 547,500 | 0 | 0.00 KM |
| Finefield Walk1 | £ 457,000 | 0 | 0.00 KM |
| Newbery Way | £ 0 | 0 | 0.00 KM |
| John Taylor Court | £ 0 | 0 | 0.00 KM |
| Chalvey High Street | £ 390,000 | 0 | 0.00 KM |
Nearby Transport
| Name | NLC | TLC | Distance |
|---|---|---|---|
| Slough | 3172 | SLO | 1.56 KM |
| Windsor And Eton Riverside | 5672 | WNR | 2.54 KM |
| Windsor And Eton Central | 3175 | WNC | 2.86 KM |
| Datchet | 5668 | DAT | 4.01 KM |
| Burnham | 3176 | BNM | 4.85 KM |
Nearby Listings
| Address | Price | Type | Score | Distance |
|---|---|---|---|---|
| Slough, SL1, SL1 | £ 950,000 | BUY | 5 / 10 | 0.00 KM |
| King Edward Street, SLOUGH | £ 180,000 | BUY | Unknown | 0.03 KM |
| Plot 2 Montem Square, Montem Lane, Slough, SL1 2QG | £ 280,000 | BUY | 5 / 10 | 0.12 KM |
| Ledgers Road, Slough, Berkshire, SL1 | £ 435,000 | BUY | 7 / 10 | 0.13 KM |
| Worcester Gardens, Slough, SL1 | £ 230,000 | BUY | 6 / 10 | 0.16 KM |
Nearby Properties
| Address | Price | Distance |
|---|---|---|
| 1 King Edward Street | £ 350,000 | 0.08 KM |
| 57 King Edward Street | £ 195,000 | 0.08 KM |
| 31 King Edward Street | £ 190,600 | 0.08 KM |
| 55 King Edward Street | £ 400,000 | 0.08 KM |
| 33 King Edward Street | £ 160,000 | 0.08 KM |