KI
West End, Kemsing, Sevenoaks
By Kings Estate Agents
£ 600,000
Reviews
3 out of 5 stars
Kings Estate Agents says ..
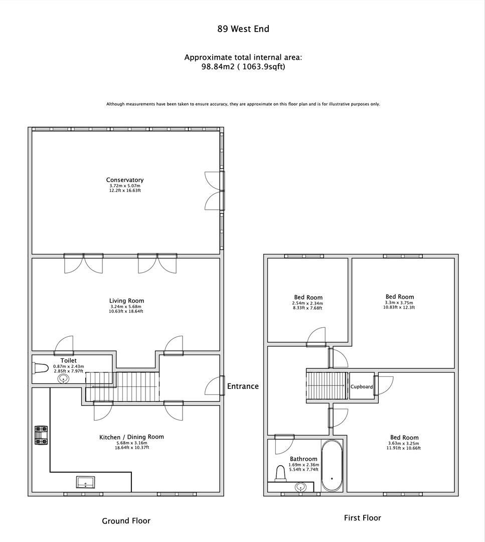
Kings are delighted to offer to market this spacious and well placed three bedroom semi detached home that benefits from a ground floor comprising entrance hall, living room, downstairs cloakroom, large conservatory extension and kitchen / diner. The first floor comprises the landing, two double ...
Property Oracle says ..
Therefore, we give this property 7 / 10. *Disclaimer: This is our option and does constitute a recommendation or financial advice. Do your own research. *
- Price
- 8
- Condition
- 7
- Location
- 7
- Land
- 7
- Bedrooms
- 3
- Bathrooms
- 1
The heatmap indicates the level of crime in the area. The color of the heatmap indicates the crime severity and recency.
Metrics Year-on-Year
- Average area value
- 1,145,000.00 £Increased by 51.85 %
- Average area rental value
- 1,717.00 £/moDecreased by 6.07 %
- Est rental Yield
- 1.80 %Decreased by 38.14 %
- Crime Rate
- 13.00 %Unchanged by 0.00 %
from 754,053.00 £
from 1,828.00 £/mo
from 2.91 %
from 13.00 %
Agent Activity
Kings Estate Agents created the listing.
Nearby Schools
| Name | Type | Ofsted | Distance |
|---|---|---|---|
| Kemsing Primary School | Community School | Good | 0.71 KM |
| St Michael'S Prep School | Other Independent School | 1.55 KM | |
| Seal Church Of England Voluntary Controlled Primary School | Voluntary Controlled School | Good | 1.67 KM |
| Trinity School | Free Schools | Good | 2.60 KM |
| Russell House School | Other Independent School | 3.31 KM |
Images
Nearby Streets
| Name | Average Price | Average Sqft | Distance |
|---|---|---|---|
| Orchard Way | £ 0 | 0 | 0.00 KM |
| Church Lane | £ 875,000 | 0 | 0.00 KM |
| Boleyn Road | £ 0 | 0 | 0.00 KM |
| Noah's Ark | £ 525,000 | 0 | 0.00 KM |
| Nightingale Road | £ 577,333 | 0 | 0.00 KM |
Nearby Transport
| Name | NLC | TLC | Distance |
|---|---|---|---|
| Kemsing | 5079 | KMS | 2.89 KM |
| Otford | 5071 | OTF | 2.99 KM |
| Bat And Ball | 5090 | BBL | 3.64 KM |
| Shoreham (Kent) | 5074 | SEH | 4.75 KM |
| Sevenoaks | 5124 | SEV | 5.59 KM |
Nearby Listings
| Address | Price | Type | Score | Distance |
|---|---|---|---|---|
| West End, Kemsing, Sevenoaks | £ 600,000 | BUY | 7 / 10 | 0.00 KM |
| Orchard Way, Kemsing, Sevenoaks, Kent | £ 495,000 | BUY | 7 / 10 | 0.10 KM |
| West End, Kemsing | £ 499,995 | BUY | Unknown | 0.12 KM |
| Dippers Close, Kemsing, Sevenoaks, Kent, TN15 | £ 925,000 | BUY | 8 / 10 | 0.23 KM |
| Copperfields Orchard, Kemsing, Sevenoaks | £ 925,000 | BUY | 7 / 10 | 0.27 KM |
Nearby Properties
| Address | Price | Distance |
|---|---|---|
| 79 West End | £ 335,000 | 0.04 KM |
| 58 West End | £ 325,000 | 0.04 KM |
| 54 West End | £ 482,500 | 0.04 KM |
| 56 West End | £ 460,000 | 0.04 KM |
| 44 West End | £ 370,000 | 0.18 KM |