Far Street, Wymeswold, Loughborough
By Bentons
£ 550,000
Reviews
3 out of 5 stars
Bentons says ..
A prime residential development site lying in the most sought after village of Wymeswold. Benefitting from full planning permission for the erection of three dwellings to the rear of 5 Far Street, Wymeswold, LE12 6TZ. The main site extends to 0.68 acres (0.27 hectares) with further access road ...
Property Oracle says ..
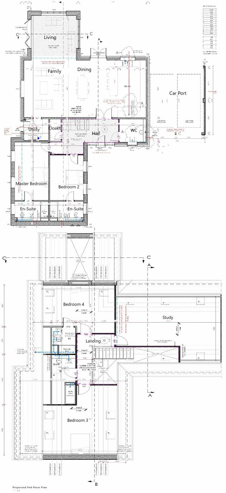
This listing is for a development site in Wymeswold, Leicestershire, currently under construction or newly built. The site has planning permission for the construction of three dwellings, suggesting significant potential return on investment for developers or those seeking to build multiple units. The architectural renderings showcase a contemporary style with a mix of brick and wood cladding, indicating a modern design. The property features what appears to be a spacious layout with ample natural light, a sizable kitchen, open-plan living area and multiple bedrooms. The development’s location in the desirable village of Wymeswold offers a tranquil setting, enhanced by its proximity to a well-regarded primary school. The access to additional railway stations like Loughborough, Sileby, and Barrow-Upon-Soar, although slightly distant, still provides convenient transportation options.
However, several aspects should be considered. The absence of a detailed square footage for the completed structure prevents a precise assessment of value per square foot. Similarly, the lack of information on building specifications and additional costs could influence the overall financial viability. The site’s relative isolation necessitates car ownership for commuting to larger towns and cities. Potential buyers should meticulously examine the planning permission, building regulations, and complete cost estimates before proceeding.
Therefore, we give this property 6 / 10. *Disclaimer: This is our option and does constitute a recommendation or financial advice. Do your own research. *
- Price
- 7
- Condition
- 8
- Location
- 7
- Land
- 4
- Bedrooms
- 0
- Bathrooms
- 0
- Sqft (est)
- 1,023.76
The heatmap indicates the level of crime in the area. The color of the heatmap indicates the crime severity and recency.
Metrics Year-on-Year
- Average area value
- 607,500.00 £Increased by 4.15 %
- Est sale value
- 925,479.04 £Increased by 164.33 %
- Average area rental value
- 1,328.00 £/moDecreased by 13.15 %
- Est letting value
- 1,023.76 £/mo
- Est rental Yield
- 2.62 %Decreased by 16.83 %
- Crime Rate
- 29.00 %Unchanged by 0.00 %
Agent Activity
Bentons marked this listing as sold.
Bentons created the listing.
Nearby Schools
| Name | Type | Ofsted | Distance |
|---|---|---|---|
| Wymeswold Church Of England Primary School | Voluntary Controlled School | Good | 0.75 KM |
| Burton-On-The-Wolds Primary School | Community School | Outstanding | 3.58 KM |
| Costock Cofe Primary School | Voluntary Controlled School | Good | 5.32 KM |
| Willoughby Primary School | Community School | Outstanding | 5.87 KM |
| Bunny Cofe Primary School | Voluntary Controlled School | Good | 6.58 KM |
Images
Nearby Streets
| Name | Average Price | Average Sqft | Distance |
|---|---|---|---|
| Manor Court | £ 0 | 0 | 0.00 KM |
Nearby Transport
| Name | NLC | TLC | Distance |
|---|---|---|---|
| Barrow-Upon-Soar | 1903 | BWS | 7.47 KM |
| Sileby | 1902 | SIL | 8.46 KM |
| Loughborough | 1897 | LBO | 9.89 KM |
Nearby Listings
| Address | Price | Type | Score | Distance |
|---|---|---|---|---|
| Far Street, Wymeswold, Loughborough | £ 550,000 | BUY | 6 / 10 | 0.00 KM |
| Storkit Lane, Loughborough | £ 450,000 | BUY | 7 / 10 | 0.12 KM |
| Far Street, Wymeswold, Loughborough | £ 650,000 | BUY | Unknown | 0.16 KM |
| Alford Way, Wymeswold | £ 79,950 | BUY | 8 / 10 | 0.24 KM |
| Far Street, Wymeswold, Loughborough, Leicestershire, LE12 | £ 475,000 | BUY | 5 / 10 | 0.30 KM |
Nearby Properties
| Address | Price | Distance |
|---|---|---|
| 5 Far Street | £ 425,000 | 0.27 KM |
| 41 Far Street | £ 230,000 | 0.27 KM |
| 14 Far Street | £ 327,500 | 0.27 KM |
| 4 Far Street | £ 380,000 | 0.27 KM |
| 33 Far Street | £ 179,000 | 0.27 KM |