Chancellors says ..
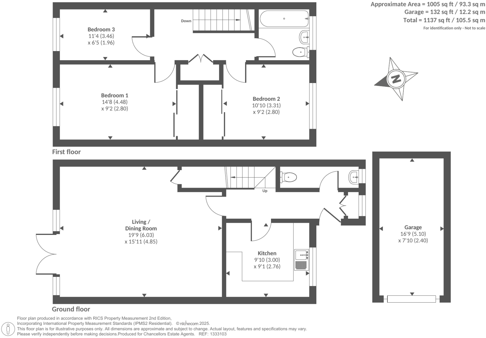
A generous three-bedroom terrace house offering spacious living accommodation. Features include a separate kitchen, a convenient downstairs WC, and a private garden. The property also benefits from a garage and driveway, providing parking and storage options.
Property Oracle says ..
Therefore, we give this property 5 / 10. *Disclaimer: This is our option and does constitute a recommendation or financial advice. Do your own research. *
- Price
- 3
- Condition
- 5
- Location
- 8
- Land
- 7
- Bedrooms
- 3
- Bathrooms
- 1
- Sqft (est)
- 1,137.00
- Lot (est)
- 1,137.00
The heatmap indicates the level of crime in the area. The color of the heatmap indicates the crime severity and recency.
Metrics Year-on-Year
- Average area value
- 226,464.00 £Decreased by 27.05 %
- Est sale value
- 327,456.00 £Decreased by 24.61 %
- Average area rental value
- 1,243.00 £/moDecreased by 7.99 %
- Est letting value
- 1,137.00 £/moUnchanged by 0.00 %
- Est rental Yield
- 6.59 %Increased by 26.25 %
- Crime Rate
- 32.00 %Unchanged by 0.00 %
from 310,433.00 £
from 434,334.00 £
from 1,351.00 £/mo
from 1,137.00 £/mo
from 5.22 %
from 32.00 %
Agent Activity
Chancellors created the listing.
Nearby Schools
| Name | Type | Ofsted | Distance |
|---|---|---|---|
| Lyndhurst School | Other Independent School | 0.46 KM | |
| South Camberley Primary And Nursery School | Academy Converter | 1.44 KM | |
| The Orchard Sure Start Children'S Centre | Children's Centre | 1.56 KM | |
| Kings International College | Foundation School | Good | 1.66 KM |
| South Camberley Sure Start Children'S Centre | Children's Centre Linked Site | 1.75 KM |
Images
Nearby Streets
| Name | Average Price | Average Sqft | Distance |
|---|---|---|---|
| Alexandra Avenue | £ 235,000 | 0 | 0.00 KM |
| York Terrace Lane | £ 0 | 0 | 0.00 KM |
| Bracebridge | £ 0 | 0 | 0.00 KM |
| Stanhope Road | £ 0 | 0 | 0.00 KM |
| Charles Street cycle path | £ 185,000 | 0 | 0.00 KM |
Nearby Transport
| Name | NLC | TLC | Distance |
|---|---|---|---|
| Camberley | 5682 | CAM | 1.64 KM |
| Blackwater | 5625 | BAW | 1.99 KM |
| Frimley | 5683 | FML | 2.86 KM |
| Farnborough North | 5688 | FNN | 4.03 KM |
| Farnborough (Main) | 5521 | FNB | 4.24 KM |
Nearby Listings
| Address | Price | Type | Score | Distance |
|---|---|---|---|---|
| Camberley, Berkshire, GU15 | £ 400,000 | BUY | 5 / 10 | 0.00 KM |
| Montague Close, Camberley, GU15 | £ 360,000 | BUY | 6 / 10 | 0.02 KM |
| The Old Dairy, Camberley | £ 285,000 | BUY | 6 / 10 | 0.03 KM |
| Woodlands Road, Camberley, Surrey, GU15 | £ 330,000 | BUY | 6 / 10 | 0.04 KM |
| Harcourt Road, Camberley, GU15 | £ 375,000 | BUY | 6 / 10 | 0.04 KM |
Nearby Properties
| Address | Price | Distance |
|---|---|---|
| 2 Montague Close | £ 179,000 | 0.01 KM |
| 4 Montague Close | £ 198,000 | 0.01 KM |
| 21 Harcourt Road | £ 235,000 | 0.03 KM |
| 8 Harcourt Road | £ 295,000 | 0.03 KM |
| 11 Harcourt Road | £ 365,000 | 0.03 KM |