TH
Manley Street, Ince, Wigan, WN3
By Thomas James Sales and Lettings
£ 125,000
Reviews
3 out of 5 stars
Thomas James Sales and Lettings says ..
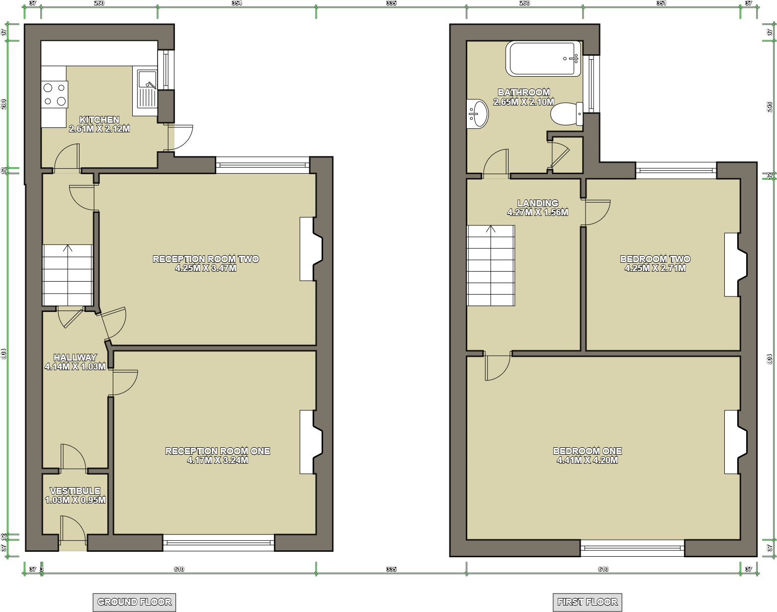
New to the Market – Ideal for First-Time Buyers & Investors – Move-In Ready with No Chain We are pleased to present this well-maintained two-bedroom mid-terraced property located on the popular Manley Street, Ince, Wigan – a fantastic opportunity for first-time buyers and investors alike. O...
Property Oracle says ..
Therefore, we give this property 6 / 10. *Disclaimer: This is our option and does constitute a recommendation or financial advice. Do your own research. *
- Price
- 9
- Condition
- 6
- Location
- 7
- Land
- 3
- Bedrooms
- 2
- Bathrooms
- 1
- Sqft (est)
- 875.21
The heatmap indicates the level of crime in the area. The color of the heatmap indicates the crime severity and recency.
Metrics Year-on-Year
- Average area value
- 348,000.00 £Decreased by 28.05 %
- Est sale value
- 363,212.15 £Decreased by 22.72 %
- Average area rental value
- 1,967.00 £/moUnchanged by 0.00 %
- Est letting value
- 1,750.42 £/moUnchanged by 0.00 %
- Est rental Yield
- 6.78 %Increased by 38.93 %
- Crime Rate
- 0.00 %
from 483,699.00 £
from 469,987.77 £
from 1,967.00 £/mo
from 1,750.42 £/mo
from 4.88 %
from 0.00 %
Agent Activity
Thomas James Sales and Lettings created the listing.
Nearby Schools
| Name | Type | Ofsted | Distance |
|---|---|---|---|
| Britannia Bridge Primary School | Community School | Good | 0.11 KM |
| St Patrick'S Catholic Primary School | Voluntary Aided School | Outstanding | 0.86 KM |
| St Catharine'S Cofe Primary School | Voluntary Aided School | Good | 0.96 KM |
| Dean Trust Rose Bridge | Academy Sponsor Led | 1.39 KM | |
| Douglas Valley Sure Start Children'S Centre | Children's Centre Linked Site | 1.41 KM |
Images
Nearby Streets
| Name | Average Price | Average Sqft | Distance |
|---|---|---|---|
| Bryn Street | £ 0 | 0 | 0.00 KM |
| Sherbourne Place | £ 0 | 0 | 0.00 KM |
| Chapel Street | £ 135,000 | 0 | 0.00 KM |
| Rupert Street | £ 120,000 | 0 | 0.00 KM |
| Edwin Street | £ 0 | 0 | 0.00 KM |
Nearby Transport
| Name | NLC | TLC | Distance |
|---|---|---|---|
| Ince (Manchester) | 2236 | INC | 0.85 KM |
| Wigan North Western | 2363 | WGN | 1.72 KM |
| Wigan Wallgate | 2406 | WGW | 1.77 KM |
| Hindley | 2398 | HIN | 4.85 KM |
| Bryn | 2222 | BYN | 5.20 KM |
Nearby Listings
| Address | Price | Type | Score | Distance |
|---|---|---|---|---|
| Manley Street, Ince, Wigan, WN3 | £ 125,000 | BUY | 6 / 10 | 0.00 KM |
| Winifred Street, Ince, WN3 | £ 150,000 | BUY | 5 / 10 | 0.03 KM |
| Redbrook Road, Ince, WN3 | £ 200,000 | BUY | Unknown | 0.20 KM |
| Redbrook Road, Ince, WN3 | £ 230,000 | BUY | 7 / 10 | 0.20 KM |
| Banner Street, Ince, WN3 | £ 170,000 | BUY | 6 / 10 | 0.21 KM |
Nearby Properties
| Address | Price | Distance |
|---|---|---|
| 34 Manley Street | £ 68,000 | 0.06 KM |
| 41 Manley Street | £ 93,000 | 0.06 KM |
| 44 Manley Street | £ 140,000 | 0.06 KM |
| 37 Manley Street | £ 91,000 | 0.06 KM |
| 52 - 54 Manley Street | £ 103,500 | 0.06 KM |