Gerddi Rhosyn, Kilgetty, Pembrokeshire, SA68
By FBM
£ 299,950
Reviews
3 out of 5 stars
FBM says ..
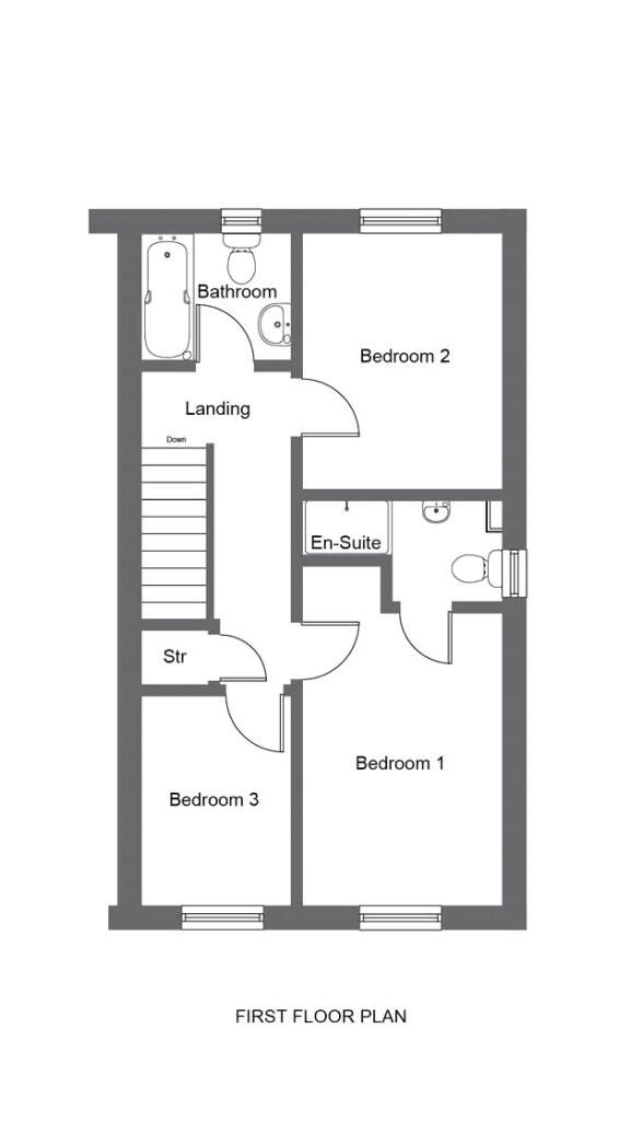
Welcome to Gerddi Rhosyn, Kilgetty – A Brand New, Exclusive Development of 15 Executive Houses by Obsidian Homes. Discover the exceptional lifestyle at Gerddi Rhosyn, a stunning new development offering an exclusive collection of 15 executive homes in the charming village of Kil...
Property Oracle says ..
This is a modern semi-detached property in Kilgetty, Pembrokeshire. The house appears to be in excellent condition, likely a new build. It features 3 bedrooms and 2 bathrooms. The property benefits from its proximity to local amenities such as Kilgetty train station and Stepaside C.P. School. While the price is slightly above the average for the area, the condition and modern features justify the valuation.
Therefore, we give this property 7 / 10. *Disclaimer: This is our option and does constitute a recommendation or financial advice. Do your own research. *
- Price
- 7
- Condition
- 9
- Location
- 7
- Land
- 6
- Bedrooms
- 3
- Bathrooms
- 2
The heatmap indicates the level of crime in the area. The color of the heatmap indicates the crime severity and recency.
Metrics Year-on-Year
- Average area value
- 278,905.00 £Increased by 2.67 %
- Average area rental value
- 800.00 £/moDecreased by 34.53 %
- Est rental Yield
- 3.44 %Decreased by 36.30 %
- Crime Rate
- 38.00 %Unchanged by 0.00 %
Agent Activity
FBM created the listing.
Nearby Schools
| Name | Type | Ofsted | Distance |
|---|---|---|---|
| Stepaside C.P. School | Welsh Establishment | 0.35 KM | |
| Saundersfoot C.P. School | Welsh Establishment | 2.41 KM | |
| Templeton C.P. School | Welsh Establishment | 5.52 KM | |
| St Teilos V.R.C. School | Welsh Establishment | 6.35 KM | |
| The Greenhill School | Welsh Establishment | 6.39 KM |
Images
Nearby Streets
| Name | Average Price | Average Sqft | Distance |
|---|---|---|---|
| Saint Mary's Place | £ 0 | 0 | 0.00 KM |
| Ivy Chimney Lane | £ 475,000 | 0 | 0.00 KM |
| Newton Terrace | £ 0 | 0 | 0.00 KM |
| Woodfield Avenue | £ 0 | 0 | 0.00 KM |
| Station Road | £ 0 | 0 | 0.00 KM |
Nearby Transport
| Name | NLC | TLC | Distance |
|---|---|---|---|
| Kilgetty | 4083 | KGT | 0.20 KM |
| Saundersfoot | 4108 | SDF | 1.00 KM |
| Tenby | 4110 | TEN | 6.46 KM |
| Narberth | 4098 | NAR | 7.76 KM |
| Penally | 4129 | PNA | 8.01 KM |
Nearby Listings
| Address | Price | Type | Score | Distance |
|---|---|---|---|---|
| Station Road, Kilgetty, SA68 | £ 465,000 | BUY | 6 / 10 | 0.00 KM |
| Gerddi Rhosyn, Kilgetty, Pembrokeshire, SA68 | £ 299,950 | BUY | 7 / 10 | 0.00 KM |
| Gerddi Rhosyn, Kilgetty, Pembrokeshire, SA68 | £ 445,000 | BUY | 7 / 10 | 0.00 KM |
| Station Road, Kilgetty, SA68 | £ 299,950 | BUY | 7 / 10 | 0.00 KM |
| Gerddi Rhosyn, Kilgetty, Pembrokeshire, SA68 | £ 449,950 | BUY | 7 / 10 | 0.00 KM |
Nearby Properties
| Address | Price | Distance |
|---|---|---|
| Lansdowne | £ 185,000 | 0.01 KM |
| Rothbury | £ 165,000 | 0.01 KM |
| Fairwinds | £ 135,000 | 0.01 KM |
| Roseland | £ 175,000 | 0.01 KM |
| Gordon Villa | £ 125,000 | 0.13 KM |