Glenwood Drive, Irby, Wirral, CH61
By Bradshaw Farnham & Lea
£ 315,000
Reviews
4 out of 5 stars
Bradshaw Farnham & Lea says ..
Situated in the highly desirable Irby Village, this beautifully presented four-bedroom semi-detached home offers spacious and versatile accommodation over three floors, making it ideal for growing families or those seeking a peaceful village setting with excellent access to nearby towns and cities
Property Oracle says ..
Glenwood Drive is located in Irby, Wirral, a suburb with a good reputation for its family-friendly atmosphere and proximity to local amenities. The area benefits from several highly-rated primary and secondary schools within a short distance, including Irby Primary School which has an ‘Outstanding’ Ofsted rating. Public transportation links are also relatively accessible, with several train stations within a reasonable commute. This contributes to a positive location score.
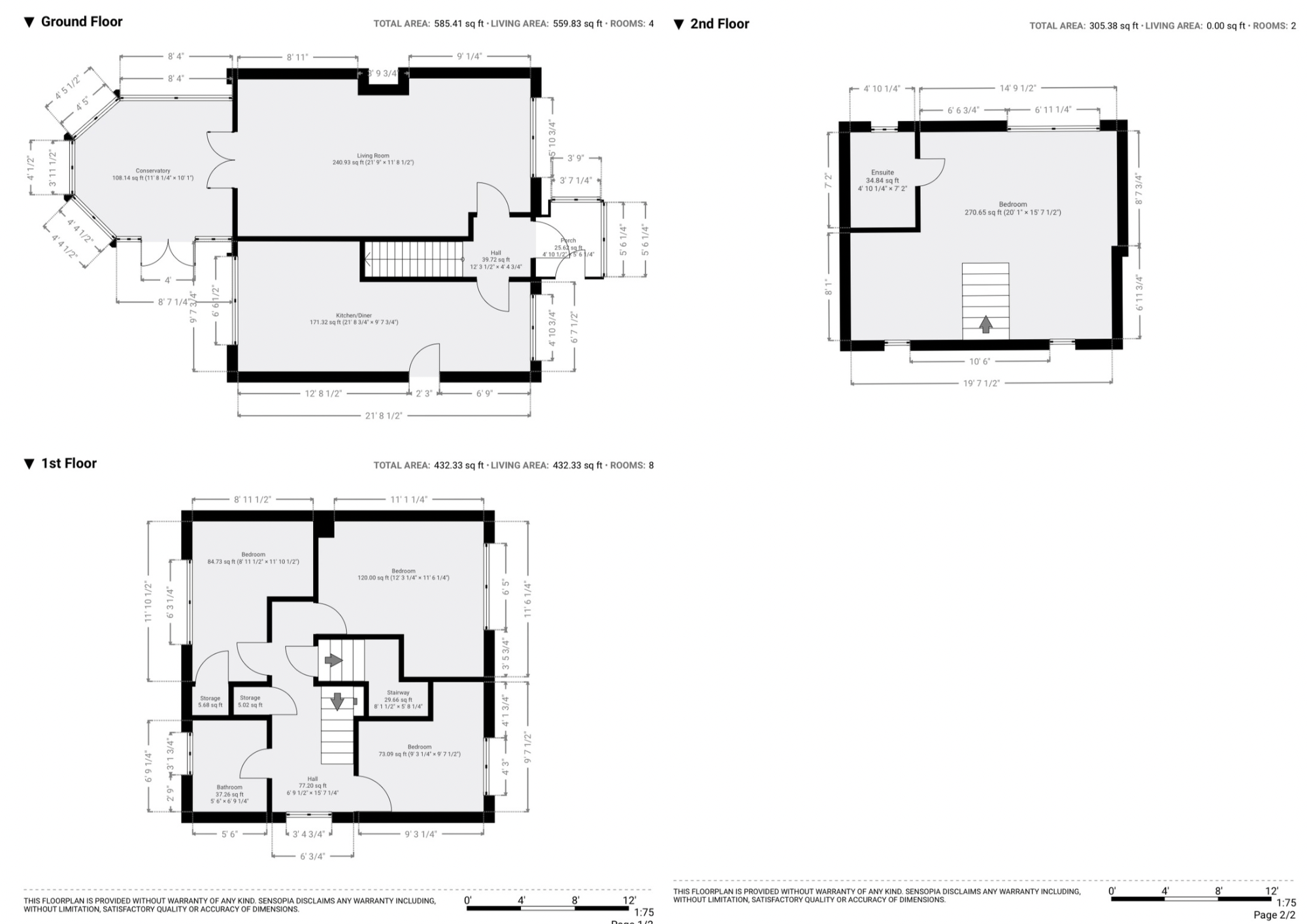
Based on the provided images, the property appears to be well-maintained and in good condition. The kitchen and bathrooms have been recently updated, and the property shows no obvious signs of significant wear and tear or needing renovation. The property benefits from a conservatory which adds to the overall living space. This suggests a high condition score.
The property includes a sizeable garden, offering ample outdoor space. The garden is well-maintained and provides a pleasant area for relaxation and recreation. This is a significant positive factor in assessing the land aspect.
The list price of £315,000 is slightly above the average price for the area (£306,047). However, considering the property’s good condition, the inclusion of a garden, and its larger than average size (560 sqft compared to the local average of 1119 sqft), the price seems reasonable, particularly when compared to similar properties on Glenwood Drive itself. The average price per sqft in the area is £273, while this property is listed at a significantly lower price per sqft. This suggests a potentially good value for money, resulting in a favorable price score.
The property includes a PATIO, CONSERVATORY, and LAUNDRY.
Therefore, we give this property 8 / 10. *Disclaimer: This is our option and does constitute a recommendation or financial advice. Do your own research. *
- Price
- 8
- Condition
- 9
- Location
- 8
- Land
- 8
- Bedrooms
- 4
- Bathrooms
- 2
- Sqft (est)
- 560.11
- Lot (est)
- 585.41
The heatmap indicates the level of crime in the area. The color of the heatmap indicates the crime severity and recency.
Metrics Year-on-Year
- Average area value
- 429,000.00 £Increased by 36.65 %
- Est sale value
- 257,650.60 £Increased by 41.54 %
- Average area rental value
- 1,163.00 £/moIncreased by 0.43 %
- Est letting value
- 560.11 £/moUnchanged by 0.00 %
- Est rental Yield
- 3.25 %Decreased by 26.64 %
- Crime Rate
- 4.00 %Unchanged by 0.00 %
Agent Activity
Bradshaw Farnham & Lea created the listing.
Nearby Schools
| Name | Type | Ofsted | Distance |
|---|---|---|---|
| Irby Primary School | Community School | Outstanding | 0.26 KM |
| South And West Hub - Pensby Children'S Centre | Children's Centre | 1.48 KM | |
| Pensby High School | Foundation School | Good | 1.60 KM |
| Ladymount Catholic Primary School | Voluntary Aided School | Good | 1.86 KM |
| Greasby Junior School | Community School | Good | 1.87 KM |
Images
Nearby Streets
| Name | Average Price | Average Sqft | Distance |
|---|---|---|---|
| Foothpath 45 | £ 160,000 | 0 | 0.00 KM |
| Parkway | £ 0 | 0 | 0.00 KM |
| Manor Road | £ 0 | 0 | 0.00 KM |
| Devonshire Road | £ 0 | 0 | 0.00 KM |
| Edgemoor Drive | £ 300,000 | 0 | 0.00 KM |
Nearby Transport
| Name | NLC | TLC | Distance |
|---|---|---|---|
| Upton (Merseyside) | 2141 | UPT | 4.34 KM |
| Heswall | 2138 | HSW | 5.07 KM |
| Moreton (Merseyside) | 2151 | MRT | 5.56 KM |
| Leasowe | 2237 | LSW | 5.76 KM |
| Bidston | 2136 | BID | 6.74 KM |
Nearby Listings
| Address | Price | Type | Score | Distance |
|---|---|---|---|---|
| Glenwood Drive, Irby, Wirral, CH61 | £ 315,000 | BUY | 8 / 10 | 0.00 KM |
| Glenwood Drive, Irby, Wirral | £ 240,000 | BUY | 7 / 10 | 0.09 KM |
| Woodside Road, Irby, Wirral, CH61 | £ 275,000 | BUY | 6 / 10 | 0.12 KM |
| Woodside Road, Irby, Wirral | £ 275,000 | BUY | 5 / 10 | 0.12 KM |
| Woodside Road, Irby, Wirral | £ 359,950 | BUY | 7 / 10 | 0.13 KM |
Nearby Properties
| Address | Price | Distance |
|---|---|---|
| 53 Glenwood Drive | £ 118,750 | 0.02 KM |
| 37 Glenwood Drive | £ 160,000 | 0.02 KM |
| 41 Glenwood Drive | £ 189,000 | 0.02 KM |
| 55 Glenwood Drive | £ 151,000 | 0.02 KM |
| 29 Glenwood Drive | £ 260,100 | 0.02 KM |