Southwick Road, North Boarhunt, PO17
By White & Guard Estate Agents
£ 850,000
Reviews
3 out of 5 stars
White & Guard Estate Agents says ..
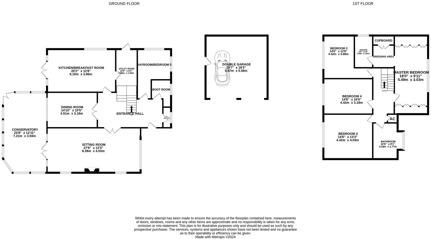
Ground Floor: Combining both space and versatility for any growing or large family, this lovely family home comes with an exceptionally good sized, mature rear garden. A driveway that provides parking for several vehicles and a double garage. Upon entering the spacious inviting entrance hall y...
Property Oracle says ..
This is a substantial detached property located in the semi-rural area of North Boarhunt. The house offers five bedrooms and two bathrooms, making it suitable for families. The modern kitchen is a highlight, while some other areas, like the bathrooms, could use updating. A significant asset is the large garden, providing ample outdoor space. The location offers a balance between rural living and accessibility, though reliance on a car may be necessary for commuting. The price appears reasonable given the property’s size, features, and location within the local market.
Therefore, we give this property 7 / 10. *Disclaimer: This is our option and does constitute a recommendation or financial advice. Do your own research. *
- Price
- 7
- Condition
- 7
- Location
- 7
- Land
- 8
- Bedrooms
- 5
- Bathrooms
- 2
- Sqft (est)
- 2,381.95
The heatmap indicates the level of crime in the area. The color of the heatmap indicates the crime severity and recency.
Metrics Year-on-Year
- Average area value
- 224,091.00 £Decreased by 51.86 %
- Est sale value
- 740,786.45 £Decreased by 24.88 %
- Average area rental value
- 1,581.00 £/moIncreased by 20.59 %
- Est letting value
- 4,763.90 £/moIncreased by 100.00 %
- Est rental Yield
- 8.47 %Increased by 150.59 %
- Crime Rate
- 6.00 %Unchanged by 0.00 %
Agent Activity
White & Guard Estate Agents created the listing.
Nearby Schools
| Name | Type | Ofsted | Distance |
|---|---|---|---|
| Newtown Soberton Infant School | Community School | Good | 3.11 KM |
| Boundary Oak School | Other Independent School | 3.64 KM | |
| Wickham Church Of England Primary School | Voluntary Controlled School | Good | 4.34 KM |
| Little Petals, Merry-Go-Round And Happy Valley Children'S Centre | Children's Centre | 4.34 KM | |
| Cams Hill School | Academy Converter | Good | 4.52 KM |
Images
Nearby Streets
| Name | Average Price | Average Sqft | Distance |
|---|---|---|---|
| Wickham Court | £ 0 | 0 | 0.00 KM |
| Wickham Court Blackhouse Lane | £ 0 | 0 | 0.00 KM |
| The Bungalow | £ 675,000 | 0 | 0.00 KM |
Nearby Transport
| Name | NLC | TLC | Distance |
|---|---|---|---|
| Portchester | 5928 | PTC | 5.45 KM |
| Fareham | 5900 | FRM | 6.19 KM |
Nearby Listings
| Address | Price | Type | Score | Distance |
|---|---|---|---|---|
| Southwick Road, North Boarhunt, PO17 | £ 975,000 | BUY | 6 / 10 | 0.00 KM |
| Southwick Road, North Boarhunt, PO17 | £ 850,000 | BUY | 7 / 10 | 0.00 KM |
| Bere Farm Lane, North Boarhunt, Fareham | £ 250,000 | BUY | 6 / 10 | 0.15 KM |
| Bere Farm Lane, North Boarhunt, Fareham, Hampshire, PO17 | £ 230,000 | BUY | 7 / 10 | 0.16 KM |
| Paddock View, Southwick Road, North Boarhunt, Fareham, PO17 | £ 1,400,000 | BUY | Unknown | 0.28 KM |
Nearby Properties
| Address | Price | Distance |
|---|---|---|
| Glenthorne | £ 420,000 | 0.04 KM |
| Mount Folly Cottage | £ 1,100,000 | 0.04 KM |
| Rowndale | £ 485,000 | 0.04 KM |
| The Nest | £ 485,000 | 0.20 KM |
| Wyvern | £ 580,000 | 0.20 KM |