Pearsons says ..
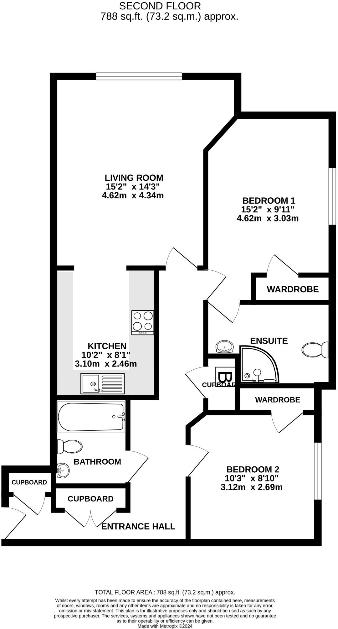
NO FORWARD CHAIN. This modern purpose built two bedroom second floor apartment is ideally located to the west of Fareham town centre and within a short distance of Fareham's mainline railway station. The well-designed internal accommodation comprises; entrance hall, 15' living room, kitchen, two ...
Property Oracle says ..
This two-bedroom, two-bathroom apartment in Fareham West, Hampshire, is listed at £185,000. The property is situated in a convenient location near Fareham’s mainline railway station, offering easy access to transportation links. Several highly-rated schools, including Fareham College, St Jude’s Catholic Primary School, and Wallisdean Infant & Junior Schools, are also within a short distance. The apartment itself appears modern, and the images provided showcase a well-maintained kitchen and updated bathrooms. The flooring seems relatively new, lending a sense of recent renovations or upgrades. However, the shared garden shown in images needs some maintenance, and the lack of information regarding the apartment’s lease terms, size, and the exact details of shared amenities might need further clarification. The available comparison properties’ lack of specific square footage data hampers a complete assessment of value. Overall, this apartment presents a decent investment opportunity, but prospective buyers should consider conducting thorough due diligence before making any offer, particularly in relation to the potential maintenance costs and lease terms.
Therefore, we give this property 6 / 10. *Disclaimer: This is our option and does constitute a recommendation or financial advice. Do your own research. *
- Price
- 7
- Condition
- 6
- Location
- 7
- Land
- 4
- Bedrooms
- 2
- Bathrooms
- 2
- Sqft (est)
- 787.92
The heatmap indicates the level of crime in the area. The color of the heatmap indicates the crime severity and recency.
Metrics Year-on-Year
- Average area value
- 429,993.00 £Increased by 1.22 %
- Est sale value
- 301,773.36 £Increased by 9.12 %
- Average area rental value
- 1,850.00 £/moIncreased by 33.29 %
- Est letting value
- 787.92 £/moUnchanged by 0.00 %
- Est rental Yield
- 5.16 %Increased by 31.63 %
- Crime Rate
- 3.00 %Unchanged by 0.00 %
Agent Activity
Pearsons marked this listing as sold.
Pearsons created the listing.
Nearby Schools
| Name | Type | Ofsted | Distance |
|---|---|---|---|
| St Jude'S Catholic Primary School | Voluntary Aided School | Good | 0.29 KM |
| Fareham College | Further Education | Outstanding | 0.52 KM |
| Wallisdean Infant School | Community School | Outstanding | 0.57 KM |
| Wallisdean Junior School | Community School | Good | 0.66 KM |
| Fareham Academy | Academy Converter | Good | 0.97 KM |
Images
Nearby Streets
| Name | Average Price | Average Sqft | Distance |
|---|---|---|---|
| Gold Close | £ 0 | 0 | 0.00 KM |
| New Broadlaw | £ 120,000 | 0 | 0.00 KM |
| Brendon Road | £ 269,950 | 0 | 0.00 KM |
| Craven Court | £ 315,000 | 0 | 0.00 KM |
| Cheviot Walk | £ 0 | 0 | 0.00 KM |
Nearby Transport
| Name | NLC | TLC | Distance |
|---|---|---|---|
| Fareham | 5900 | FRM | 1.32 KM |
| Swanwick | 5920 | SNW | 7.37 KM |
| Portchester | 5928 | PTC | 8.81 KM |
| Botley | 5894 | BOE | 9.49 KM |
Nearby Listings
| Address | Price | Type | Score | Distance |
|---|---|---|---|---|
| YORK HOUSE, FAREHAM | £ 185,000 | BUY | 6 / 10 | 0.00 KM |
| The Avenue, Fareham, Hampshire | £ 215,000 | BUY | 6 / 10 | 0.00 KM |
| York House, The Avenue, Fareham | £ 230,000 | BUY | 6 / 10 | 0.00 KM |
| The Avenue, Fareham, Hampshire | £ 210,000 | BUY | 6 / 10 | 0.03 KM |
| The Avenue, Fareham | £ 500,000 | BUY | 6 / 10 | 0.05 KM |
Nearby Properties
| Address | Price | Distance |
|---|---|---|
| 33 The Avenue | £ 415,000 | 0.05 KM |
| 53 The Avenue | £ 475,000 | 0.05 KM |
| 31 The Avenue | £ 240,000 | 0.05 KM |
| 49 The Avenue | £ 97,000 | 0.05 KM |
| 51 The Avenue | £ 540,000 | 0.05 KM |