Maison says ..
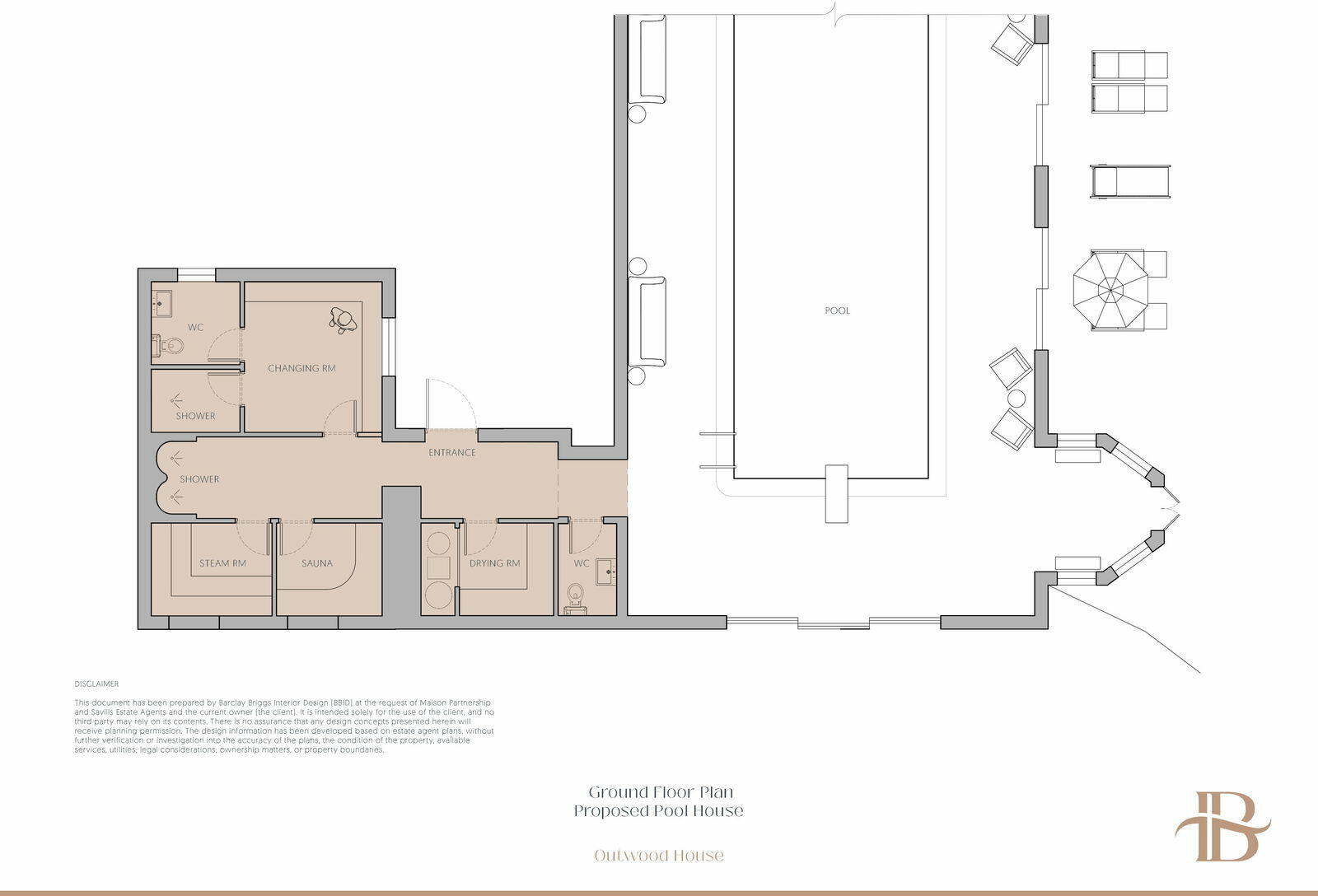
An expansive residence that unfolds across an impressive 4,860 sq ft of meticulously designed living space, with outbuildings, and is set within 7.5 acres of stunning gardens. **Plans have been been drawn to create an open plan kitchen and conversion of outbuildings**
Property Oracle says ..
This property in Outwood, Surrey presents a compelling opportunity for buyers seeking a spacious family home in a desirable, tranquil setting. The house itself boasts five bedrooms and four bathrooms, indicative of considerable living space. The interior is presented well, showing a blend of traditional character and modern upgrades. The significant land area and included amenities such as the swimming pool and tennis court are substantial assets. However, the property isn’t without its downsides, namely requiring an update to the kitchen, and a lack of precise information for comparable properties make it difficult to assess the value of the property. The potential for improvement in aspects such as the kitchen are notable. Although some parts, in particular the garden, may benefit from some refurbishment in order to reflect the asking price of the property. Overall, the property offers a unique combination of charm, space, and amenities but potential buyers should carefully weigh the current condition and the costs of potential renovations.
Therefore, we give this property 7 / 10. *Disclaimer: This is our option and does constitute a recommendation or financial advice. Do your own research. *
- Price
- 6
- Condition
- 7
- Location
- 7
- Land
- 10
- Bedrooms
- 5
- Bathrooms
- 4
- Sqft (est)
- 9,948.01
The heatmap indicates the level of crime in the area. The color of the heatmap indicates the crime severity and recency.
Metrics Year-on-Year
- Average area value
- 383,000.00 £Increased by 12.20 %
- Est sale value
- 3,432,063.45 £Increased by 30.19 %
- Average area rental value
- 764.00 £/moDecreased by 19.32 %
- Est letting value
- 0.00 £/mo
- Est rental Yield
- 2.39 %Decreased by 28.23 %
- Crime Rate
- 78.00 %Unchanged by 0.00 %
Agent Activity
Maison created the listing.
Nearby Schools
| Name | Type | Ofsted | Distance |
|---|---|---|---|
| Burstow Primary School | Foundation School | Good | 3.00 KM |
| The Windmill Sure Start Children'S Centre | Children's Centre | 3.17 KM | |
| Aurora Redehall School | Other Independent Special School | Good | 4.49 KM |
| Bletchingley Village Primary School | Academy Converter | Good | 4.84 KM |
| Nutfield Church Cofe Primary School | Voluntary Aided School | Good | 4.95 KM |
Images
Nearby Streets
| Name | Average Price | Average Sqft | Distance |
|---|---|---|---|
| Cogman's Lane | £ 1,195,000 | 0 | 0.00 KM |
Nearby Transport
| Name | NLC | TLC | Distance |
|---|---|---|---|
| Nutfield | 5476 | NUF | 4.81 KM |
| Godstone | 5474 | GDN | 6.34 KM |
| Salfords (Surrey) | 5380 | SAF | 6.65 KM |
| Horley | 5365 | HOR | 7.11 KM |
| Gatwick Airport | 5416 | GTW | 7.78 KM |
Nearby Listings
| Address | Price | Type | Score | Distance |
|---|---|---|---|---|
| Outwood Common, Outwood, Redhill, Surrey, RH1. | £ 2,500,000 | BUY | 7 / 10 | 0.00 KM |
| Outwood Common, Outwood, Redhill, Surrey, RH1 | £ 2,875,000 | BUY | 7 / 10 | 0.23 KM |
| Gayhouse Lane, Outwood, RH1 | £ 800,000 | BUY | 8 / 10 | 0.28 KM |
| Scotts Hill, Outwood | £ 775,000 | BUY | Unknown | 0.39 KM |
| Brickfield Road, Outwood, Redhill | £ 1,450,000 | BUY | 7 / 10 | 1.15 KM |
Nearby Properties
| Address | Price | Distance |
|---|---|---|
| Windmill Cottage | £ 775,000 | 0.00 KM |
| The Chapter House | £ 973,000 | 0.00 KM |
| Little Cricketts | £ 889,950 | 0.00 KM |
| Ashcroft Lodge | £ 600,000 | 0.00 KM |
| The Hayloft | £ 770,000 | 0.37 KM |