Ocean says ..
Ocean are pleased to welcome to the market this beautifully presented 4 bedroom, semi detached home boasting a 300ft garden in Downend, BS16.
Property Oracle says ..
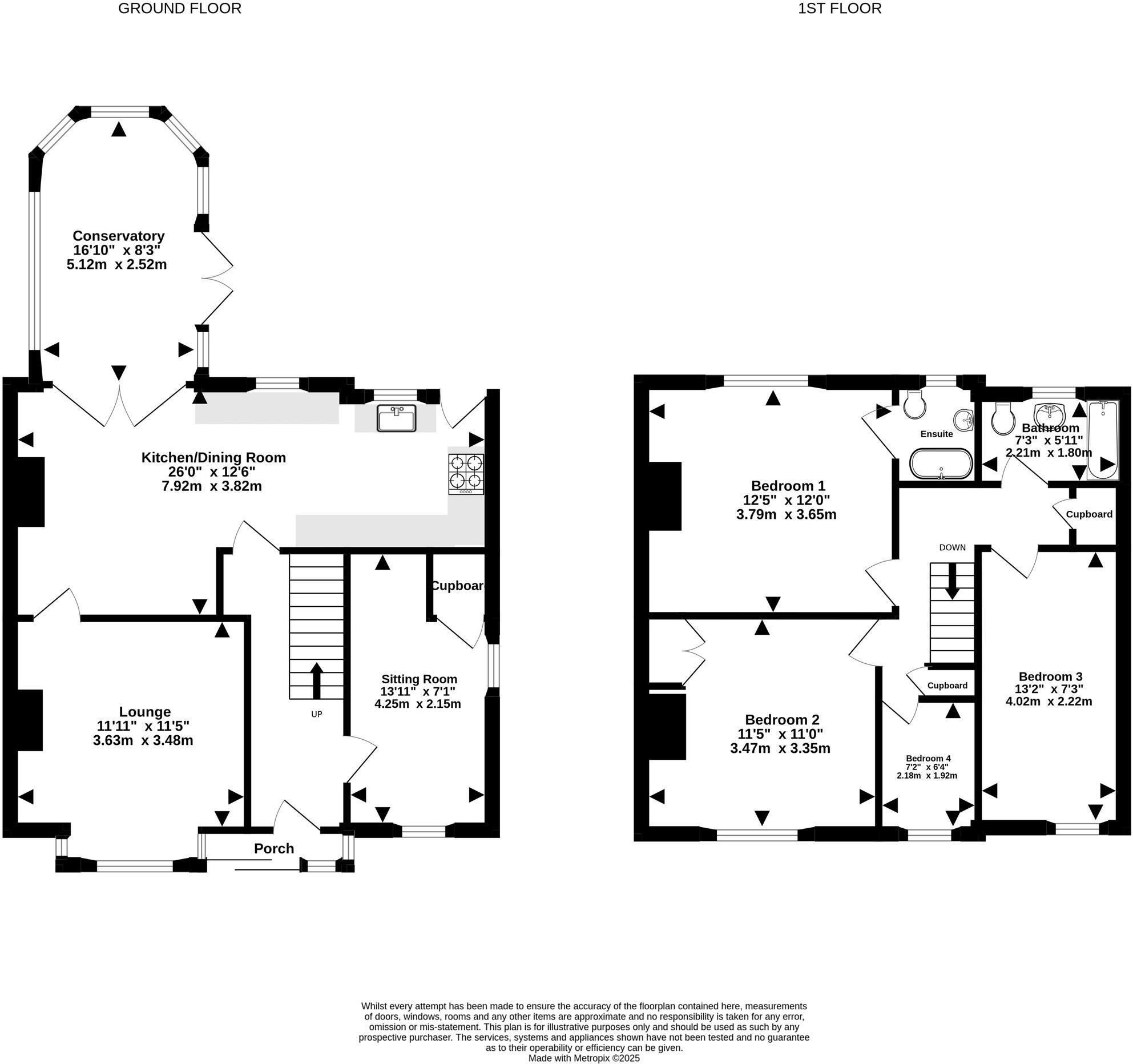
The property is located on Westerleigh Road, Downend, South Gloucestershire. It’s a semi-detached house with four bedrooms and two bathrooms, spanning 2,484.20 square feet. The list price is £585,000.
The property’s location is convenient, with Downend School and Stanbridge Primary School both within a short distance (0.16km). Several other well-regarded schools are also nearby. The proximity to Bristol Parkway train station (5.85km) offers good transport links.
Based on the provided images, the property appears to be in good condition. The interior is well-maintained and modern, with updated kitchens and bathrooms. There is no visible evidence of significant repairs or renovations needed. The property benefits from a garden, which adds to its overall appeal.
Considering the average house price in the area is £499,455 and the average price per square foot is £511, the list price of £585,000 for this 2,484.20 sq ft property seems slightly above average but justifiable given its size, condition, and location. Nearby comparable properties support this assessment, although a lack of precise square footage data for those properties makes a direct comparison difficult. The presence of a garden also contributes to the higher price point.
The property includes features such as a conservatory and a well-maintained garden. These features increase the property’s desirability and are likely factors in the pricing.
In summary, this property presents a good value proposition, offering a well-maintained, spacious home in a convenient location with good schools and transport links. The slightly above-average price is justified by its condition, size, and desirable features.
Therefore, we give this property 7 / 10. *Disclaimer: This is our option and does constitute a recommendation or financial advice. Do your own research. *
- Price
- 7
- Condition
- 9
- Location
- 8
- Land
- 7
- Bedrooms
- 4
- Bathrooms
- 2
- Sqft (est)
- 2,484.20
The heatmap indicates the level of crime in the area. The color of the heatmap indicates the crime severity and recency.
Metrics Year-on-Year
- Average area value
- 407,556.00 £Decreased by 13.89 %
- Est sale value
- 939,027.60 £Decreased by 13.70 %
- Average area rental value
- 1,679.00 £/moIncreased by 16.92 %
- Est letting value
- 2,484.20 £/moUnchanged by 0.00 %
- Est rental Yield
- 4.94 %Increased by 35.71 %
- Crime Rate
- 3.00 %Unchanged by 0.00 %
Agent Activity
Ocean created the listing.
Nearby Schools
| Name | Type | Ofsted | Distance |
|---|---|---|---|
| Downend School | Academy Converter | Good | 0.16 KM |
| Stanbridge Primary School | Community School | Good | 0.16 KM |
| St Augustine Of Canterbury Catholic Primary School | Voluntary Aided School | Good | 0.46 KM |
| Mangotsfield Children'S Centre | Children's Centre Linked Site | 0.56 KM | |
| Barley Close Community Primary School | Community School | Good | 0.69 KM |
Images
Nearby Streets
| Name | Average Price | Average Sqft | Distance |
|---|---|---|---|
| Woodhall Close | £ 0 | 0 | 0.00 KM |
| Woodhall Close | £ 575,000 | 0 | 0.00 KM |
| Graham Road | £ 400,000 | 0 | 0.00 KM |
| Stanbridge Court | £ 0 | 0 | 0.00 KM |
| Kingston Close | £ 450,000 | 0 | 0.00 KM |
Nearby Transport
| Name | NLC | TLC | Distance |
|---|---|---|---|
| Bristol Parkway | 3230 | BPW | 5.85 KM |
| Filton Abbey Wood | 3235 | FIT | 7.68 KM |
| Keynsham | 3237 | KYN | 8.15 KM |
| Stapleton Road | 3250 | SRD | 8.37 KM |
| Patchway | 3213 | PWY | 8.48 KM |
Nearby Listings
| Address | Price | Type | Score | Distance |
|---|---|---|---|---|
| Westerleigh Road, Downend | £ 585,000 | BUY | 7 / 10 | 0.00 KM |
| Woodhall Close, Downend, Bristol, BS16 6AJ | £ 535,000 | BUY | Unknown | 0.14 KM |
| Westerleigh Close, Bristol, South Gloucestershire, BS16 | £ 450,000 | BUY | 7 / 10 | 0.14 KM |
| Stanbridge Road, Downend, Bristol | £ 530,000 | BUY | Unknown | 0.25 KM |
| Brook Road, Mangotsfield, BS16 | £ 370,000 | BUY | 7 / 10 | 0.26 KM |
Nearby Properties
| Address | Price | Distance |
|---|---|---|
| 13 Westerleigh Road | £ 105,000 | 0.01 KM |
| 11 Westerleigh Road | £ 193,500 | 0.01 KM |
| 23 Westerleigh Road | £ 178,551 | 0.01 KM |
| 6 Westerleigh Close | £ 325,000 | 0.09 KM |
| 8 Woodhall Close | £ 169,000 | 0.10 KM |