PR
Turnberry, Bracknell, Berkshire, RG12
By Prospect Estate Agency
£ 425,000
Reviews
3 out of 5 stars
Prospect Estate Agency says ..
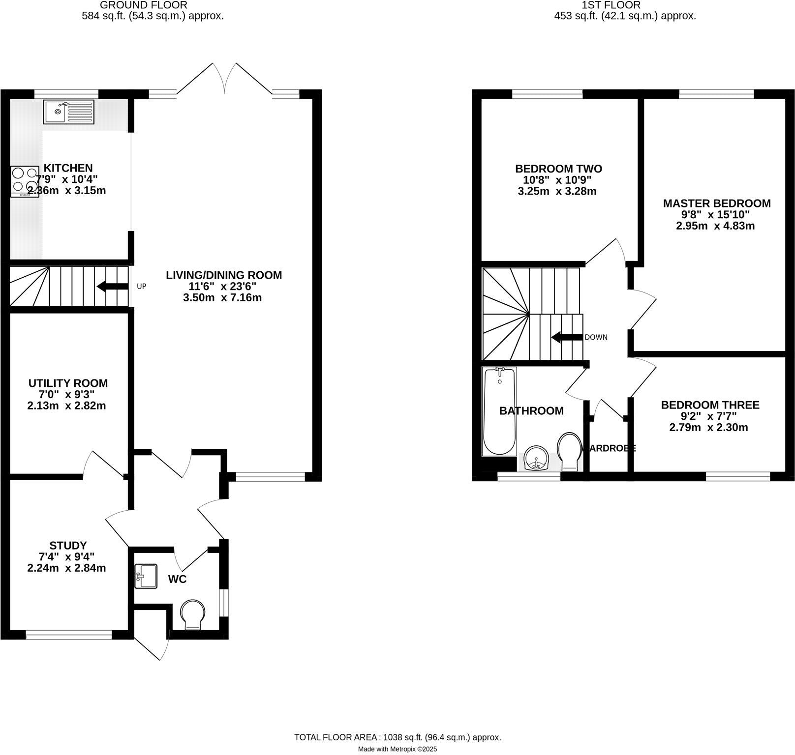
This spacious terrace home is set in the popular Great Hollands area. The generous downstairs accommodation benefits a porch with access to cloakroom, a study and a large storage area that is currently being used as a utility room. There is a modern kitchen, along with a bright living ...
Property Oracle says ..
Therefore, we give this property 7 / 10. *Disclaimer: This is our option and does constitute a recommendation or financial advice. Do your own research. *
- Price
- 6
- Condition
- 8
- Location
- 7
- Land
- 7
- Bedrooms
- 3
- Bathrooms
- 1
- Sqft (est)
- 1,038.00
The heatmap indicates the level of crime in the area. The color of the heatmap indicates the crime severity and recency.
Metrics Year-on-Year
- Average area value
- 217,143.00 £Decreased by 10.70 %
- Est sale value
- 255,348.00 £Decreased by 12.14 %
- Average area rental value
- 1,267.00 £/moIncreased by 25.57 %
- Est letting value
- 1,038.00 £/moUnchanged by 0.00 %
- Est rental Yield
- 7.00 %Increased by 40.56 %
- Crime Rate
- 17.00 %Unchanged by 0.00 %
from 243,173.00 £
from 290,640.00 £
from 1,009.00 £/mo
from 1,038.00 £/mo
from 4.98 %
from 17.00 %
Agent Activity
Prospect Estate Agency created the listing.
Nearby Schools
| Name | Type | Ofsted | Distance |
|---|---|---|---|
| Wooden Hill Primary And Nursery School | Community School | Good | 0.47 KM |
| Easthampstead Park Community School | Community School | Good | 0.74 KM |
| Great Hollands Primary School | Academy Sponsor Led | 0.75 KM | |
| Jennett'S Park Cofe Primary School | Academy Sponsor Led | 0.99 KM | |
| The Hollies Children'S Centre | Children's Centre Linked Site | 1.07 KM |
Images
Nearby Streets
| Name | Average Price | Average Sqft | Distance |
|---|---|---|---|
| Ringmead | £ 0 | 0 | 0.00 KM |
| Redwing Place | £ 0 | 0 | 0.00 KM |
| Great Hollands Road | £ 340,000 | 0 | 0.00 KM |
| Dry Pond Ride | £ 0 | 0 | 0.00 KM |
| Aysgarth | £ 0 | 0 | 0.00 KM |
Nearby Transport
| Name | NLC | TLC | Distance |
|---|---|---|---|
| Bracknell | 5693 | BCE | 3.37 KM |
| Crowthorne | 5628 | CRN | 5.71 KM |
| Martins Heron | 5692 | MAO | 5.92 KM |
| Sandhurst (Berks) | 5646 | SND | 6.25 KM |
| Blackwater | 5625 | BAW | 7.14 KM |
Nearby Listings
| Address | Price | Type | Score | Distance |
|---|---|---|---|---|
| Turnberry, Bracknell, Berkshire, RG12 | £ 425,000 | BUY | 7 / 10 | 0.00 KM |
| Turnberry, Bracknell, Berkshire, RG12 | £ 390,000 | BUY | 6 / 10 | 0.00 KM |
| Turnberry, Bracknell | £ 425,000 | BUY | 6 / 10 | 0.00 KM |
| Turnberry, Bracknell, Berkshire, RG12 | £ 400,000 | BUY | 6 / 10 | 0.07 KM |
| Compton Close, BRACKNELL | £ 350,000 | BUY | 5 / 10 | 0.14 KM |
Nearby Properties
| Address | Price | Distance |
|---|---|---|
| 86 Turnberry | £ 342,000 | 0.01 KM |
| 75 Turnberry | £ 233,000 | 0.01 KM |
| 87 Turnberry | £ 415,000 | 0.01 KM |
| 58 Turnberry | £ 187,500 | 0.01 KM |
| 76 Turnberry | £ 146,500 | 0.01 KM |