Ridge Avenue, Winchmore Hill, London, N21
By Addison Townsend
£ 800,000
Reviews
3 out of 5 stars
Addison Townsend says ..
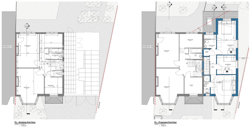
***DEVELOPMENT OPPORTUNITY- PLANNING PERMISSION GRANTED*** Addison Townsend are proud to present this lovely semi detached house for sale with a unique development opportunity on Ridge Avenue within 0.7miles of Winchmore Hill as well as walking
Property Oracle says ..
This is a 4-bedroom semi-detached house located on Ridge Avenue in Winchmore Hill, London. The property offers a good amount of living space at 1,078.54 sqft and includes a garden and garage. While the location is desirable due to its proximity to schools and transportation, the property’s interior is in need of renovation, which is reflected in its traditional style and dated fixtures. The asking price of £800,000 is slightly above the average price per square foot for the area, suggesting that the price may be negotiable or that it accounts for the potential to add value through renovations.
Therefore, we give this property 6 / 10. *Disclaimer: This is our option and does constitute a recommendation or financial advice. Do your own research. *
- Price
- 6
- Condition
- 4
- Location
- 7
- Land
- 7
- Bedrooms
- 4
- Bathrooms
- 1
- Sqft (est)
- 1,078.54
The heatmap indicates the level of crime in the area. The color of the heatmap indicates the crime severity and recency.
Metrics Year-on-Year
- Average area value
- 681,429.00 £Increased by 14.18 %
- Est sale value
- 729,093.04 £Increased by 59.81 %
- Average area rental value
- 1,986.00 £/moDecreased by 15.60 %
- Est letting value
- 1,078.54 £/moUnchanged by 0.00 %
- Est rental Yield
- 3.50 %Decreased by 26.00 %
- Crime Rate
- 2.00 %Unchanged by 0.00 %
Agent Activity
Addison Townsend created the listing.
Nearby Schools
| Name | Type | Ofsted | Distance |
|---|---|---|---|
| Edmonton County School | Academy Converter | Good | 0.78 KM |
| Winchmore School | Community School | Good | 1.17 KM |
| Highfield Primary School | Community School | Outstanding | 1.21 KM |
| Firs Farm Primary School | Community School | Good | 1.32 KM |
| Raglan Infant School | Community School | Good | 1.33 KM |
Images
Nearby Streets
| Name | Average Price | Average Sqft | Distance |
|---|---|---|---|
| York Road | £ 799,995 | 0 | 0.00 KM |
| Kent Road | £ 825,000 | 0 | 0.00 KM |
| Clarendon Way | £ 950,000 | 0 | 0.00 KM |
| New River Path | £ 0 | 0 | 0.00 KM |
| Hyde Park Gardens | £ 775,000 | 0 | 0.00 KM |
Nearby Transport
| Name | NLC | TLC | Distance |
|---|---|---|---|
| Grange Park | 6029 | GPK | 1.61 KM |
| Winchmore Hill | 6024 | WIH | 1.81 KM |
| Bush Hill Park | 6913 | BHK | 1.83 KM |
| Enfield Town | 6959 | ENF | 1.92 KM |
| Enfield Chase | 6010 | ENC | 2.07 KM |
Nearby Listings
| Address | Price | Type | Score | Distance |
|---|---|---|---|---|
| Ridge Avenue, Winchmore Hill, London, N21 | £ 800,000 | BUY | 6 / 10 | 0.00 KM |
| Ridge Avenue, London, N21 | £ 699,995 | BUY | 7 / 10 | 0.12 KM |
| Colne Road, London | £ 799,999 | BUY | 6 / 10 | 0.12 KM |
| Colne Road, London, N21 | £ 650,000 | BUY | 6 / 10 | 0.12 KM |
| Ridge Avenue, Winchmore Hill, N21 | £ 900,000 | BUY | 6 / 10 | 0.12 KM |
Nearby Properties
| Address | Price | Distance |
|---|---|---|
| 27 Kent Road | £ 722,500 | 0.06 KM |
| 21 Kent Road | £ 760,000 | 0.06 KM |
| 90 Ridge Avenue | £ 295,000 | 0.12 KM |
| 80 Ridge Avenue | £ 350,000 | 0.12 KM |
| 76 Ridge Avenue | £ 685,000 | 0.12 KM |