Morgan Court, Homer Road, Hackney, E9
By Rooted
£ 400,000
Reviews
3 out of 5 stars
Rooted says ..
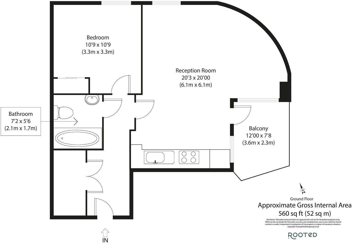
Enviably located on ground floor of this well maintained gated development is this exceptional one double bedroom apartment offering the most perfect first time buy or rental investment. Lovingly kept and much improved by the current owners, the property consists of a spacious entranc...
Property Oracle says ..
This property is a one-bedroom, one-bathroom apartment located in Hackney Wick, East London. The apartment is modern and well-maintained, as seen in the provided images. It benefits from a private patio area. The location is convenient, with several Overground stations within walking distance, providing good transport links. Several schools with good Ofsted ratings are also nearby. However, the property is relatively small (559.72 sqft) compared to the area average (2,210 sqft) and the list price is significantly below the average price for the area. This suggests that the price may be reasonable, considering its size and location.
Therefore, we give this property 6 / 10. *Disclaimer: This is our option and does constitute a recommendation or financial advice. Do your own research. *
- Price
- 7
- Condition
- 9
- Location
- 8
- Land
- 3
- Bedrooms
- 1
- Bathrooms
- 1
- Sqft (est)
- 559.72
The heatmap indicates the level of crime in the area. The color of the heatmap indicates the crime severity and recency.
Metrics Year-on-Year
- Average area value
- 465,625.00 £Decreased by 23.81 %
- Est sale value
- 331,354.24 £Decreased by 23.12 %
- Average area rental value
- 2,831.00 £/moIncreased by 5.44 %
- Est letting value
- 1,679.16 £/moUnchanged by 0.00 %
- Est rental Yield
- 7.30 %Increased by 38.52 %
- Crime Rate
- 4.00 %Unchanged by 0.00 %
Agent Activity
Rooted created the listing.
Nearby Schools
| Name | Type | Ofsted | Distance |
|---|---|---|---|
| St. Dominic'S Catholic Primary School | Voluntary Aided School | Good | 0.34 KM |
| Ickburgh School | Community Special School | Good | 0.42 KM |
| Wentworth Nursery School And Children'S Centre | Local Authority Nursery School | Outstanding | 0.73 KM |
| Wentworth Nursery School And Children'S Centre | Children's Centre | 0.73 KM | |
| Daubeney Children'S Centre | Children's Centre | 0.90 KM |
Images
Nearby Streets
| Name | Average Price | Average Sqft | Distance |
|---|---|---|---|
| East Cross Route | £ 0 | 0 | 0.00 KM |
| Harrowgate Road | £ 0 | 0 | 0.00 KM |
| Cassland Road | £ 0 | 0 | 0.00 KM |
| Crozier Terrace | £ 0 | 0 | 0.00 KM |
| Cadogan Close | £ 0 | 0 | 0.00 KM |
Nearby Transport
| Name | NLC | TLC | Distance |
|---|---|---|---|
| Homerton | 6979 | HMN | 0.85 KM |
| Hackney Wick | 6978 | HKW | 1.13 KM |
| Hackney Central | 6977 | HKC | 2.34 KM |
| Lea Bridge | 6927 | LEB | 2.42 KM |
| London Fields | 6966 | LOF | 2.55 KM |
Nearby Listings
| Address | Price | Type | Score | Distance |
|---|---|---|---|---|
| Morgan Court, Homer Road, Hackney, E9 | £ 400,000 | BUY | 6 / 10 | 0.00 KM |
| Brookfield Road, Victoria Park, Hackney, E9 | £ 950,000 | BUY | 8 / 10 | 0.07 KM |
| Benn Street, Hackney Wick, London, E9 | £ 735,000 | BUY | Unknown | 0.08 KM |
| Wick Road, London, E9 | £ 330,000 | BUY | 6 / 10 | 0.09 KM |
| Brookfield Road, Hackney, London, E9 | £ 600,000 | BUY | 6 / 10 | 0.09 KM |
Nearby Properties
| Address | Price | Distance |
|---|---|---|
| 257b Wick Road | £ 150,000 | 0.06 KM |
| 257 Wick Road | £ 22,000 | 0.06 KM |
| 249a Wick Road | £ 235,000 | 0.06 KM |
| 18 Brookfield Road | £ 610,000 | 0.08 KM |
| 10a Brookfield Road | £ 465,500 | 0.08 KM |