Glen Brook, Flat 2, 50 Craig Walk, Bowness-on-Windermere, LA23 2JT
By Matthews Benjamin
£ 275,000
Reviews
2 out of 5 stars
Matthews Benjamin says ..
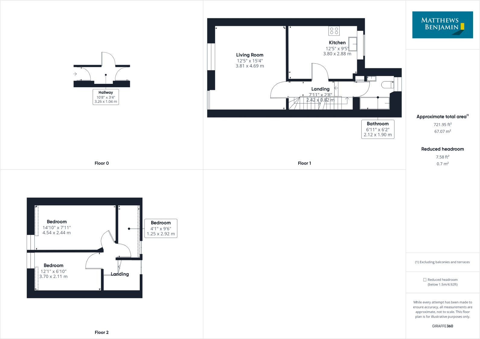
Flat 2, 50 Craig Walk is a excellently located 3 bedroom maisonette apartment located on the first and second floors of a traditional Victorian property on Craig Walk just outside the centre of Bowness-on-Windermere.
Property Oracle says ..
This three-bedroom maisonette apartment in Bowness-on-Windermere presents itself as a well-maintained and attractively furnished property. The interior photographs showcase a modern and updated living space, with a contemporary kitchen and a clean, contemporary bathroom. The location, in the heart of Bowness-on-Windermere, is undoubtedly a key selling point, offering easy access to the town’s amenities, Lake Windermere, and transportation. The apartment’s proximity to schools is also a significant benefit for families. However, the listing lacks crucial information such as the property’s exact square footage and the size of the plot. While the presented photos depict a well-maintained interior, the overall condition of the building and exterior is not fully visible. The list price appears to be in line with comparable properties in the area, although more comparative data would be needed to offer a comprehensive analysis of its value. The lack of a garden or outdoor space should be noted as a potential drawback for some buyers. Overall, the property offers an appealing blend of location, condition, and amenities, which will likely attract a range of potential buyers, particularly those seeking a conveniently located property in a sought-after tourist destination. More information regarding square footage and plot size would improve the accuracy of a market valuation.
Therefore, we give this property 5 / 10. *Disclaimer: This is our option and does constitute a recommendation or financial advice. Do your own research. *
- Price
- 7
- Condition
- 7
- Location
- 8
- Land
- 1
- Bedrooms
- 3
- Bathrooms
- 1
- Sqft (est)
- 721.94
The heatmap indicates the level of crime in the area. The color of the heatmap indicates the crime severity and recency.
Metrics Year-on-Year
- Average area value
- 603,889.00 £Increased by 40.02 %
- Est sale value
- 360,970.00 £Increased by 46.63 %
- Average area rental value
- 1,340.00 £/moIncreased by 1.44 %
- Est letting value
- 721.94 £/moUnchanged by 0.00 %
- Est rental Yield
- 2.66 %Decreased by 27.72 %
- Crime Rate
- 16.00 %Unchanged by 0.00 %
Agent Activity
Matthews Benjamin created the listing.
Nearby Schools
| Name | Type | Ofsted | Distance |
|---|---|---|---|
| Lakes Surestart Children'S Centre | Children's Centre | 0.34 KM | |
| Goodly Dale Primary School | Community School | Good | 0.34 KM |
| St Cuthberts Catholic Primary School, Windermere | Academy Converter | 0.66 KM | |
| St Martin & St Mary Church Of England Primary School | Voluntary Aided School | Good | 0.86 KM |
| The Lakes School | Community School | Good | 2.93 KM |
Images
Nearby Streets
| Name | Average Price | Average Sqft | Distance |
|---|---|---|---|
| Post Knott | £ 1,750,000 | 0 | 0.00 KM |
| Holly Road | £ 0 | 0 | 0.00 KM |
| Woodland Close | £ 0 | 0 | 0.00 KM |
| Glebe Gardens | £ 0 | 0 | 0.00 KM |
| Salisbury Place | £ 450,000 | 0 | 0.00 KM |
Nearby Transport
| Name | NLC | TLC | Distance |
|---|---|---|---|
| Windermere | 1978 | WDM | 1.68 KM |
Nearby Listings
| Address | Price | Type | Score | Distance |
|---|---|---|---|---|
| Glen Brook, Flat 2, 50 Craig Walk, Bowness-on-Windermere, LA23 2JT | £ 275,000 | BUY | 5 / 10 | 0.00 KM |
| Flat 1, 50 Craig Walk, Bowness-on-Windermere, Cumbria, LA23 2JT | £ 300,000 | BUY | Unknown | 0.00 KM |
| No 4 Elim Court, Craig Walk, Windermere, Cumbria, LA23 2JT | £ 365,000 | BUY | 6 / 10 | 0.04 KM |
| 22 South Craig, Windermere, LA23 2JH | £ 525,000 | BUY | 6 / 10 | 0.06 KM |
| 77 Craig Walk, Windermere, Cumbria, LA23 2JT | £ 425,000 | BUY | 5 / 10 | 0.07 KM |
Nearby Properties
| Address | Price | Distance |
|---|---|---|
| 42 Craig Walk | £ 335,000 | 0.07 KM |
| 52 Craig Walk | £ 460,000 | 0.07 KM |
| 48 Craig Walk | £ 390,000 | 0.07 KM |
| 38 Craig Walk | £ 330,000 | 0.07 KM |
| 46 Craig Walk | £ 297,500 | 0.07 KM |