Andrew Pearce says ..
This beautifully presented THREE / FOUR BEDROOM, end-of-terrace house is situated within an award-winning mews-style development, ideally located within the desirable Westfield Park Estate. The property offers a perfect blend of comfort and convenience
Property Oracle says ..
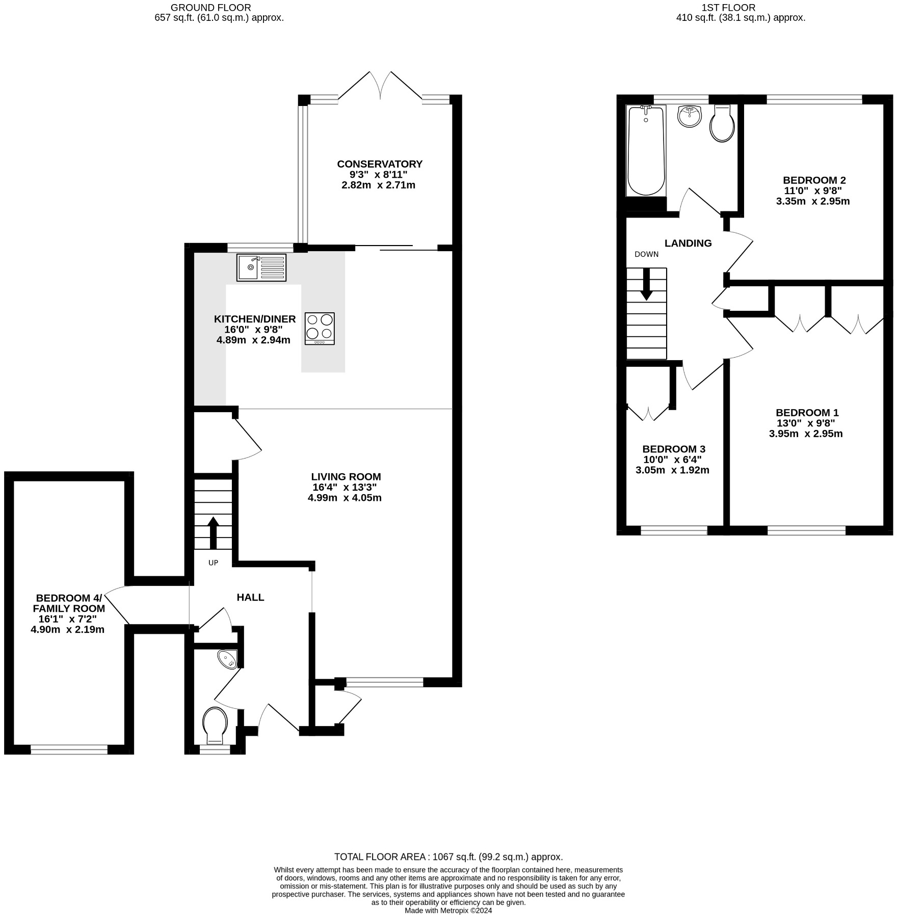
This property is a 3-bedroom, 1-bathroom end of terrace house located in Oakdene Close, Pinner, Harrow. The property benefits from a modern extension to the rear, incorporating a contemporary kitchen and conservatory. The house is presented in good condition throughout, with a recently updated kitchen and bathroom. The property also includes a small, well-maintained garden. The location is convenient, with easy access to Hatch End Overground station and several well-regarded schools within a reasonable distance. While the list price is above the average for the area, the property’s modern updates and desirable location may justify the premium.
Therefore, we give this property 7 / 10. *Disclaimer: This is our option and does constitute a recommendation or financial advice. Do your own research. *
- Price
- 7
- Condition
- 8
- Location
- 8
- Land
- 6
- Bedrooms
- 3
- Bathrooms
- 1
- Sqft (est)
- 868.86
- Lot (est)
- 1,067.00
The heatmap indicates the level of crime in the area. The color of the heatmap indicates the crime severity and recency.
Metrics Year-on-Year
- Average area value
- 1,310,000.00 £Increased by 70.76 %
- Est sale value
- 454,413.78 £Decreased by 6.27 %
- Average area rental value
- 2,509.00 £/moIncreased by 14.46 %
- Est letting value
- 868.86 £/moUnchanged by 0.00 %
- Est rental Yield
- 2.30 %Decreased by 32.94 %
- Crime Rate
- 24.00 %Unchanged by 0.00 %
Agent Activity
Andrew Pearce created the listing.
Nearby Schools
| Name | Type | Ofsted | Distance |
|---|---|---|---|
| Grimsdyke School | Community School | Outstanding | 0.59 KM |
| Hatch End High School | Academy Converter | Good | 1.80 KM |
| Woodhall Primary School | Community School | Requires improvement | 1.85 KM |
| Shaftesbury High School | Community Special School | Outstanding | 1.88 KM |
| St Teresa'S Catholic Primary School And Nursery | Voluntary Aided School | Good | 1.96 KM |
Images
Nearby Streets
| Name | Average Price | Average Sqft | Distance |
|---|---|---|---|
| Seymour Close | £ 1,422,500 | 0 | 0.00 KM |
| Wessex Drive | £ 0 | 0 | 0.00 KM |
| Old Hall Drive | £ 1,575,000 | 0 | 0.00 KM |
| Pinewood Avenue | £ 800,000 | 0 | 0.00 KM |
| Beechengrove | £ 1,475,000 | 0 | 0.00 KM |
Nearby Transport
| Name | NLC | TLC | Distance |
|---|---|---|---|
| Hatch End | 1398 | HTE | 0.40 KM |
| Headstone Lane | 1434 | HDL | 1.79 KM |
| Carpenders Park | 1442 | CPK | 2.65 KM |
| Bushey | 1395 | BSH | 4.36 KM |
| Harrow And Wealdstone | 1397 | HRW | 4.55 KM |
Nearby Listings
| Address | Price | Type | Score | Distance |
|---|---|---|---|---|
| Oakdene Close, Pinner | £ 675,000 | BUY | 7 / 10 | 0.00 KM |
| Oakdene Close, Hatch End | £ 275,000 | BUY | 6 / 10 | 0.01 KM |
| Oakdene Close, Hatch End | £ 279,950 | BUY | 4 / 10 | 0.01 KM |
| Oakdene Close, Pinner | £ 700,000 | BUY | 6 / 10 | 0.03 KM |
| Oakdene Close, Pinner, Pinner, HA5 | £ 120,000 | BUY | 5 / 10 | 0.03 KM |
Nearby Properties
| Address | Price | Distance |
|---|---|---|
| 15 Oakdene Close | £ 345,000 | 0.03 KM |
| 31 Oakdene Close | £ 549,500 | 0.03 KM |
| 44 Oakdene Close | £ 250,000 | 0.03 KM |
| 17 Oakdene Close | £ 142,000 | 0.03 KM |
| 34 Oakdene Close | £ 192,000 | 0.03 KM |