Highfields Road, Burntwood
By Lovett&Co. Estate Agents
£ 260,000
Reviews
3 out of 5 stars
Lovett&Co. Estate Agents says ..
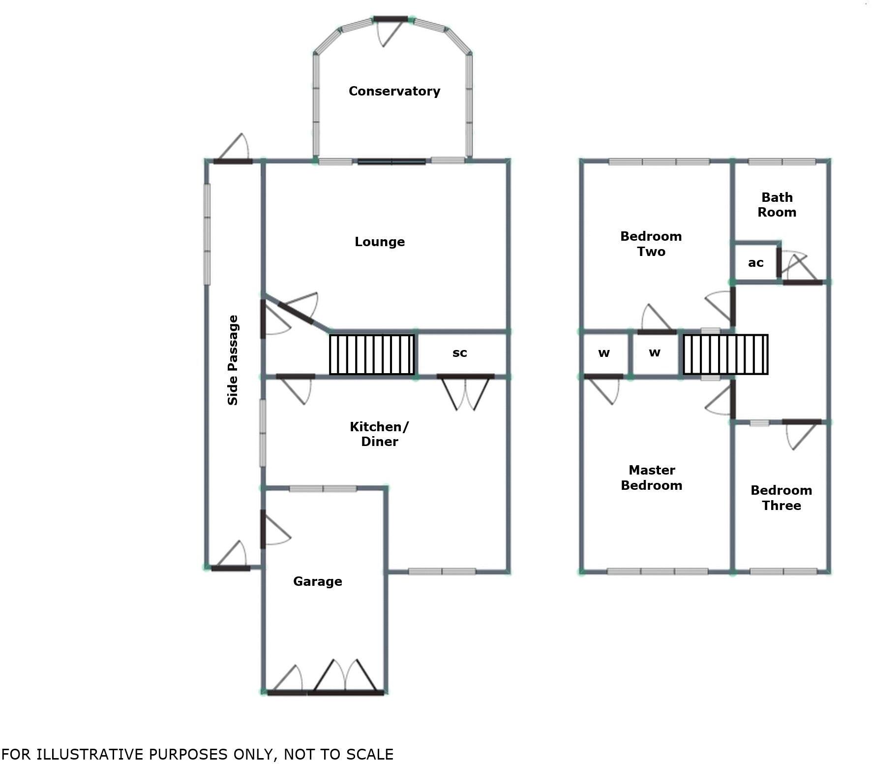
Lovett&Co. Estate Agents are delighted to offer for sale this deceptively spacious three bedroom semi-detached family home, located on the highly sought-after Highfields Road. Offered with NO ONWARD CHAIN, this much-loved property has been a cherished family home for over 50 years and is now...
Property Oracle says ..
This is a semi-detached property located on Highfields Road, Burntwood. It features three bedrooms and one bathroom, with a total square footage of 1,083.00 sqft. The property includes a good-sized garden with a shed and a conservatory. While the property is in a good location, close to local schools and amenities, it is in need of some modernisation. The kitchen and bathroom would benefit from updating, and some rooms have dated decor. The property is listed for £260,000, which seems reasonable given its size, location, and the potential for improvement. The property also benefits from good transportation links.
Therefore, we give this property 6 / 10. *Disclaimer: This is our option and does constitute a recommendation or financial advice. Do your own research. *
- Price
- 7
- Condition
- 5
- Location
- 7
- Land
- 8
- Bedrooms
- 3
- Bathrooms
- 1
- Sqft (est)
- 1,083.00
The heatmap indicates the level of crime in the area. The color of the heatmap indicates the crime severity and recency.
Metrics Year-on-Year
- Average area value
- 65,000.00 £Decreased by 67.00 %
- Est sale value
- 133,209.00 £Decreased by 39.11 %
- Average area rental value
- 725.00 £/moIncreased by 21.44 %
- Est letting value
- 1,083.00 £/mo
- Est rental Yield
- 13.38 %Increased by 267.58 %
- Crime Rate
- 1.00 %Unchanged by 0.00 %
Agent Activity
Lovett&Co. Estate Agents created the listing.
Nearby Schools
| Name | Type | Ofsted | Distance |
|---|---|---|---|
| Ridgeway Primary School | Foundation School | Good | 0.43 KM |
| Springhill Primary Academy | Academy Sponsor Led | Good | 1.14 KM |
| Erasmus Darwin Academy | Academy Converter | Good | 1.41 KM |
| St Joseph And St Theresa Catholic Primary | Voluntary Aided School | Outstanding | 1.49 KM |
| Chasetown Community School | Community Special School | Good | 1.63 KM |
Images
Nearby Streets
| Name | Average Price | Average Sqft | Distance |
|---|---|---|---|
| Elmhurst Drive | £ 0 | 0 | 0.00 KM |
| Grange Road | £ 225,000 | 0 | 0.00 KM |
| Henley Close | £ 0 | 0 | 0.00 KM |
| Belvedere Close | £ 300,000 | 0 | 0.00 KM |
| Alleyway | £ 0 | 0 | 0.00 KM |
Nearby Transport
| Name | NLC | TLC | Distance |
|---|---|---|---|
| Shenstone | 1178 | SEN | 9.30 KM |
| Rugeley Town | 1135 | RGT | 9.78 KM |
| Hednesford | 1148 | HNF | 9.88 KM |
Nearby Listings
| Address | Price | Type | Score | Distance |
|---|---|---|---|---|
| Highfields Road, Burntwood, WS7 4QT | £ 325,000 | BUY | 6 / 10 | 0.00 KM |
| Highfields Road, Burntwood | £ 260,000 | BUY | 6 / 10 | 0.00 KM |
| Highfields Road, Chasetown, Burntwood | £ 325,000 | BUY | 6 / 10 | 0.02 KM |
| Brooklyn Road, Burntwood, WS7 4SJ | £ 260,000 | BUY | 7 / 10 | 0.10 KM |
| Brooklyn Road, Burntwood, WS7 4SJ | £ 270,000 | BUY | 6 / 10 | 0.10 KM |
Nearby Properties
| Address | Price | Distance |
|---|---|---|
| 161 Highfields Road | £ 162,500 | 0.01 KM |
| 159 Highfields Road | £ 120,000 | 0.01 KM |
| 165 Highfields Road | £ 180,000 | 0.01 KM |
| 141 Highfields Road | £ 195,000 | 0.01 KM |
| 129 Highfields Road | £ 220,000 | 0.01 KM |