Ashtons says ..
A larger than standard three-bedroom end of terrace family home requiring modernisation and updating throughout. Being sold with no onward chain.
Property Oracle says ..
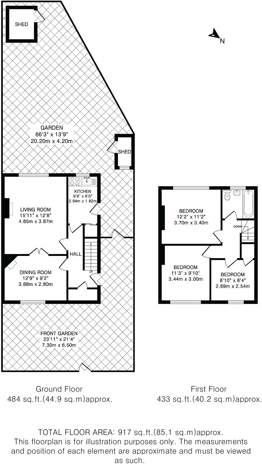
The property is an end-of-terrace house located on Montrose Avenue in Edgware. It features three bedrooms and one bathroom, with a square footage of 916.01 sqft. The house includes a garden. While the location benefits from proximity to good schools and transportation, the property’s interior is dated and requires renovation. The asking price of £475,000 appears slightly above the average for the area, considering the condition of the property.
Therefore, we give this property 6 / 10. *Disclaimer: This is our option and does constitute a recommendation or financial advice. Do your own research. *
- Price
- 6
- Condition
- 4
- Location
- 7
- Land
- 7
- Bedrooms
- 3
- Bathrooms
- 1
- Sqft (est)
- 916.01
The heatmap indicates the level of crime in the area. The color of the heatmap indicates the crime severity and recency.
Metrics Year-on-Year
- Average area value
- 425,000.00 £Increased by 10.51 %
- Est sale value
- 421,364.60 £Decreased by 11.88 %
- Average area rental value
- 1,646.00 £/moDecreased by 0.60 %
- Est letting value
- 916.01 £/moDecreased by 50.00 %
- Est rental Yield
- 4.65 %Decreased by 10.06 %
- Crime Rate
- 1.00 %Unchanged by 0.00 %
Agent Activity
Ashtons created the listing.
Nearby Schools
| Name | Type | Ofsted | Distance |
|---|---|---|---|
| Goldbeaters Primary School | Community School | Outstanding | 0.11 KM |
| The Annunciation Catholic Infant School | Voluntary Aided School | Outstanding | 0.45 KM |
| Woodcroft Primary School | Community School | Good | 0.66 KM |
| The Annunciation Rc Junior School | Voluntary Aided School | Good | 0.92 KM |
| Menorah Grammar School | Other Independent School | Inadequate | 0.97 KM |
Images
Nearby Streets
| Name | Average Price | Average Sqft | Distance |
|---|---|---|---|
| Hanshaw Drive | £ 275,000 | 0 | 0.00 KM |
| Mostyn Road | £ 550,000 | 0 | 0.00 KM |
| Acklington Drive | £ 325,000 | 0 | 0.00 KM |
| Wagtail Close | £ 0 | 0 | 0.00 KM |
| Grange Road | £ 0 | 0 | 0.00 KM |
Nearby Transport
| Name | NLC | TLC | Distance |
|---|---|---|---|
| Mill Hill Broadway | 1527 | MIL | 1.29 KM |
| Hendon | 1522 | HEN | 3.28 KM |
| Elstree And Borehamwood | 1542 | ELS | 6.09 KM |
| Wembley Stadium | 1509 | WCX | 6.38 KM |
| South Kenton | 1453 | SOK | 6.88 KM |
Nearby Listings
| Address | Price | Type | Score | Distance |
|---|---|---|---|---|
| Montrose Avenue, Edgware, HA8 | £ 475,000 | BUY | 6 / 10 | 0.00 KM |
| Trevor Road, Edgware, Middlesex, HA8 0EU | £ 425,000 | BUY | Unknown | 0.09 KM |
| Blundell Road, Edgware, HA8 | £ 260,000 | BUY | 4 / 10 | 0.14 KM |
| Albany Court Blundell Road, Edgware, Middlesex, HA8 | £ 260,000 | BUY | 4 / 10 | 0.14 KM |
| Albany Court, Blundell Road, Burnt Oak | £ 285,000 | BUY | 7 / 10 | 0.14 KM |
Nearby Properties
| Address | Price | Distance |
|---|---|---|
| 143 Montrose Avenue | £ 265,000 | 0.07 KM |
| 142 Montrose Avenue | £ 233,000 | 0.08 KM |
| 174 Montrose Avenue | £ 229,000 | 0.08 KM |
| 158 Montrose Avenue | £ 192,000 | 0.08 KM |
| 176 Montrose Avenue | £ 162,000 | 0.08 KM |