haart says ..
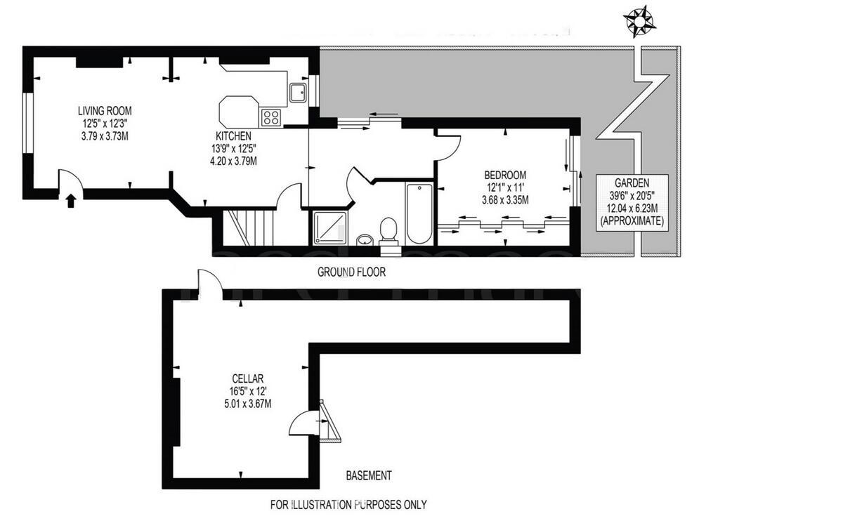
Looking for a charming home with character, space, and unbeatable convenience. This beautifully presented one bedroom ground floor garden flat is just a short stroll from South Croydon Station and the vibrant shopping and dining scene of South End
Property Oracle says ..
This is a one-bedroom flat in South Croydon. The property is in reasonable condition and benefits from a good-sized garden. The property is located in a desirable residential area with good access to local amenities, schools, and transportation links. The listing price seems reasonable for the area.
Therefore, we give this property 7 / 10. *Disclaimer: This is our option and does constitute a recommendation or financial advice. Do your own research. *
- Price
- 8
- Condition
- 7
- Location
- 7
- Land
- 8
- Bedrooms
- 1
- Bathrooms
- 1
- Sqft (est)
- 1,456.80
The heatmap indicates the level of crime in the area. The color of the heatmap indicates the crime severity and recency.
Metrics Year-on-Year
- Average area value
- 428,077.00 £Increased by 11.32 %
- Est sale value
- 1,031,414.40 £Increased by 124.76 %
- Average area rental value
- 1,801.00 £/moIncreased by 9.82 %
- Est letting value
- 2,913.60 £/moIncreased by 100.00 %
- Est rental Yield
- 5.05 %Decreased by 1.37 %
- Crime Rate
- 1.00 %Unchanged by 0.00 %
Agent Activity
haart created the listing.
Nearby Schools
| Name | Type | Ofsted | Distance |
|---|---|---|---|
| St Peter'S Primary School | Academy Converter | Good | 0.43 KM |
| Purley Oaks Children'S Centre | Children's Centre Linked Site | 0.80 KM | |
| Purley Oaks Primary School | Community School | Good | 0.83 KM |
| Harris Primary Academy Haling Park | Academy Sponsor Led | Outstanding | 1.00 KM |
| Ridgeway Primary School | Community School | Good | 1.01 KM |
Images
Nearby Streets
| Name | Average Price | Average Sqft | Distance |
|---|---|---|---|
| Magdala Road | £ 0 | 0 | 0.00 KM |
| White Hill | £ 0 | 0 | 0.00 KM |
| Day's Acre | £ 0 | 0 | 0.00 KM |
| Ballater Road | £ 780,000 | 0 | 0.00 KM |
| Coombe Avenue | £ 0 | 0 | 0.00 KM |
Nearby Transport
| Name | NLC | TLC | Distance |
|---|---|---|---|
| Sanderstead | 5433 | SNR | 0.83 KM |
| South Croydon | 5410 | SCY | 1.14 KM |
| Purley Oaks | 5430 | PUO | 1.36 KM |
| East Croydon | 5355 | ECR | 2.45 KM |
| Riddlesdown | 5432 | RDD | 2.66 KM |
Nearby Listings
| Address | Price | Type | Score | Distance |
|---|---|---|---|---|
| Selsdon Road, South Croydon | £ 280,000 | BUY | 7 / 10 | 0.00 KM |
| Selsdon Road, South Croydon | £ 1,000,000 | BUY | 8 / 10 | 0.09 KM |
| Croham Mount,, South Croydon | £ 20,000 | BUY | 5 / 10 | 0.14 KM |
| Croham Mount, South Croydon | £ 600,000 | BUY | 7 / 10 | 0.15 KM |
| Croham Mount, South Croydon, Surrey, CR2 0BR | £ 600,000 | BUY | Unknown | 0.15 KM |
Nearby Properties
| Address | Price | Distance |
|---|---|---|
| 396 Selsdon Road | £ 665,000 | 0.04 KM |
| 388 Selsdon Road | £ 315,000 | 0.04 KM |
| 394 Selsdon Road | £ 455,000 | 0.04 KM |
| 7 Croham Close | £ 1,100,000 | 0.11 KM |
| 14 Croham Close | £ 417,000 | 0.11 KM |