CR
Warwick Road, Nottingham, NG3
By Crests Estates
£ 1,000,000
Reviews
4 out of 5 stars
Crests Estates says ..
A Hidden Gem in Mapperley Park - Nottingham
Property Oracle says ..
Therefore, we give this property 8 / 10. *Disclaimer: This is our option and does constitute a recommendation or financial advice. Do your own research. *
- Price
- 7
- Condition
- 9
- Location
- 8
- Land
- 8
- Bedrooms
- 4
- Bathrooms
- 3
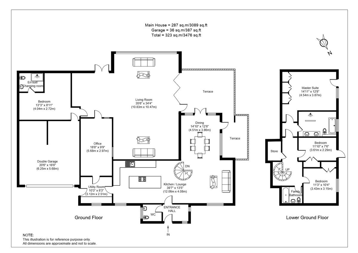
- Sqft (est)
- 2,911.75
The heatmap indicates the level of crime in the area. The color of the heatmap indicates the crime severity and recency.
Metrics Year-on-Year
- Average area value
- 186,660.00 £Decreased by 32.16 %
- Est sale value
- 780,349.00 £Increased by 1.52 %
- Average area rental value
- 993.00 £/moIncreased by 16.14 %
- Est letting value
- 2,911.75 £/mo
- Est rental Yield
- 6.38 %Increased by 71.05 %
- Crime Rate
- 0.00 %
from 275,159.00 £
from 768,702.00 £
from 855.00 £/mo
from 0.00 £/mo
from 3.73 %
from 0.00 %
Agent Activity
Crests Estates created the listing.
Nearby Schools
| Name | Type | Ofsted | Distance |
|---|---|---|---|
| Haydn Primary School | Community School | Outstanding | 0.73 KM |
| St Augustine'S Catholic Primary And Nursery School, A Voluntary Academy | Academy Sponsor Led | Good | 1.07 KM |
| Sherwood And Edwards Lane Children'S Centre | Children's Centre | 1.19 KM | |
| Hospital And Home Education Pru | Pupil Referral Unit | Good | 1.22 KM |
| Seely Primary School | Community School | Good | 1.27 KM |
Images
Nearby Streets
| Name | Average Price | Average Sqft | Distance |
|---|---|---|---|
| Woodland Drive | £ 0 | 0 | 0.00 KM |
| Old Hall Drive | £ 0 | 0 | 0.00 KM |
| Morley Avenue | £ 650,000 | 0 | 0.00 KM |
| Tavistock Avenue | £ 0 | 0 | 0.00 KM |
| Copenhagen Court | £ 0 | 0 | 0.00 KM |
Nearby Transport
| Name | NLC | TLC | Distance |
|---|---|---|---|
| Nottingham | 1826 | NOT | 3.40 KM |
| Bulwell | 1865 | BLW | 6.45 KM |
| Netherfield | 6241 | NET | 7.14 KM |
| Carlton | 6201 | CTO | 7.18 KM |
| Hucknall | 1862 | HKN | 8.99 KM |
Nearby Listings
| Address | Price | Type | Score | Distance |
|---|---|---|---|---|
| Warwick Road, Nottingham, NG3 | £ 1,000,000 | BUY | 8 / 10 | 0.00 KM |
| Warwick Road, Nottingham, NG3 | £ 1,000,000 | BUY | Unknown | 0.03 KM |
| Arlington Drive, Mapperley Park, NG3 | £ 725,000 | BUY | 7 / 10 | 0.09 KM |
| Woodland Drive, Nottingham | £ 450,000 | BUY | Unknown | 0.12 KM |
| Richmond Drive, Mapperley Park, NG3 | £ 1,150,000 | BUY | 7 / 10 | 0.14 KM |
Nearby Properties
| Address | Price | Distance |
|---|---|---|
| 10 Private Road | £ 570,000 | 0.15 KM |
| 26 Private Road | £ 500,000 | 0.15 KM |
| 8 Private Road | £ 740,000 | 0.15 KM |
| 28 Private Road | £ 475,000 | 0.15 KM |
| 12 Private Road | £ 279,000 | 0.15 KM |